
4 bedroom end of terrace house for sale
Bentfield Cottages, Clayton

- PROPERTY TYPE
End of Terrace
- BEDROOMS
4
- BATHROOMS
1
- SIZE
Ask agent
- TENUREDescribes how you own a property. There are different types of tenure - freehold, leasehold, and commonhold.Read more about tenure in our glossary page.
Freehold
Key features
- SPACIOUS THROUGHOUT
- CHARACTER FEATURES
- FOUR BEDROOMS
- PERFECT FAMILY HOME
- GARDENS TO FRONT AND REAR
- GAS CENTRAL HEATING
- POPULAR LOCATION
- DRIVEWAY + ON ROAD PARKING
- END TERRACE
- CLOSE TO LOCAL AMENITIES
Description
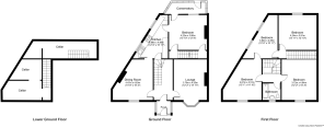
HALLWAY 12' 3" x 6' 9" (3.73m x 2.06m) After entering the property via the porch area, you are immediately welcomed by a large hallway with stairs leading to the first floor, and access to the sitting room and dining room.
SITTING ROOM 16' 3" x 12' 1" (4.95m x 3.68m) The large bay window to the front allows plenty of light to flow through this room making it feel bright and airy. With wooden paneling on the back wall and fitted shelving units, a gas fire inset to feature stone surround with timber mantle, and a central heating radiator.
DINING ROOM 15' 0" x 14' 9" (4.57m x 4.5m) A spacious dining room with a gas set into fireplace, central heating radiator and a window to the front elevation. Access to the kitchen is also granted via the dining room.
KITCHEN 14' 5" x 8' 9" (4.39m x 2.67m) A good-sized kitchen space with an integrated gas hob and cooker, plus hooded extractor fan, a range of wall and base units, laminate work surfaces, and a stainless steel sink and drainer. There are two windows facing the side elevation and access to the cellar is also available from the kitchen.
LOUNGE 13' 10" x 12' 9" (4.22m x 3.89m) The owner currently uses the lounge as a bedroom and the fireplace has been capped due to this. It is in full working condition and is inspected annually. This room offers a second access point to floor one and the cellar. Access to the rear garden also available.
BEDROOM ONE 15' 2" x 12' 2" (4.62m x 3.71m) Double bedroom with plenty of space for any freestanding furniture, plus fitted wardrobes! With a central heating radiator and a window to the front elevation
BEDROOM TWO 15' 2" x 12' 12" (4.62m x 3.96m) The second double bedroom with fitted wardrobes, one of which contains the boiler which is serviced annually, a central heating radiator and a window to the front elevation.
BEDROOM THREE 15' 11" x 10' 2" (4.85m x 3.1m) The third double bedroom with a central heating radiator, and a window to the side elevation. Access via bedroom two or the staircase in the lounge.
BEDROOM FOUR 13' 11" x 12' 10" (4.24m x 3.91m) This room also offers plenty of floor space, and has space for a double (or larger) bed. With a central heating radiator and a window to the rear elevation.
EXTERNAL To the front of the property is a large paved garden, which can also be used as a driveway. To the rear is a small paved garden.
Brochures
5 Page Portrait -...- COUNCIL TAXA payment made to your local authority in order to pay for local services like schools, libraries, and refuse collection. The amount you pay depends on the value of the property.Read more about council Tax in our glossary page.
- Ask agent
- PARKINGDetails of how and where vehicles can be parked, and any associated costs.Read more about parking in our glossary page.
- On street,Off street
- GARDENA property has access to an outdoor space, which could be private or shared.
- Yes
- ACCESSIBILITYHow a property has been adapted to meet the needs of vulnerable or disabled individuals.Read more about accessibility in our glossary page.
- Ask agent
Bentfield Cottages, Clayton
Add an important place to see how long it'd take to get there from our property listings.
__mins driving to your place
Get an instant, personalised result:
- Show sellers you’re serious
- Secure viewings faster with agents
- No impact on your credit score
Your mortgage
Notes
Staying secure when looking for property
Ensure you're up to date with our latest advice on how to avoid fraud or scams when looking for property online.
Visit our security centre to find out moreDisclaimer - Property reference 101845010208. The information displayed about this property comprises a property advertisement. Rightmove.co.uk makes no warranty as to the accuracy or completeness of the advertisement or any linked or associated information, and Rightmove has no control over the content. This property advertisement does not constitute property particulars. The information is provided and maintained by Whitney's, Clayton. Please contact the selling agent or developer directly to obtain any information which may be available under the terms of The Energy Performance of Buildings (Certificates and Inspections) (England and Wales) Regulations 2007 or the Home Report if in relation to a residential property in Scotland.
*This is the average speed from the provider with the fastest broadband package available at this postcode. The average speed displayed is based on the download speeds of at least 50% of customers at peak time (8pm to 10pm). Fibre/cable services at the postcode are subject to availability and may differ between properties within a postcode. Speeds can be affected by a range of technical and environmental factors. The speed at the property may be lower than that listed above. You can check the estimated speed and confirm availability to a property prior to purchasing on the broadband provider's website. Providers may increase charges. The information is provided and maintained by Decision Technologies Limited. **This is indicative only and based on a 2-person household with multiple devices and simultaneous usage. Broadband performance is affected by multiple factors including number of occupants and devices, simultaneous usage, router range etc. For more information speak to your broadband provider.
Map data ©OpenStreetMap contributors.








