Bodinnick, Fowey, Cornwall, PL23
- PROPERTY TYPE
Plot
- SIZE
Ask agent
Key features
- Rare and exciting opportunity
- Outstanding views across to Fowey and Polruan
- Planning permission granted for an impressive modern detached family home
- Mooring on Bodinnick foreshore
- Elevated position
Description
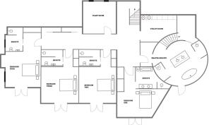
An exciting opportunity to create an impressive modern detached family home in an elevated position, offering fantastic views across to the neighbouring town of Fowey and village of Polruan. The property design offers a sleek and open plan feel yet offers versatile family living spaces and well-proportioned bedrooms, all boasting en-suite bathrooms. A unique feature is the turret style Master suite set across two floors totalling 57m2 with an open plan bathroom to the lower floor and bedroom to the first with feature windows to make the most of the stunning outlook. The property also enjoys a mooring on Bodinnick foreshore for a Rowing boat or Dinghy.
Planning reference at PA23/03780
Bodinnick, Fowey, Cornwall, PL23
NEAREST STATIONS
Distances are straight line measurements from the centre of the postcode- Par Station3.5 miles
- Lostwithiel Station4.9 miles
- Luxulyan Station6.3 miles
Notes
Disclaimer - Property reference 10622785. The information displayed about this property comprises a property advertisement. Rightmove.co.uk makes no warranty as to the accuracy or completeness of the advertisement or any linked or associated information, and Rightmove has no control over the content. This property advertisement does not constitute property particulars. The information is provided and maintained by The Property Shop, Fowey. Please contact the selling agent or developer directly to obtain any information which may be available under the terms of The Energy Performance of Buildings (Certificates and Inspections) (England and Wales) Regulations 2007 or the Home Report if in relation to a residential property in Scotland.
Map data ©OpenStreetMap contributors.






