
The Barn, Manor Farm, Stottesdon, Kidderminster

- PROPERTY TYPE
Barn Conversion
- BEDROOMS
3
- BATHROOMS
1
- SIZE
Ask agent
- TENUREDescribes how you own a property. There are different types of tenure - freehold, leasehold, and commonhold.Read more about tenure in our glossary page.
Freehold
Description
Bridgnorth - 9 miles, Ludlow - 14 miles, Kidderminster - 13 miles, Much Wenlock - 16 miles, Shrewsbury - 31 miles, Telford - 22 miles.
(All distances are approximate).
Location - Stottesdon village is situated amidst the wonderful Shropshire countryside between the historic market towns of Bridgnorth and Ludlow. Within the village there is a local country pub and great countryside walks and bridleways, along with a primary school, doctors surgery and a church. Further local attractions and facilities within easy reach of Stottesdon include Shropshire Adventures & Equestrian centre, Chelmarsh Reservoir for sailing enthusiasts, golf courses and the vintage Severn Valley Railway and Country Park.
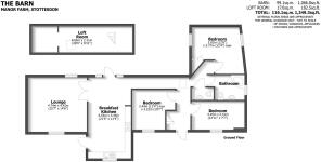
Accommodation - Approached from the front private courtyard, a door opens into the breakfast kitchen with engineered oak flooring and exposed beams. There is a range of fitted base cupboards, drawers, and wall cabinets together with worktops, sink unit and the provision for appliances. Full height glazed windows and door provide good natural light with an outlook to the garden. The lounge enjoys a dual aspect along with a feature brick fireplace housing a multi fuel log burner. The inner hall leads to the three double bedrooms together with the family bathroom which comprises a white suite to include a WC, hand basin and a corner bath with shower over. There is also a further guest cloakroom/WC. From the hall there is an additional front door and access to the large loft room providing versatile space and excellent storage with with convenient access.
Outside - The gardens are beautifully landscaped to both the front and rear of the barn, enclosed by picket fencing with shaped lawns, patio terraces and mature planted borders, raised vegetable beds along with a garden shed, greenhouse and a log store. A shared gravelled driveway leads to a communal parking area where there are two allocated parking spaces and an EV charger.
Services - We are advised by our client that mains water, drainage and electricity are connected. Oil fired central heating. Verification should be obtained from your surveyor.
Tenure - We are advised by our client the property is FREEHOLD. Verification should be obtained by your Solicitor.
Council Tax - Tax Band: D.
Shropshire Council.
Fixtures And Fittings - By separate negotiation.
Possession - Vacant possession will be given on completion.
Viewing Arrangements - Strictly by appointment through the BRIDGNORTH OFFICE.
Directions - Leaving Bridgnorth on the B4363 Cleobury Mortimer road. Follow the road along passing through the hamlets of Oldbury, Glazeley and Deuxhill. After approximately 6 miles take a right turn sign posted Stottesdon/Chorley. Continue to follow the lane along where you will enter the High Street of Stottesdon. At the junction The Barn entrance can be found just ahead.
Brochures
The Barn, Manor Farm, Stottesdon, KidderminsterBrochure- COUNCIL TAXA payment made to your local authority in order to pay for local services like schools, libraries, and refuse collection. The amount you pay depends on the value of the property.Read more about council Tax in our glossary page.
- Band: D
- PARKINGDetails of how and where vehicles can be parked, and any associated costs.Read more about parking in our glossary page.
- Yes
- GARDENA property has access to an outdoor space, which could be private or shared.
- Yes
- ACCESSIBILITYHow a property has been adapted to meet the needs of vulnerable or disabled individuals.Read more about accessibility in our glossary page.
- Ask agent
The Barn, Manor Farm, Stottesdon, Kidderminster
Add an important place to see how long it'd take to get there from our property listings.
__mins driving to your place
Get an instant, personalised result:
- Show sellers you’re serious
- Secure viewings faster with agents
- No impact on your credit score
Your mortgage
Notes
Staying secure when looking for property
Ensure you're up to date with our latest advice on how to avoid fraud or scams when looking for property online.
Visit our security centre to find out moreDisclaimer - Property reference 33692741. The information displayed about this property comprises a property advertisement. Rightmove.co.uk makes no warranty as to the accuracy or completeness of the advertisement or any linked or associated information, and Rightmove has no control over the content. This property advertisement does not constitute property particulars. The information is provided and maintained by Berriman Eaton, Bridgnorth. Please contact the selling agent or developer directly to obtain any information which may be available under the terms of The Energy Performance of Buildings (Certificates and Inspections) (England and Wales) Regulations 2007 or the Home Report if in relation to a residential property in Scotland.
*This is the average speed from the provider with the fastest broadband package available at this postcode. The average speed displayed is based on the download speeds of at least 50% of customers at peak time (8pm to 10pm). Fibre/cable services at the postcode are subject to availability and may differ between properties within a postcode. Speeds can be affected by a range of technical and environmental factors. The speed at the property may be lower than that listed above. You can check the estimated speed and confirm availability to a property prior to purchasing on the broadband provider's website. Providers may increase charges. The information is provided and maintained by Decision Technologies Limited. **This is indicative only and based on a 2-person household with multiple devices and simultaneous usage. Broadband performance is affected by multiple factors including number of occupants and devices, simultaneous usage, router range etc. For more information speak to your broadband provider.
Map data ©OpenStreetMap contributors.








