4 bedroom block of apartments for sale
Earlham Street, Covent Garden

- PROPERTY TYPE
Block of Apartments
- BEDROOMS
4
- BATHROOMS
3
- SIZE
1,574 sq ft
146 sq m
- TENUREDescribes how you own a property. There are different types of tenure - freehold, leasehold, and commonhold.Read more about tenure in our glossary page.
Freehold
Key features
- Guide Price £2,600,000
- Quote Ref SO1137 For All Enquiries
- Freehold Residential Block
- 3 Self Contained Apartments
- 1 x 3 bed and 2 x 1 bed
- High Ceilings
- Overlooking Seven Dialls
- Ideal for serviced apartments
- Commercial not included
- Private entrance
Description
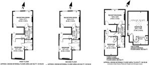
24 Earlham street is a freehold Georgian building that has been completely refurbished to an excellent standard in 2018 and comprises 3 unique apartments, (two x 1 beds and a 2 bed duplex on the top floor)
Each apartment benefits from bespoke interior design including oak wooden floors, intergrade and crafted kitchens, brushed chrome ironmongery, original fire places and wood panelling. These are a great example of modern living whilst maintaining period charm.
One of a handful of freehold residential buildings in Seven Dials area of Covent Garden moments from Leicester Square, Soho and the Covent Garden Piazza.
*Note: The Ground floor retail premises have been sold off on a long lease*
Freehold includes 3 apartments on floors 1-4 comprising a total of 1,574 NSA
2 x 1 beds
1 x 2 bed duplex
Significant asset management opportunity to push on rental income with an operator
Passing Rent: £103,000
Brochures
Brochure 1- COUNCIL TAXA payment made to your local authority in order to pay for local services like schools, libraries, and refuse collection. The amount you pay depends on the value of the property.Read more about council Tax in our glossary page.
- Band: E
- LISTED PROPERTYA property designated as being of architectural or historical interest, with additional obligations imposed upon the owner.Read more about listed properties in our glossary page.
- Listed
- PARKINGDetails of how and where vehicles can be parked, and any associated costs.Read more about parking in our glossary page.
- No parking
- GARDENA property has access to an outdoor space, which could be private or shared.
- Ask agent
- ACCESSIBILITYHow a property has been adapted to meet the needs of vulnerable or disabled individuals.Read more about accessibility in our glossary page.
- No wheelchair access
Earlham Street, Covent Garden
Add an important place to see how long it'd take to get there from our property listings.
__mins driving to your place
Get an instant, personalised result:
- Show sellers you’re serious
- Secure viewings faster with agents
- No impact on your credit score
Your mortgage
Notes
Staying secure when looking for property
Ensure you're up to date with our latest advice on how to avoid fraud or scams when looking for property online.
Visit our security centre to find out moreDisclaimer - Property reference S1217304. The information displayed about this property comprises a property advertisement. Rightmove.co.uk makes no warranty as to the accuracy or completeness of the advertisement or any linked or associated information, and Rightmove has no control over the content. This property advertisement does not constitute property particulars. The information is provided and maintained by eXp UK, London. Please contact the selling agent or developer directly to obtain any information which may be available under the terms of The Energy Performance of Buildings (Certificates and Inspections) (England and Wales) Regulations 2007 or the Home Report if in relation to a residential property in Scotland.
*This is the average speed from the provider with the fastest broadband package available at this postcode. The average speed displayed is based on the download speeds of at least 50% of customers at peak time (8pm to 10pm). Fibre/cable services at the postcode are subject to availability and may differ between properties within a postcode. Speeds can be affected by a range of technical and environmental factors. The speed at the property may be lower than that listed above. You can check the estimated speed and confirm availability to a property prior to purchasing on the broadband provider's website. Providers may increase charges. The information is provided and maintained by Decision Technologies Limited. **This is indicative only and based on a 2-person household with multiple devices and simultaneous usage. Broadband performance is affected by multiple factors including number of occupants and devices, simultaneous usage, router range etc. For more information speak to your broadband provider.
Map data ©OpenStreetMap contributors.




