
4 bedroom bungalow for sale
Harold Court Road, Harold Wood, RM3

- PROPERTY TYPE
Bungalow
- BEDROOMS
4
- BATHROOMS
3
- SIZE
Ask agent
- TENUREDescribes how you own a property. There are different types of tenure - freehold, leasehold, and commonhold.Read more about tenure in our glossary page.
Freehold
Description
• SITUATED ON 4.51 ACRES OF LAND
• BOASTING IN EXCESS OF 3,500 SQ FT OF LIVING ACCOMMODATION
• SEMI RURAL LOCATION
• ENERGY EFFICIENCY RATING OF A
• CONSTRUCTED IN 2020
• 8 MINUTE DRIVE TO ST PETERS CHURCH OF ENGLAND PRIMARY SCHOOL
• 49' OPEN PLAN KITCHEN / DINING AND LOUNGE
• DOUBLE GARAGE AND GYM
• MASTER BEDROOM WITH WALK IN WARDROBE AND EN-SUITE
• AMPLE PARKING
• COUNCIL TAX BAND: A
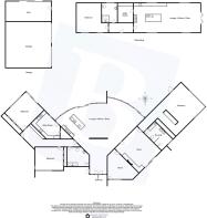
Door to the entrance hall
21'1 x 17'4 < 7'4. Smooth ceiling, video entry phone system, under floor heating. Opens to:
Kitchen / dining and lounge
49'3 x 22'6 at the widest points. Triple glazed windows and doors to the rear, smooth ceiling with inset speaker system, central island with Granite worksurfaces over, Siemens electric hob, Elica extractor fan over, Eboline plug, Samsung oven, Samsung grill, one and a half sink drainer unit with mixer tap, under floor heating.
Utility Room
16'8 x 8'4. Smooth ceiling with inset speaker system, eye and base level units with Granite worksurfaces over, Siemens hob with Elica extractor above, one and a half sink drainer unit with mixer tap, Neff washing machine, Siemens dishwasher, Neff fridge, Neff freezer, storage cupboard.
SNUG
16'5 x 16'. Triple glazed sliding door to the flank, smooth ceiling with inset speaker system, log burner, under floor heating.
Master Bedroom
16'1 x 14'2. Triple glazed window to the flank and rear, german double action door and window, smooth ceiling with inset speaker system, under floor heating. DRESSING ROOM: 12'1 x 7'8. Smooth ceiling, under floor heating. EN-SUITE: 12'5 x 8'5. Obscure triple glazed window to the flank, smooth ceiling, low level wc, shower cubicle with rainstyle and handheld shower attachment, bath with mixer tap, his and hers sinks with mixer taps, heated towel rail, under floor heating.
Study / Bedroom Four
16'8 x 13'5. Triple glazed window to the front, german double action door and window, smooth ceiling, under floor heating.
Further Hallway
Smooth ceiling, cupboard housing boiler, under floor heating. Door to front.
Bathroom
11'9 x 9'3. Sky lantern, smooth ceiling, low level wc, sink unit with mixer tap, bath with mixer tap, shower cubicle with rainstyle and hand held shower, heated towel rail, extractor fan, under floor heating.
Bedroom Two
16'4 x 13'. Triple glazed window to the flank and rear, triple glazed sliding door, smooth ceiling with inset speaker system, under floor heating.
Bedroom Three
15'7 x 10'9. Triple glazed window to the front and flank, smooth ceiling with inset speaker system, under floor heating.
Double Garage
Doors to the front, power and lighting.
Gym
19'X9'3 Smooth ceiling, double glazed sliding doors patio area.
Annexe
Door to entrance hall:
Smooth ceiling, loft hatch.
KITCHEN/LIVING AREA:
30'5x12'4
Smooth ceiling, two double glazed windows to each flank, double glazed bifold doors, base units with work surfaces over, central island, one and half sink drainer unit with mixer tap.
UTILITY ROOM:
8'X7'
Smooth ceiling, double glazed window to flank, base units with work surfaces over, space for appliances, wall mounted Worster boiler.
BEDROOM:
12'3x11'4
Smooth ceiling, two double glazed windows to flank.
SHOWER ROOM:
8'X6'2
Smooth ceiling, low level wc, radiator, obscure double glazed window to flank, shower cubicle with rain style and hand held shower.
Garden
Completely secluded rear garden with patio area, fire pit, gazebo, patio area outside gym, Koi pond area with seating. Plot measuring approximately 4.5 acres.
Front of property
Driveway providing off street parking for multiple vehicles.
Buyers information pack
Please see below the link to access the Buyers Information Pack/TA forms: b886f 84
Brochures
Particulars- COUNCIL TAXA payment made to your local authority in order to pay for local services like schools, libraries, and refuse collection. The amount you pay depends on the value of the property.Read more about council Tax in our glossary page.
- Band: A
- PARKINGDetails of how and where vehicles can be parked, and any associated costs.Read more about parking in our glossary page.
- Garage,Driveway,Off street
- GARDENA property has access to an outdoor space, which could be private or shared.
- Yes
- ACCESSIBILITYHow a property has been adapted to meet the needs of vulnerable or disabled individuals.Read more about accessibility in our glossary page.
- Ask agent
Harold Court Road, Harold Wood, RM3
Add an important place to see how long it'd take to get there from our property listings.
__mins driving to your place
Get an instant, personalised result:
- Show sellers you’re serious
- Secure viewings faster with agents
- No impact on your credit score
Your mortgage
Notes
Staying secure when looking for property
Ensure you're up to date with our latest advice on how to avoid fraud or scams when looking for property online.
Visit our security centre to find out moreDisclaimer - Property reference UPM250004. The information displayed about this property comprises a property advertisement. Rightmove.co.uk makes no warranty as to the accuracy or completeness of the advertisement or any linked or associated information, and Rightmove has no control over the content. This property advertisement does not constitute property particulars. The information is provided and maintained by Balgores, Romford. Please contact the selling agent or developer directly to obtain any information which may be available under the terms of The Energy Performance of Buildings (Certificates and Inspections) (England and Wales) Regulations 2007 or the Home Report if in relation to a residential property in Scotland.
*This is the average speed from the provider with the fastest broadband package available at this postcode. The average speed displayed is based on the download speeds of at least 50% of customers at peak time (8pm to 10pm). Fibre/cable services at the postcode are subject to availability and may differ between properties within a postcode. Speeds can be affected by a range of technical and environmental factors. The speed at the property may be lower than that listed above. You can check the estimated speed and confirm availability to a property prior to purchasing on the broadband provider's website. Providers may increase charges. The information is provided and maintained by Decision Technologies Limited. **This is indicative only and based on a 2-person household with multiple devices and simultaneous usage. Broadband performance is affected by multiple factors including number of occupants and devices, simultaneous usage, router range etc. For more information speak to your broadband provider.
Map data ©OpenStreetMap contributors.







