Barn conversion for sale
'The Barn' Main Street, Allonby CA15

- PROPERTY TYPE
Barn Conversion
- SIZE
Ask agent
- TENUREDescribes how you own a property. There are different types of tenure - freehold, leasehold, and commonhold.Read more about tenure in our glossary page.
Freehold
Description
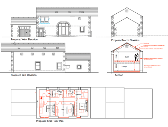
Welcome to ‘The Barn’ located in the seaside village of Allonby. Set over two floors, this property offers interested parties a rare opportunity to transform the space into a 3-bed family home.
Full details on the planning application can be found using the reference number FUL/2023/0233 on the Cumberland Council website.
The property briefly comprises of 3 separate rooms, one with stairs leading to the first floor. The approximate total area is 176.7 m².
Ground Floor
7.30 x 6.37m
4.09 x 6.38m with stairs leading to the first floor
5.53 x 5.37m
First Floor
11.79 x 6.40m
The village of Allonby is located approximately 5 miles north from the popular town of Maryport and 8 miles south of the seaside resort of Silloth. Allonby benefits from local amenities, including a primary school, a leisure centre, pubs and cafes. Allonby is also home to the locally famous Twentymans Ice Cream parlour. “Allonby Cumbria lies within a designated Area of Outstanding Beauty on the Solway Coast. Allonby Bay has a superb long sandy beach, with spectacular views across the Solway Firth to the mountains of Southern Scotland. In addition, the Lake District fells can be seen as stunning backdrop to the village, in the East. On a clear day the Isle of Man can be seen in the distance”.
Roof type: Slate tiles.
Construction materials used: Brick and block.
Electricity source: National Grid.
Parking Availability: Yes.
Brochures
Brochure 1- COUNCIL TAXA payment made to your local authority in order to pay for local services like schools, libraries, and refuse collection. The amount you pay depends on the value of the property.Read more about council Tax in our glossary page.
- Ask agent
- PARKINGDetails of how and where vehicles can be parked, and any associated costs.Read more about parking in our glossary page.
- Off street
- GARDENA property has access to an outdoor space, which could be private or shared.
- Ask agent
- ACCESSIBILITYHow a property has been adapted to meet the needs of vulnerable or disabled individuals.Read more about accessibility in our glossary page.
- Ask agent
Energy performance certificate - ask agent
'The Barn' Main Street, Allonby CA15
Add an important place to see how long it'd take to get there from our property listings.
__mins driving to your place
Get an instant, personalised result:
- Show sellers you’re serious
- Secure viewings faster with agents
- No impact on your credit score

Your mortgage
Notes
Staying secure when looking for property
Ensure you're up to date with our latest advice on how to avoid fraud or scams when looking for property online.
Visit our security centre to find out moreDisclaimer - Property reference mitchells_1698096802. The information displayed about this property comprises a property advertisement. Rightmove.co.uk makes no warranty as to the accuracy or completeness of the advertisement or any linked or associated information, and Rightmove has no control over the content. This property advertisement does not constitute property particulars. The information is provided and maintained by Mitchells Land & Property, Cockermouth. Please contact the selling agent or developer directly to obtain any information which may be available under the terms of The Energy Performance of Buildings (Certificates and Inspections) (England and Wales) Regulations 2007 or the Home Report if in relation to a residential property in Scotland.
*This is the average speed from the provider with the fastest broadband package available at this postcode. The average speed displayed is based on the download speeds of at least 50% of customers at peak time (8pm to 10pm). Fibre/cable services at the postcode are subject to availability and may differ between properties within a postcode. Speeds can be affected by a range of technical and environmental factors. The speed at the property may be lower than that listed above. You can check the estimated speed and confirm availability to a property prior to purchasing on the broadband provider's website. Providers may increase charges. The information is provided and maintained by Decision Technologies Limited. **This is indicative only and based on a 2-person household with multiple devices and simultaneous usage. Broadband performance is affected by multiple factors including number of occupants and devices, simultaneous usage, router range etc. For more information speak to your broadband provider.
Map data ©OpenStreetMap contributors.




