2 bedroom cottage for sale
No 1 The Gallies, Main Road, Ombersley, Worcestershire

- PROPERTY TYPE
Cottage
- BEDROOMS
2
- SIZE
1,051 sq ft
98 sq m
- TENUREDescribes how you own a property. There are different types of tenure - freehold, leasehold, and commonhold.Read more about tenure in our glossary page.
Freehold
Key features
- Freehold with vacant possession
- Traditional residential terraced cottage
- Two bedrooms. Off road parking and decked rear garden and additional extensive rear land.
- Excellent down sizing or starter home opportunity
- Freehold offers at £195,000 exclusive of VAT where chargeable.
Description
SUBSTANTIAL PRICE REDUCTION AND NOW WITH EXTENSIVE REAR GARDEN AREA. Side access to off road gravelled parking at the rear with a private enclosed decked garden area. The seller owns additional land to the rear which is also included in the sale.
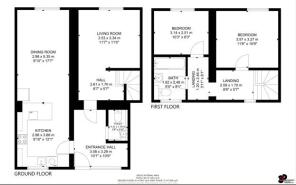
Accommodation
Ground Floor:
Main entrance from the rear parking area to hallway and reception area with toilet/cloaks area, feature fitted kitchen with breakfast bar in open plan with dining area and workspace, separate front lounge.
First Floor:
L-shaped landing to double bedroom, single bedroom and bathroom with wash basin and wc
suite and bath with shower over. Floor plans of the property are included.
Outside
Extensive garden area - land included.
The property is offered for sale on a freehold basis with vacant possession.
Please note that:
The Vendor owns both No1 and No2 The Gallies and additional extensive land to the rear in a single Freehold Title, as shown edged red on the Land Registry extract. If the cottages are sold individually then separate Title to each will need to be created, as per the satellite image edged in red. Please note that this plan is strictly for guidance only. Mutual rights for access and parking, and any other necessary purposes would be reserved in each title. Further information is available on request
Brochures
Brochure 1- COUNCIL TAXA payment made to your local authority in order to pay for local services like schools, libraries, and refuse collection. The amount you pay depends on the value of the property.Read more about council Tax in our glossary page.
- Ask agent
- PARKINGDetails of how and where vehicles can be parked, and any associated costs.Read more about parking in our glossary page.
- Yes
- GARDENA property has access to an outdoor space, which could be private or shared.
- Yes
- ACCESSIBILITYHow a property has been adapted to meet the needs of vulnerable or disabled individuals.Read more about accessibility in our glossary page.
- Ask agent
No 1 The Gallies, Main Road, Ombersley, Worcestershire
Add an important place to see how long it'd take to get there from our property listings.
__mins driving to your place
Get an instant, personalised result:
- Show sellers you’re serious
- Secure viewings faster with agents
- No impact on your credit score
Your mortgage
Notes
Staying secure when looking for property
Ensure you're up to date with our latest advice on how to avoid fraud or scams when looking for property online.
Visit our security centre to find out moreDisclaimer - Property reference 126Residential. The information displayed about this property comprises a property advertisement. Rightmove.co.uk makes no warranty as to the accuracy or completeness of the advertisement or any linked or associated information, and Rightmove has no control over the content. This property advertisement does not constitute property particulars. The information is provided and maintained by MATTHEW PHILLIPS SURVEYORS LIMITED, Lichfield. Please contact the selling agent or developer directly to obtain any information which may be available under the terms of The Energy Performance of Buildings (Certificates and Inspections) (England and Wales) Regulations 2007 or the Home Report if in relation to a residential property in Scotland.
*This is the average speed from the provider with the fastest broadband package available at this postcode. The average speed displayed is based on the download speeds of at least 50% of customers at peak time (8pm to 10pm). Fibre/cable services at the postcode are subject to availability and may differ between properties within a postcode. Speeds can be affected by a range of technical and environmental factors. The speed at the property may be lower than that listed above. You can check the estimated speed and confirm availability to a property prior to purchasing on the broadband provider's website. Providers may increase charges. The information is provided and maintained by Decision Technologies Limited. **This is indicative only and based on a 2-person household with multiple devices and simultaneous usage. Broadband performance is affected by multiple factors including number of occupants and devices, simultaneous usage, router range etc. For more information speak to your broadband provider.
Map data ©OpenStreetMap contributors.




