Plot for sale
Plot 1 - Truthwall TR19
- PROPERTY TYPE
Plot
- BEDROOMS
4
- BATHROOMS
2
- SIZE
Ask agent
Key features
- SIZEABLE PLOT IN BEAUTIFUL WEST CORNWALL
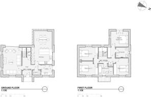
- PLANNING PERMISSION FOR FOUR BED DETACHED HOME
- MAINS DRAINAGE CONNECTION
- FANTASTIC HAMLET LOCATION WITH SEA VIEWS
- CLOSE TO ST JUST & BOTALLACK
- FIVE PLOTS AVAILABLE IN TOTAL
- PLANS AVAILABLE UPON REQUEST
- PLANNING APPLICATION: PA21/06739
Description
PLOT 1 - DESCRIPTION
LOCATION
Truthwall is a small hamlet between St Just and Botallack in the far west of Cornwall and sits close to the coast with wild moors stretching in land to rugged carns of granite.
Botallack is a sought-after area just outside St Just in Penwith - made famous more recently by the emergence of BBC's Poldark series, the landscape is unspoiled and reflects the mining heritage of the area. Botallack has a popular pub called the Queen's Arms, and lots of scenic walks on your doorstep; either down to the rugged coast path or across the heather-filled moors to ancient stone circles.
St Just is a very popular town with a thriving community and a varied mix of busy shops and businesses. Properties here are predominantly granite cottages harking back to the tin mining era and St Just's prosperous heritage.
Boasting two fantastic butchers, four pubs, traditional grocers, and two convenience stores, St Just has all the essentials covered, as well as offering well-respected art galleries, popular eateries, and some stunning coastal walks nearby.
There is both a primary and secondary school in St Just, both rated as Good by Ofsted most recently. Penzance is approximately 8 miles away.
FOR MORE INFORMATION ON PLOT 1
Brochures
Brochure 1Plot 1 - Truthwall TR19
NEAREST STATIONS
Distances are straight line measurements from the centre of the postcode- Penzance Station6.8 miles

Notes
Disclaimer - Property reference S1225652. The information displayed about this property comprises a property advertisement. Rightmove.co.uk makes no warranty as to the accuracy or completeness of the advertisement or any linked or associated information, and Rightmove has no control over the content. This property advertisement does not constitute property particulars. The information is provided and maintained by Andrew Exelby Estate Agents, St Just. Please contact the selling agent or developer directly to obtain any information which may be available under the terms of The Energy Performance of Buildings (Certificates and Inspections) (England and Wales) Regulations 2007 or the Home Report if in relation to a residential property in Scotland.
Map data ©OpenStreetMap contributors.





