The Old Smithy, Church Street, Oswestry, SY11 2SP
- SIZE AVAILABLE
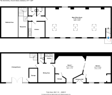
2,587 sq ft
240 sq m
- SECTOR
Office for sale
Key features
- High quality detached two property providing a Total Gross Internal Flor Area of approximately 2,587 ft sq (240.32 m sq)
- Generous provision of on site car parking
- Currently arranged to provide office/commercial space but would lend itself to residential conversion
- Located in Oswestry town centre
Description
The property provides an attractive detached two storey property that is arranged to provide a Total Gross Internal Floor Area of approximately 2,587 ft sq (240.32 m sq). The property has been used previously as a recording studio but provides flexible accommodation that could be used for a variety of office, educational and religious uses subject to any statutory consents. The accommodation would also lend itself to a residential conversion and the fact that the property has been subject to a scheme of upgrading works to the property and services by the current owner assists this potential.
The property is arranged as office space and welfare facilities currently and an inspection of the property is strongly recommended in order to appreciate the potential of the property.
The property benefits from a generous provision of car parking to the front of the property. The property is of traditional construction being part brick and part stonework under a slate roof cover. The property received a civic award at the time of the refurbishment works undertaken by the current owners.
Location
The property is pleasantly situated just off Church Street in the town centre of Oswestry. It is located in an area of mixed development at the rear of Prezzo’s Restaurant. The property is accessed via road off Church Street within the town centre and is located in proximity to all local amenities.
The market town of Oswestry, the gateway to Wales is the third-largest town in Shropshire, following Telford and Shrewsbury.
Situated at the junction of the A5, A483 and A495 roads, the town is approximately 19 miles northwest of Shrewsbury, approximately 20 miles southwest of Whitchurch and a little over an hour from the Welsh Coast.
The local area offers stunning walks and beautiful scenery, Offa's Dyke Path and Lake Vyrnwy and is within an hour of the Snowdonia National Park. Other nearby attractions include Pontcysyllte Aqueduct, a UNESCO World Heritage Site and several National Trust properties are nearby.
Oswestry boasts various annual events including, Oswestry Show, Oswestry Food Festival and the Balloon Festival.
Planning
The property is understood to benefit from planning consent for Use Class E of the Town and Country Use Classes Order.
The property would lend itself to a variety of commercial, educational and religious uses subject to statutory consents. The property provides an ideal opportunity for residential conversion
Services
(not tested)
Mains water, electricity and drainage are connected to the property we are advised, prospective purchasers should rely on their own enquiries.
Anti-money laundering (AML) checks
We are legally obligated to undertake anti-money laundering checks on all property purchasers. Whilst we are responsible for ensuring that these checks, and any ongoing monitoring, are conducted properly; the initial checks will be handled on our behalf by a specialist company, Movebutler, who will reach out to you once your offer has been accepted.
The charge for these checks is £30 (including VAT) per purchaser, which covers the necessary data collection and any manual checks or monitoring that may be required. This cost must be paid in advance, directly to Movebutler, before a memorandum of sale can be issued, and is non-refundable. We thank you for your cooperation.
Energy Performance Certificates
EPCBrochures
The Old Smithy, Church Street, Oswestry, SY11 2SP
NEAREST STATIONS
Distances are straight line measurements from the centre of the postcode- Gobowen Station2.6 miles




Notes
Disclaimer - Property reference 288136-1. The information displayed about this property comprises a property advertisement. Rightmove.co.uk makes no warranty as to the accuracy or completeness of the advertisement or any linked or associated information, and Rightmove has no control over the content. This property advertisement does not constitute property particulars. The information is provided and maintained by Halls Commercial, Shrewsbury. Please contact the selling agent or developer directly to obtain any information which may be available under the terms of The Energy Performance of Buildings (Certificates and Inspections) (England and Wales) Regulations 2007 or the Home Report if in relation to a residential property in Scotland.
Map data ©OpenStreetMap contributors.





