
3 bedroom detached house for sale
Sevington, Near Grittleton

- PROPERTY TYPE
Detached
- BEDROOMS
3
- BATHROOMS
2
- SIZE
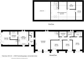
2,189 sq ft
203 sq m
- TENUREDescribes how you own a property. There are different types of tenure - freehold, leasehold, and commonhold.Read more about tenure in our glossary page.
Freehold
Key features
- Stunning detached barn conversion
- 0.8 acres of beautiful gardens
- Substantial, characterful accommodation
- 3 double bedrooms
- Large drawing room
- Stylish, bespoke fitted kitchen/breakfast room
- Versatile mezzanine floor/bedroom 4
- Air source heat pump system
- Private parking and garaging
Description
Description
The Old Byre is an exceptional natural stone barn conversion situated in the rural hamlet of Sevington near Grittleton. The barn is set within the most beautiful landscaped gardens of nearly an acre.
Sympathetically converted in 2002, the barn displays magnificent character throughout and is finished to a high standards including an updated air source heat pump which benefits from the remainder of a RHI grant generating around £1,750 p/a. The substantial accommodation extends to around 2,190 sq.ft and includes an entrance lobby with cloakroom off. The impressive kitchen boasting a high vaulted ceiling was refitted in 2022 with a bespoke handmade Kesseler Kitchen with Dekton worktops finished in black stone. There are a range of integrated appliances including a full height fridge, combination oven/microwave, dishwasher, and a WiFi activated oven and hob. Adjoining the kitchen there is a utility room with access into the garage.
At the heart of the home there is a stunning drawing room with a galleried mezzanine above. Glazed doors open to the garden and there is a cosy wood-burning stove. Stairs lead up to the mezzanine floor which incorporates a separate office. There are three/four bedroom accommodation (three plus dressing room currently) situated on the ground floor, a family bathroom, a bespoke-fitted dressing room/bedroom 4, and an en-suite bathroom to the main bedroom.
There is ample parking on the driveway where there is also access to the garaging. The garden has been the subject of much time and devotion creating an idyllic, private haven landscaped into various areas. A large patio terrace adjoins and has been designed with a covered pergola with heating, lighting and a stone-built BBQ cover. The principal garden has a block-paved terrace leading onto slate stone paths which meander through vibrant, well-stocked flower beds. A central lawn features a wooden pavilion style gazebo and beyond is a vegetable garden featuring raised beds, a greenhouse and timber shed. A five-bar gate opens to the side garden which is an enchanting private arboretum.
Situation
Additional Information
Brochures
Brochure 1- COUNCIL TAXA payment made to your local authority in order to pay for local services like schools, libraries, and refuse collection. The amount you pay depends on the value of the property.Read more about council Tax in our glossary page.
- Band: F
- PARKINGDetails of how and where vehicles can be parked, and any associated costs.Read more about parking in our glossary page.
- Garage,Driveway,Off street
- GARDENA property has access to an outdoor space, which could be private or shared.
- Private garden
- ACCESSIBILITYHow a property has been adapted to meet the needs of vulnerable or disabled individuals.Read more about accessibility in our glossary page.
- Ask agent
Sevington, Near Grittleton
Add an important place to see how long it'd take to get there from our property listings.
__mins driving to your place
Get an instant, personalised result:
- Show sellers you’re serious
- Secure viewings faster with agents
- No impact on your credit score
Your mortgage
Notes
Staying secure when looking for property
Ensure you're up to date with our latest advice on how to avoid fraud or scams when looking for property online.
Visit our security centre to find out moreDisclaimer - Property reference S953891. The information displayed about this property comprises a property advertisement. Rightmove.co.uk makes no warranty as to the accuracy or completeness of the advertisement or any linked or associated information, and Rightmove has no control over the content. This property advertisement does not constitute property particulars. The information is provided and maintained by James Pyle & Co, Cotswolds. Please contact the selling agent or developer directly to obtain any information which may be available under the terms of The Energy Performance of Buildings (Certificates and Inspections) (England and Wales) Regulations 2007 or the Home Report if in relation to a residential property in Scotland.
*This is the average speed from the provider with the fastest broadband package available at this postcode. The average speed displayed is based on the download speeds of at least 50% of customers at peak time (8pm to 10pm). Fibre/cable services at the postcode are subject to availability and may differ between properties within a postcode. Speeds can be affected by a range of technical and environmental factors. The speed at the property may be lower than that listed above. You can check the estimated speed and confirm availability to a property prior to purchasing on the broadband provider's website. Providers may increase charges. The information is provided and maintained by Decision Technologies Limited. **This is indicative only and based on a 2-person household with multiple devices and simultaneous usage. Broadband performance is affected by multiple factors including number of occupants and devices, simultaneous usage, router range etc. For more information speak to your broadband provider.
Map data ©OpenStreetMap contributors.





