Market Street, Maud, AB42

- PROPERTY TYPE
Semi-Detached
- BEDROOMS
4
- BATHROOMS
4
- SIZE
2,314 sq ft
215 sq m
- TENUREDescribes how you own a property. There are different types of tenure - freehold, leasehold, and commonhold.Read more about tenure in our glossary page.
Freehold
Description
"Fall in love with this historical gem in Maud!"
Lee-Ann from Low and Partners is delighted to present Ellangowan, Market Street, Maud, a magnificent period property that flawlessly blends historical charm with modern living requirements. This expansive home, rich in original features such as open fireplaces, is ideally suited for a large or multi-generational family, offers a perfect set-up for working from home, and can adapt to suit any lifestyle dream.
Key Property Features:
- Oil heating system and double glazing throughout.
- A generous living space of 215m2, ensuring ample room for family life and entertainment.
- A full-sized basement, mirroring the house's footprint, for extensive storage or conversion possibilities.
- A detached garage situated at the rear, coupled with two front parking spaces, providing convenient vehicle storage solutions.
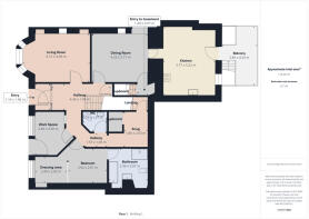
Accommodation:
Vestibule:
- A spacious entry area, featuring a radiator, lighting and partially glazed doors that open to a grand entrance hallway setting the tone for the rest of this impressive home.
Entrance Hallway:
- Serving as the heart of the home, leading to all accommodation, with attractive wood-effect flooring and a beautifully crafted staircase adorned with cast iron spindles.
Lounge:
- A cosy yet elegant space with an open fire, wood flooring, a bay window and adorned with gorgeous period features.
Dining Room:
- Featuring a striking display fireplace surround, Karndean flooring, and access to the basement. This room also connects directly to the kitchen.
Kitchen/Diner:
- A well-appointed large kitchen with abundant cabinetry, contrasting worktops, integrated appliances and a door leading out to a delightful balcony patio, ideal for al fresco dining.
Basement:
- A vast, versatile space with power, lighting and water supply; houses the boiler.
Front Reception/Study/Workspace:
- A flexible room with its own entrance, perfect as a home office or study, featuring laminate flooring and a front-facing window.
Bedrooms:
- This home boasts multiple bedrooms, including a bedroom with a designated dressing area, ensuite bathroom featuring a freestanding bath and walk-in shower. Other bedrooms are well-sized, with one offering potential as a home office.
Bathrooms:
- In addition to the ensuite, there is a ground floor WC, a shower room on the stairwell, and a generously sized Jack and Jill bathroom accessible from the master bedroom or the study/craft room.
Outside:
- The front of the property is elegantly enclosed by iron and wall frontage, with a quaint garden area and parking for two cars. At the rear, there is a garage/workshop with mezzanine level, power, and light, plus ample space to design an outdoor area to your liking.
Ellangown is a residence of distinction, offering the rare blend of period elegance and contemporary convenience, set in the charming locale of Maud. With its versatile spaces and thoughtful layout, it stands ready to become the perfect backdrop for your family's memories.
Location: The village of Maud boasts a variety of facilities, including a local convenience store, Longleys country store, a hairdresser and beauty salon, and a community resource centre with a health centre, gym, and community café. Additionally, the village features a garage, a church, a railway museum with access to scenic walking and cycling paths along former railway lines, a hotel, Maud FC Social Club, and a village hall. The village also has a primary school, with a secondary school located in the nearby village of Mintlaw, which offers regular bus services to Fraserburgh, Peterhead, Ellon, and Aberdeen.
Disclaimer
These particulars do not constitute any part of an offer or contract. All statements contained therein, while believed to be correct, are not guaranteed. All measurements are approximate. Intending purchasers must satisfy themselves by inspection or otherwise, as to the accuracy of each of the statements contained in these particulars.
- COUNCIL TAXA payment made to your local authority in order to pay for local services like schools, libraries, and refuse collection. The amount you pay depends on the value of the property.Read more about council Tax in our glossary page.
- Band: D
- PARKINGDetails of how and where vehicles can be parked, and any associated costs.Read more about parking in our glossary page.
- Garage,Driveway
- GARDENA property has access to an outdoor space, which could be private or shared.
- Yes
- ACCESSIBILITYHow a property has been adapted to meet the needs of vulnerable or disabled individuals.Read more about accessibility in our glossary page.
- Ask agent
Market Street, Maud, AB42
Add an important place to see how long it'd take to get there from our property listings.
__mins driving to your place
Get an instant, personalised result:
- Show sellers you’re serious
- Secure viewings faster with agents
- No impact on your credit score
Affordability
Notes
Staying secure when looking for property
Ensure you're up to date with our latest advice on how to avoid fraud or scams when looking for property online.
Visit our security centre to find out moreDisclaimer - Property reference RX547587. The information displayed about this property comprises a property advertisement. Rightmove.co.uk makes no warranty as to the accuracy or completeness of the advertisement or any linked or associated information, and Rightmove has no control over the content. This property advertisement does not constitute property particulars. The information is provided and maintained by Low & Partners, Aberdeen. Please contact the selling agent or developer directly to obtain any information which may be available under the terms of The Energy Performance of Buildings (Certificates and Inspections) (England and Wales) Regulations 2007 or the Home Report if in relation to a residential property in Scotland.
*This is the average speed from the provider with the fastest broadband package available at this postcode. The average speed displayed is based on the download speeds of at least 50% of customers at peak time (8pm to 10pm). Fibre/cable services at the postcode are subject to availability and may differ between properties within a postcode. Speeds can be affected by a range of technical and environmental factors. The speed at the property may be lower than that listed above. You can check the estimated speed and confirm availability to a property prior to purchasing on the broadband provider's website. Providers may increase charges. The information is provided and maintained by Decision Technologies Limited. **This is indicative only and based on a 2-person household with multiple devices and simultaneous usage. Broadband performance is affected by multiple factors including number of occupants and devices, simultaneous usage, router range etc. For more information speak to your broadband provider.
Map data ©OpenStreetMap contributors.





