
2 bedroom detached bungalow for sale
Sandown Road, Hastings, East Sussex, TN35

- PROPERTY TYPE
Detached Bungalow
- BEDROOMS
2
- BATHROOMS
2
- SIZE
4,350 sq ft
404 sq m
- TENUREDescribes how you own a property. There are different types of tenure - freehold, leasehold, and commonhold.Read more about tenure in our glossary page.
Freehold
Key features
- Brand new two-bedroom detached bungalow (subject to planning permission)
- Modern, energy-efficient design with high-quality finishes
- Close to local amenities, schools, and transport links
- Plot size approximately 4350ft2
- Freehold
- Register your interest now - more details to follow as development progresses
Description
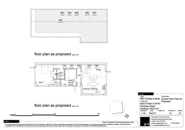
Planning has been submitted for this contemporary bungalow, which is thoughtfully designed to offer modern, single-level living with stylish finishes and energy-efficient features throughout. The bungalow will comprise two well-proportioned bedrooms, a spacious open-plan living and kitchen area with direct access to the garden, and a sleek, modern bathroom.
Externally, the property will benefit from private off-road parking and a low-maintenance garden.
Located in a popular residential area, Sandown Road offers convenient access to local amenities, transport links, and schools, while also being just a short distance from the seafront and picturesque Hastings Old Town.
Whether you're looking to downsize, invest, or secure your first home, this property presents an excellent opportunity to purchase a brand new home in a desirable area.
Register your interest now to receive updates and further information as development progresses.
Images are artist impression
- COUNCIL TAXA payment made to your local authority in order to pay for local services like schools, libraries, and refuse collection. The amount you pay depends on the value of the property.Read more about council Tax in our glossary page.
- Ask agent
- PARKINGDetails of how and where vehicles can be parked, and any associated costs.Read more about parking in our glossary page.
- Driveway
- GARDENA property has access to an outdoor space, which could be private or shared.
- Front garden,Private garden,Terrace
- ACCESSIBILITYHow a property has been adapted to meet the needs of vulnerable or disabled individuals.Read more about accessibility in our glossary page.
- Ask agent
Energy performance certificate - ask agent
Sandown Road, Hastings, East Sussex, TN35
Add an important place to see how long it'd take to get there from our property listings.
__mins driving to your place
Get an instant, personalised result:
- Show sellers you’re serious
- Secure viewings faster with agents
- No impact on your credit score
Your mortgage
Notes
Staying secure when looking for property
Ensure you're up to date with our latest advice on how to avoid fraud or scams when looking for property online.
Visit our security centre to find out moreDisclaimer - Property reference SANDOWNR5963. The information displayed about this property comprises a property advertisement. Rightmove.co.uk makes no warranty as to the accuracy or completeness of the advertisement or any linked or associated information, and Rightmove has no control over the content. This property advertisement does not constitute property particulars. The information is provided and maintained by Sensible Property Management Limited, Eastbourne. Please contact the selling agent or developer directly to obtain any information which may be available under the terms of The Energy Performance of Buildings (Certificates and Inspections) (England and Wales) Regulations 2007 or the Home Report if in relation to a residential property in Scotland.
*This is the average speed from the provider with the fastest broadband package available at this postcode. The average speed displayed is based on the download speeds of at least 50% of customers at peak time (8pm to 10pm). Fibre/cable services at the postcode are subject to availability and may differ between properties within a postcode. Speeds can be affected by a range of technical and environmental factors. The speed at the property may be lower than that listed above. You can check the estimated speed and confirm availability to a property prior to purchasing on the broadband provider's website. Providers may increase charges. The information is provided and maintained by Decision Technologies Limited. **This is indicative only and based on a 2-person household with multiple devices and simultaneous usage. Broadband performance is affected by multiple factors including number of occupants and devices, simultaneous usage, router range etc. For more information speak to your broadband provider.
Map data ©OpenStreetMap contributors.




