
Residential development for sale
Station Road, Perranporth
- PROPERTY TYPE
Residential Development
- SIZE
Ask agent
Key features
- RARE FREEHOLD OPPORTUNITY
- SUITABLE FOR OWNER OCCUPIER OR INVESTOR
- POPULAR TRADING ESTATE WITH EASY ACCESS TO A30 & TRURO
- TOTAL GROSS INTERNAL 203.61 SQ M (2,192 SQ FT)
- ON-SITE PARKING FOR 4 CARS, EXTERNAL STORAGE
- FEATURES INCLUDE: TRADE COUNTER, GROUND FLOOR, WAREHOUSE AND WC'S
- VACANT POSSESSION
Description
Located adjacent with an internal door is a covered area which has the potential to be fully enclosed or used for additional storage facilities.
Location - The unit is situated in Perranporth, offering access to local amenities and the picturesque beach. The town boasts a popular beach and The Watering Hole, a beachfront venue that hosts various events, including Tunes in The Dunes festival. Perranporth's location provided easy access to the A30 and is approximately six miles from Truro, the capital of Cornwall.
The unit is situated on Station Road Industrial Estate a popular trading estate within easy walking distance to the popular coastal resort of Perranporth.
Description - A rare freehold trade counter opportunity (which could easily be converted to offices or further warehousing) within Perranporth. The property comprises a large semi-detached building with on site car parking. The property is arranged internally to provide entrance trade counter leading to the main open plan warehouse. To the rear is a toilet area and a door at the rear provides access to an additional store.
Located adjacent with an internal door is a covered area which has the potential to be fully enclosed or used for additional storage facilities.
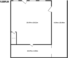
Accommodation - Main warehouse inc trade counter - 168.67 sq m (1,816 sq ft)
Rear Store - 34.94 sq m (376 sq ft)
Sice covered store - 58.66 sq m (631 sq ft)
Total area - 262.27 sq m (2,823 sq ft)
Legal Costs - Each party to bear their own legal costs incurred in the transaction.
Services - Services connected to the premises include mains water, drainage and electricity including three phase. We would point out that no trstin of the services has been carried out by the agent.
Business Rates - Cornwall Council are in the process of having the business rates re-assessed with the VOA.
Vat - We are adc=vised the property is not currently elected for VAT.
Epc - EPC rating - E
Certificate number - 7352-4332-2208-3608-6600
Expiry date - 21 April 2033
Price - Freehold with vacant possession. £299,000
Agents Notes - MONEY LAUNDERING REGULATIONS
Intending purchasers will be asked to produce identification documentation at offer stage and we would ask for your co-operation in order that there will be no delay in agreeing the sale.
PROPERTY MISDESCRIPTIONS
These details are for guidance only and complete accuracy cannot be guaranteed. They do not constitute a contract or part of a contract. All measurements are approximate. No guarantee can be given with regard to planning permissions or fitness for purpose. No guarantee can be given that the property is free from any latent or inherent defect. No apparatus, equipment, fixture or fitting has been tested. Items shown in photographs and plans are NOT necessarily included. If there is any point which is of particular importance to you, verification should be obtained. Interested parties are advised to check availability and make an appointment to view before travelling to see a property.
DATA PROTECTION ACT 2018
Please note that all personal information provided by customers wishing to receive information and/or services from the estate agent will be processed by the estate agent, for the purpose of providing services associated with the business of an estate agent and for the additional purposes set out in the privacy policy, copies available on request, but specifically excluding mailings or promotions by a third party. If you do not wish your personal information to be used for any of these purposes, please notify your estate agent.
Viewing /Further Information - Viewing strictly by appointment:-
SBC Property, Daniell House, Falmouth Road, Truro TR1 2HX
FAO - Carl Jenkin
Tel -
Email -
Camel Coastal & Country, 9 St Pirans Road, Perranporth TR6 0BH
FAO Simon Dowling
Tel -
Email -
Brochures
Station Road, PerranporthStation Road, Perranporth
NEAREST STATIONS
Distances are straight line measurements from the centre of the postcode- Newquay Station5.8 miles



Notes
Disclaimer - Property reference 33734168. The information displayed about this property comprises a property advertisement. Rightmove.co.uk makes no warranty as to the accuracy or completeness of the advertisement or any linked or associated information, and Rightmove has no control over the content. This property advertisement does not constitute property particulars. The information is provided and maintained by Camel Coastal and Country, Perranporth. Please contact the selling agent or developer directly to obtain any information which may be available under the terms of The Energy Performance of Buildings (Certificates and Inspections) (England and Wales) Regulations 2007 or the Home Report if in relation to a residential property in Scotland.
Map data ©OpenStreetMap contributors.






