7 bedroom villa for sale
Umbria, Terni, Orvieto, Italy
- PROPERTY TYPE
Villa
- BEDROOMS
7
- BATHROOMS
9
- SIZE
20,839 sq ft
1,936 sq m
Key features
- Villa
- Land
Description
State of repair
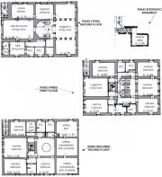
Villa La Madonnuccia was built in the 19th century and was renovated over time. The most recent intervention was in 2000. The fixtures are made of wood. The floors have distinct types of tiles, depending on the function of the room.
Utilities
The main utilities are connected and functioning. The heating system is powered by methane. The water supply is via the municipal aqueduct. There is also a private well. In the villa there is also a freight elevator that connects the three levels.
Use and Potential Uses
Featuring large and bright rooms, the villa may be turned into a prestigious residence as well as a holiday home or tourist rental, given the easy access and its strategic position, so close to both Orvieto and the A1 motorway exit.
Location
The property is located just 8 km from both the historic city centre of Orvieto, which stands on a tuff rock, and the A1 motorway exit and train station. Lake Bolsena is approximately 20 km away, while Civita di Bagnoregio "The Dying City" is approximately 12 km away.
Land registry details
For each property offered, the Great Estate group conducts – via the seller's technician – a technical due diligence. This allows us to know in detail the urbanistic planning and cadastral circumstances of each property. This due diligence may be requested by the client at the time of a real interest in the property.
Umbria, Terni, Orvieto, Italy
NEAREST AIRPORTS
Distances are straight line measurements- Leonardo da Vinci(International)63.3 miles
- Ciampino(International)67.8 miles
- Florence(International)88.3 miles
- Marina di Campo(International)95.1 miles
Advice on buying Italian property
Learn everything you need to know to successfully find and buy a property in Italy.
Notes
This is a property advertisement provided and maintained by Great Estate Immobiliare, Italy (reference 6731) and does not constitute property particulars. Whilst we require advertisers to act with best practice and provide accurate information, we can only publish advertisements in good faith and have not verified any claims or statements or inspected any of the properties, locations or opportunities promoted. Rightmove does not own or control and is not responsible for the properties, opportunities, website content, products or services provided or promoted by third parties and makes no warranties or representations as to the accuracy, completeness, legality, performance or suitability of any of the foregoing. We therefore accept no liability arising from any reliance made by any reader or person to whom this information is made available to. You must perform your own research and seek independent professional advice before making any decision to purchase or invest in overseas property.




