
Old Holbrook, Horsham, RH12

- PROPERTY TYPE
Detached
- BEDROOMS
5
- BATHROOMS
3
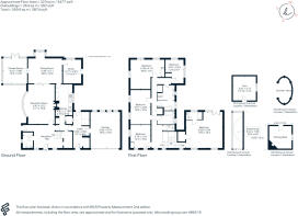
- SIZE
3,477 sq ft
323 sq m
- TENUREDescribes how you own a property. There are different types of tenure - freehold, leasehold, and commonhold.Read more about tenure in our glossary page.
Freehold
Key features
- Reception Hall
- Reception Room
- Dining Room
- Study
- Kitchen
- Utility Room
- Garden Room
- Five Bedrooms
- Family Bathroom
- 2 Shower Rooms (1 Ensuite)
Description
Outside
To the front of the house, there is a gated, gravelled in and out driveway with access to the garage and ample parking for several cars. The rear garden is a particular highlight of the property. It has a level lawn with mature shrubs, trees and beautifully planted beds and borders. Paths intertwine the beds and lead to the different areas of the garden, creating a magical feel. To the rear of the garden there is a tennis court and beyond that a brick potting shed and an area of fruit cages and planting, offering a wide variety of fruit trees and plants. The garden contains a further building built into the original walls, currently used as a gym, a 'wilded' area with pond, a green house and a wonderful paved terrace area with heated Breeze House perfect for entertaining all year round.
Situation
The property is set to the north of Horsham up a small lane. Horsham (about 3 miles) provides excellent amenities and a mainline rail service to London (Victoria/London Bridge). Littlehaven railway station is 1.3 miles distant. Horsham by-pass links with the M23 providing access to Gatwick Airport, the M25 and the national motorway network. Within the area there is a variety of sporting and recreational facilities including golf at Rusper, Cottesmore and Horsham and many rural/woodland walks. There is an excellent choice of private and state schools.
Property Ref Number:
HAM-56309Additional Information
Local Authority - Horsham District Council.
Council Tax Band G.
Brochures
Brochure- COUNCIL TAXA payment made to your local authority in order to pay for local services like schools, libraries, and refuse collection. The amount you pay depends on the value of the property.Read more about council Tax in our glossary page.
- Band: G
- PARKINGDetails of how and where vehicles can be parked, and any associated costs.Read more about parking in our glossary page.
- Garage,Off street
- GARDENA property has access to an outdoor space, which could be private or shared.
- Private garden
- ACCESSIBILITYHow a property has been adapted to meet the needs of vulnerable or disabled individuals.Read more about accessibility in our glossary page.
- Ask agent
Old Holbrook, Horsham, RH12
Add an important place to see how long it'd take to get there from our property listings.
__mins driving to your place
Get an instant, personalised result:
- Show sellers you’re serious
- Secure viewings faster with agents
- No impact on your credit score
Your mortgage
Notes
Staying secure when looking for property
Ensure you're up to date with our latest advice on how to avoid fraud or scams when looking for property online.
Visit our security centre to find out moreDisclaimer - Property reference a1nQ500000JEdLCIA1. The information displayed about this property comprises a property advertisement. Rightmove.co.uk makes no warranty as to the accuracy or completeness of the advertisement or any linked or associated information, and Rightmove has no control over the content. This property advertisement does not constitute property particulars. The information is provided and maintained by Hamptons, Horsham. Please contact the selling agent or developer directly to obtain any information which may be available under the terms of The Energy Performance of Buildings (Certificates and Inspections) (England and Wales) Regulations 2007 or the Home Report if in relation to a residential property in Scotland.
*This is the average speed from the provider with the fastest broadband package available at this postcode. The average speed displayed is based on the download speeds of at least 50% of customers at peak time (8pm to 10pm). Fibre/cable services at the postcode are subject to availability and may differ between properties within a postcode. Speeds can be affected by a range of technical and environmental factors. The speed at the property may be lower than that listed above. You can check the estimated speed and confirm availability to a property prior to purchasing on the broadband provider's website. Providers may increase charges. The information is provided and maintained by Decision Technologies Limited. **This is indicative only and based on a 2-person household with multiple devices and simultaneous usage. Broadband performance is affected by multiple factors including number of occupants and devices, simultaneous usage, router range etc. For more information speak to your broadband provider.
Map data ©OpenStreetMap contributors.








