Meadow View, 1 Pennywell Fields, Southfleet, Kent, DA13

- PROPERTY TYPE
House
- BEDROOMS
2
- BATHROOMS
2
- SIZE
Ask agent
- TENUREDescribes how you own a property. There are different types of tenure - freehold, leasehold, and commonhold.Read more about tenure in our glossary page.
Freehold
Key features
- Exclusive Collection of Six Individual New Builds
- Two Bedroom Two Bathroom Circa 1569 Sq Ft Linked House.
- Architectural Character Detailing
- High Specification Interiors
- Idyllic Countryside Setting with Rural Views
- Landscaped Lawned Garden with Store
- Carport & Parking with EV Charging Point
- Air Source Heat Pumps
- Excellent Road Transport Links
- Build Zone 10 Year Insurance Warranty
Description
Pennywell Fields is an exclusive collection of six thoughtfully designed homes in the picturesque village of Betsham, Nr Southfleet surrounded by open farmland yet ideally positioned for modern convenience. The collection includes a mix of home styles to suit a variety of needs ‘Meadow View’ is a 2 bedroom circa 1569 Sq Ft linked house.
Nestled between charming converted farm buildings and traditional Oast houses, this unique development has been designed to seamlessly blend into its historic farmyard surroundings. Each home boasts a unique character while maintaining a harmonious architectural style, built from high-quality yellow stock bricks with red brick arches over windows and doors. The first-grade Spanish slate roofs further enhance the development’s timeless appeal, with select properties featuring part-rendered facades. With its idyllic countryside setting, individual home designs, and excellent transport links, Pennywell Fields offers a rare opportunity to enjoy rural living without compromising on connectivity and modern convenience. Located just a short drive from Ebbsfleet International Station, providing high-speed rail links to London, and within easy reach of Bluewater shopping centre, the development offers the perfect balance of rural tranquillity and accessibility. The M25 is also nearby, making it an excellent choice for commuters and families alike.
Five of the properties benefit from attached oak-framed car ports, adding a rustic elegance to the exteriors, with the exception of Home House. Inside, four of the homes (Springfield House, Home House, Pennywell House, and Bluebell Croft) there features striking brick fireplaces, designed to accommodate log burners, adding warmth and character to the living spaces.
Location
Southfleet is a delightful semi-rural village offering local primary school, church and public houses, ideally situated with easy access of the village of Longfield and Gravesend town centre providing further shopping recreational and educational facilities including mainline railway station to London on to Victoria and Charing Cross lines respectively. The A2 and M25 motorways together with Bluewater, the Channel Ports and Ebbsfleet International station providing a 20 minute link to London St Pancras are also within access.
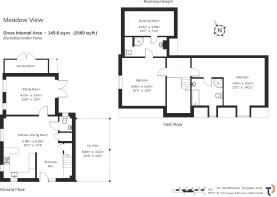
Entrance Hall
Double glazed door to front. Double glazed window to front. Engineered Oak flooring with underfloor heating. Plain ceiling. Understairs cupboard housing consumer unit and underfloor manifold. Stairs leading to first floor. Second cupboard housing water cylinder.
Cloakroom
4' 7" x 3' 8" (1.4m x 1.12m)
Double glazed frosted window to rear. Plain ceiling with downlights. Tiled flooring with underfloor heating. Low level WC. Wash hand basin in vanity unit with mixer taps. Local tiling to walls. Mirror with light. Extractor fan.
Sitting Room
15' 6" x 12' 0" (4.72m x 3.66m)
Two double glazed Georgian style windows to side. Double glazed French doors to side. Plain ceiling. Engineered Oak flooring with underfloor heating.
Kitchen/Dining Area
9' 8" x 19' 5" (2.95m x 5.92m)
Two double glazed Georgian style windows to side. Double glazed Georgian style window to front. Plain ceiling with downlights. Engineered Oak flooring with underfloor hearing. One and a half bowl composite sink. Wall and base units with Quartz work tops over and upstands over. AEG oven and grill. AEG induction hob with extractor fan over. Neff dishwasher. AEG fridge/freezer. Integrated washing machine.
Landing
Vaulted ceiling with skylight. Carpet. Radiator.
Bedroom
7.06m narrowing to 4.06m' x 4.55m narrowing to 2.44m - Double glazed Georgian style window to front. Plain ceiling. Carpet. Two radiators.
En-Suite Bathroom
9' 7" x 8' 5" (2.92m x 2.57m)
Double glazed frosted window to front. Plain ceiling. Extractor fan. Tiled flooring. Heated towel rail. Bath with hand held shower and mixer taps. Low level WC. Wash hand basin in vanity unit with mixer taps. Shower with hand held and overhead shower. Mirror with light. Local tiling to walls. Shaver socket.
Bedroom Two
15' 1" x 13' 9" (4.6m x 4.2m)
Double glazed Georgian window to side. Plain ceiling. Carpet. Radiator.
En-Suite Shower Room
11' 1" x 6' 2" (3.38m x 1.88m)
Plain ceiling with downlights. Extractor fan. Tiled flooring. Heated towel rail. Low level WC. Wash hand basin in vanity unit with mixer taps. Shower with hand held and overhead shower. Local tiling to walls. Mirror with light. Shaver socket. Recessed shelving.
Dressing Room
15' 7" x 7' 10" (4.75m x 2.4m)
Plain ceiling. Carpet.
Rear Garden
16' 5" x 36' 2" (5m x 11.02m)
L shaped. Laid to lawn. Shrub borders. Indian sandstone patio area. Panasonic air source heat pump. Fenced with two side gates.
Garden Store
13' 7" x 4' 2" (4.14m x 1.27m)
Twin power socket.
Carport
22' 6" x 10' 2" (6.86m x 3.1m)
Oak framed carport. Plain ceiling. Wall lights. Double external power socket. Outside tap. EV charger.
Parking
Parking space.
Transport Information
Train Stations: Ebbsfleet International 1.4 miles Northfleet 1.7 miles Longfield 1.9 miles Greenhithe 2.3 miles Gravesend 2.7 miles The distances calculated are as the crow flies.
Local Schools
Primary Schools: Sedley's Church of England Primary School 0.5 miles Ebbsfleet Green Primary School 1 mile Bean Primary School 1 mile Springhead Park Primary School 1.1 miles Painters Ash Primary School 1.2 miles Secondary Schools: Ebbsfleet Academy 1.4 miles Northfleet School for Girls 1.4 miles Northfleet Technology College 1.6 miles Longfield Academy 1.8 miles Rowhill School 1.8 miles St. George's CofE School 2.1 miles Mayfield Grammar School 2.3 miles Gravesend Grammar School 3.3 miles Information sourced from Rightmove (findaschool). Please check with the local authority as to catchment areas and intake criteria.
Useful Information
We recognise that buying a property is a big commitment and therefore recommend that you visit the local authority websites for more helpful information about the property and local area before proceeding. Some information in these details are taken from third party sources. Should any of the information be critical in your decision making then please contact Clifton & Co for verification.
Tenure
The vendor confirms to us that the property is freehold. Should you proceed with the purchase of the property your solicitor must verify these details.
Council Tax
For confirmation please contact Dartford Borough Council.
Appliances/Services
The mention of any appliances and/or services within these particulars does not imply that they are in full efficient working order.
Measurements
All measurements are approximate and therefore may be subject to a small margin of error.
Viewings
Monday to Friday 9.00 am – 6.30 pm Saturday 9.00 am – 6.00 pm
Ref
LNH/CB/DH/250407 - HAR210087/D2
Brochures
Particulars- COUNCIL TAXA payment made to your local authority in order to pay for local services like schools, libraries, and refuse collection. The amount you pay depends on the value of the property.Read more about council Tax in our glossary page.
- Band: TBC
- PARKINGDetails of how and where vehicles can be parked, and any associated costs.Read more about parking in our glossary page.
- Yes
- GARDENA property has access to an outdoor space, which could be private or shared.
- Yes
- ACCESSIBILITYHow a property has been adapted to meet the needs of vulnerable or disabled individuals.Read more about accessibility in our glossary page.
- Ask agent
Meadow View, 1 Pennywell Fields, Southfleet, Kent, DA13
Add an important place to see how long it'd take to get there from our property listings.
__mins driving to your place
Get an instant, personalised result:
- Show sellers you’re serious
- Secure viewings faster with agents
- No impact on your credit score
Your mortgage
Notes
Staying secure when looking for property
Ensure you're up to date with our latest advice on how to avoid fraud or scams when looking for property online.
Visit our security centre to find out moreDisclaimer - Property reference HAR250044. The information displayed about this property comprises a property advertisement. Rightmove.co.uk makes no warranty as to the accuracy or completeness of the advertisement or any linked or associated information, and Rightmove has no control over the content. This property advertisement does not constitute property particulars. The information is provided and maintained by Clifton & Co Estate Agents, North Kent. Please contact the selling agent or developer directly to obtain any information which may be available under the terms of The Energy Performance of Buildings (Certificates and Inspections) (England and Wales) Regulations 2007 or the Home Report if in relation to a residential property in Scotland.
*This is the average speed from the provider with the fastest broadband package available at this postcode. The average speed displayed is based on the download speeds of at least 50% of customers at peak time (8pm to 10pm). Fibre/cable services at the postcode are subject to availability and may differ between properties within a postcode. Speeds can be affected by a range of technical and environmental factors. The speed at the property may be lower than that listed above. You can check the estimated speed and confirm availability to a property prior to purchasing on the broadband provider's website. Providers may increase charges. The information is provided and maintained by Decision Technologies Limited. **This is indicative only and based on a 2-person household with multiple devices and simultaneous usage. Broadband performance is affected by multiple factors including number of occupants and devices, simultaneous usage, router range etc. For more information speak to your broadband provider.
Map data ©OpenStreetMap contributors.







