
3 bedroom penthouse for sale
Long Lane, London, SE1

- PROPERTY TYPE
Penthouse
- BEDROOMS
3
- BATHROOMS
2
- SIZE
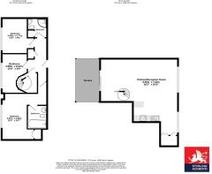
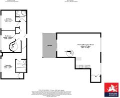
1,050 sq ft
98 sq m
Key features
- Three double bedrooms
- Two bathrooms
- Split-level penthouse
- Share of freehold
- Daytime concierge
- Secure parking
Description
This lovely apartment is set over the fourth and fifth floors of this former leather tannery which still has the original rain water tank and internally the flat has exposed brick work, original Crittall windows, steel and wooden beams and on the upper floor wooden flooring. The three bedrooms are all on the lower floor, the main bedroom has an en-suite bathroom, and there is a shower room as well. The large living room and open-plan kitchen is accessed via spiral staircase to the fifth floor with access to the terrace.
The location has become one of London’s most popular places to live and work. Tanners Yard is very close to all the fantastic culinary delights of Bermondsey Street, Borough Market and Shad Thames, all amenities are within walking distance and public transport links are excellent. The area has a lovely village feel to it with amazing restaurants such as Jose's Tapas bar and Pizarro restaurant, Angela Hartnett's Café Murano, Casse-Croute, Baccala and the Michelin star Trivet on Snowsfields and many more. There is a great selection of boutiques, gastro pubs, bars and the renowned White Cube Art Gallery is nearby.
This property is being sold with no onward chain, share of freehold and approximately £5,987pa service charge (currently there is a temporary additional contribution for next year approximately £2500/£3000 TBC)
Brochures
Particulars- COUNCIL TAXA payment made to your local authority in order to pay for local services like schools, libraries, and refuse collection. The amount you pay depends on the value of the property.Read more about council Tax in our glossary page.
- Band: F
- PARKINGDetails of how and where vehicles can be parked, and any associated costs.Read more about parking in our glossary page.
- Covered,Permit,Gated,Off street,Allocated,Private,Residents,Garage en bloc
- GARDENA property has access to an outdoor space, which could be private or shared.
- Yes
- ACCESSIBILITYHow a property has been adapted to meet the needs of vulnerable or disabled individuals.Read more about accessibility in our glossary page.
- Ask agent
Long Lane, London, SE1
Add an important place to see how long it'd take to get there from our property listings.
__mins driving to your place
Get an instant, personalised result:
- Show sellers you’re serious
- Secure viewings faster with agents
- No impact on your credit score



Your mortgage
Notes
Staying secure when looking for property
Ensure you're up to date with our latest advice on how to avoid fraud or scams when looking for property online.
Visit our security centre to find out moreDisclaimer - Property reference BAN250026. The information displayed about this property comprises a property advertisement. Rightmove.co.uk makes no warranty as to the accuracy or completeness of the advertisement or any linked or associated information, and Rightmove has no control over the content. This property advertisement does not constitute property particulars. The information is provided and maintained by Stirling Ackroyd Sales, London Bridge. Please contact the selling agent or developer directly to obtain any information which may be available under the terms of The Energy Performance of Buildings (Certificates and Inspections) (England and Wales) Regulations 2007 or the Home Report if in relation to a residential property in Scotland.
*This is the average speed from the provider with the fastest broadband package available at this postcode. The average speed displayed is based on the download speeds of at least 50% of customers at peak time (8pm to 10pm). Fibre/cable services at the postcode are subject to availability and may differ between properties within a postcode. Speeds can be affected by a range of technical and environmental factors. The speed at the property may be lower than that listed above. You can check the estimated speed and confirm availability to a property prior to purchasing on the broadband provider's website. Providers may increase charges. The information is provided and maintained by Decision Technologies Limited. **This is indicative only and based on a 2-person household with multiple devices and simultaneous usage. Broadband performance is affected by multiple factors including number of occupants and devices, simultaneous usage, router range etc. For more information speak to your broadband provider.
Map data ©OpenStreetMap contributors.





