Astwick Road, Stotfold, SG5

- PROPERTY TYPE
Detached
- BEDROOMS
4
- BATHROOMS
2
- SIZE
Ask agent
- TENUREDescribes how you own a property. There are different types of tenure - freehold, leasehold, and commonhold.Read more about tenure in our glossary page.
Freehold
Key features
- Resin driveway provides off road parking for several cars with EV charger
- Master bedroom with built in wardrobe and contemporary en suite
- 4 Piece re-fitted family bathroom suite
- A versatile layout with 3x reception rooms
- Private enclosed landscaped rear garden with timber summerhouse
- Useful Utility Room & Cloakroom
- Easy access to A1 (M) and mainline train stations
Description
This double fronted 4 bedroom detached home has been sympathetically extended to provide a versatile layout with the benefit of spacious family living. The property has been updated throughout by the current owners and is well presented throughout.
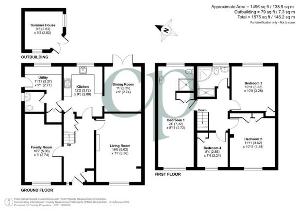
Entrance Hall
Stairs rising to first floor. Vertical radiator. Storage cupboard with hanging rail and shelving. Parquet flooring. Doors into Family Room, Living Room and Kitchen. Understairs storage space by Clever Closets.
Living Room
16' 6" x 11' 0" (5.02m x 3.36m) Double glazed window to front. Parquet flooring. Feature fireplace with tiled hearth and timber mantel. Vertical radiator.
Family Room
16' 7" x 9' 0" (5.06m x 2.74m) Double glazed window to front. Radiator.
Kitchen
12' 2" x 9' 5" (3.72m x 2.88m) A range of wall and base units with oak worksurfaces over. Inset one and half bowl ceramic sink and drainer with swan neck mixer tap over. Space for gas range cooker with extractor hood over. Understairs pantry cupboard. Wall mounted gas boiler enclosed in cupboard, approx. installed in 2018. Space and power for dishwasher. Space for American style fridge/freezer. Double glazed window to rear. Tiled flooring. Vertical radiator. Doors into Dining Room and Utility Room.
Dining Room
11' 0" x 9' 0" (3.35m x 2.74m) Parquet flooring. Double glazed double doors onto rear garden. Vertical radiator.
Utility
11' 11" x 9' 1" (3.67m x 2.77m) Base units with oak worksurfaces over and upstands. Space and plumbing for washing machine and space for tumble dryer. Double glazed window to rear. Radiator. Extractor fan. Tiled flooring. Large double cupboard with shelving. Door to side for access to rear garden and gated access to front. Door to cloakroom.
Cloakroom
Wash hand basin and low level WC. Tiled splashbacks. Obscure double glazed window to side. Tiled flooring. Radiator.
Landing
Loft access. Doors into all rooms and bathroom.
Bedroom One
24' 0" x 8' 11" (7.32m x 2.72m) Master bedroom with double glazed window to front. Radiator. Built in wardrobes. Open plan to En Suite.
En Suite
Double shower cubicle, vanity wash hand basin with tiled splashbacks and low level WC. Obscure double glazed window to rear. Victorian style radiator/heated towel rail. Shaver point. Extractor fan.
Bedroom Two
11' 11" x 10' 11" (3.62m x 3.34m) Double glazed window to front. Radiator. Two built in wardrobes.
Bedroom Three
10' 11" x 10' 9" (3.32m x 3.28m) Double glazed window to rear. Radiator. Built in wardrobe.
Bedroom Four
8' 4" x 7' 4" (2.55m x 2.24m) Double glazed window to front. Radiator. Built in wardrobe. Wood paneling to dado height.
Bathroom
Four piece suite comprising panel enclosed bath tub with mixer shower attachment over, double shower cubicle, low level WC and pedestal wash hand basin. Shaver point. Chrome heated towel rail. Ceramic tiled flooring. Extractor fan.
Front Garden and Parking
Large resin driveway providing off road parking for several cars. Flower and shrub boarders. EV charging point. Up and down lighters. Established Magnolia tree.
Rear Garden
Rear garden mainly laid to lawn, with large paved patio area. Raised flower and shrubs boarders. Timber Summer House. Security light. External water tap. External power points. Storage shed to side of property. Gated access to front.
Summer House
9' 3" x 9' 3" (2.83m x 2.82m) Summer house with power and lighting.
Brochures
Brochure 1Brochure 2- COUNCIL TAXA payment made to your local authority in order to pay for local services like schools, libraries, and refuse collection. The amount you pay depends on the value of the property.Read more about council Tax in our glossary page.
- Band: D
- PARKINGDetails of how and where vehicles can be parked, and any associated costs.Read more about parking in our glossary page.
- Yes
- GARDENA property has access to an outdoor space, which could be private or shared.
- Yes
- ACCESSIBILITYHow a property has been adapted to meet the needs of vulnerable or disabled individuals.Read more about accessibility in our glossary page.
- Ask agent
Astwick Road, Stotfold, SG5
Add an important place to see how long it'd take to get there from our property listings.
__mins driving to your place
Get an instant, personalised result:
- Show sellers you’re serious
- Secure viewings faster with agents
- No impact on your credit score
Your mortgage
Notes
Staying secure when looking for property
Ensure you're up to date with our latest advice on how to avoid fraud or scams when looking for property online.
Visit our security centre to find out moreDisclaimer - Property reference 28790359. The information displayed about this property comprises a property advertisement. Rightmove.co.uk makes no warranty as to the accuracy or completeness of the advertisement or any linked or associated information, and Rightmove has no control over the content. This property advertisement does not constitute property particulars. The information is provided and maintained by Country Properties, Stotfold. Please contact the selling agent or developer directly to obtain any information which may be available under the terms of The Energy Performance of Buildings (Certificates and Inspections) (England and Wales) Regulations 2007 or the Home Report if in relation to a residential property in Scotland.
*This is the average speed from the provider with the fastest broadband package available at this postcode. The average speed displayed is based on the download speeds of at least 50% of customers at peak time (8pm to 10pm). Fibre/cable services at the postcode are subject to availability and may differ between properties within a postcode. Speeds can be affected by a range of technical and environmental factors. The speed at the property may be lower than that listed above. You can check the estimated speed and confirm availability to a property prior to purchasing on the broadband provider's website. Providers may increase charges. The information is provided and maintained by Decision Technologies Limited. **This is indicative only and based on a 2-person household with multiple devices and simultaneous usage. Broadband performance is affected by multiple factors including number of occupants and devices, simultaneous usage, router range etc. For more information speak to your broadband provider.
Map data ©OpenStreetMap contributors.





