Skip to content

2 bedroom lodge for sale

Tuscany, Pisa, Chianni, Italy

£429,413
€495,000
L'Architrave Immobiliare, Licciana Nardi
PROPERTY TYPE

Lodge

BEDROOMS

2

BATHROOMS

3

SIZE

1,615 sq ft

150 sq m

Key features

  • House
  • Within 1 Hour Of An Airport
  • Close To Amenities

Description

Exclusive home within a select high end development, with private garden, communal pool and parking.

In the picturesque village of Chianni, walking distance to restaurants, bars and shops, a small oasis of peace perfect to relax and enjoy Tuscany with amazing views over the hills. Luxury finishings and unique location with the atmosphere of a historical Tuscan home.

The Borgo comprises 12 units and offers a large communal area with swimming pool and gardens. Private parking is available (garage), free parking is also available next to the borgo. All services are connected with intelligent wiring stystems, heating and plumbing with the option of controlling them remotely. An excellent investment opportunity for seasonal letting and for exploring and enjoy the authentic Tuscany and "Rolling Hills"

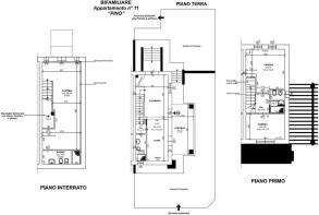
Il Pino has a private entrance and private garden on the living side and on the kitchen side: on the ground floor there is a large living area with fireplace and equiped kitchen; on the first floor 2 bedrooms and bathroom and on the lower ground floor another living area with sofabed and a second bathroom.

Set in Chianni, a pretty, well-kept and perfectly Tuscan town, coated in pots of red geraniums and full of cobbled narrow lanes which open onto intimate little piazzas with stunning churches around every corner. The ancient little town rises above the rolling Tuscan hills, so there are open views in all directions. There are good services including shops, banks, restaurants, post office, friendly cafes and interesting events throughout the year. The most important of these are the olive oil festival and the wild boar festival. With a good, friendly bistro in the village piazza, local pizzeria and a choice of restaurants there is a busy community, both italian and international in this popular village. Pontedera is an interesting town and has the main train station on the Pisa- Florence line, good road links and supermarkets. There is a sense of timelessness and calm in Chianni, yet it is only 40 minutes from Pisa airport.

The surrounding area is beautiful and a perfect base from which to explore Tuscany. Near Chianni it is an easy drive to the pretty village of Lari, with an ancient castle and then on to the beautiful town of Casciana Terme, famous for thermal waters with a newly renovated spa with indoor and outdoor pools. Casciana Terme is dominated by another castle, with a beautiful central piazza and since Roman times it has been famous for the curative warm waters. Today it is a bustling town with a busy weekly market and great shops and restaurants and a famous theatre. It is halfway between the famous hilltop village of Volterra and the splendours of Pisa.

The coastal cities of Castiglioncello and Cecina, the golf courses of Pisa and Castelfalfi, and the historic towns of Volterra and San Gimignano are all within easy reach, and each make a wonderful day out. The old town of Livorno is close too, with rocky beaches and a maze of canals to discover by boat and from where it is possible to hop on the ferry to relax in the gentle pace of beach life on the island of Elba. The nearby città d’arte (cities of art) include Volterra, San Gimignano, Palaia and Florence, each offering splendid art and architecture to admire. The rolling hills in between, dotted with medieval villages and castles, and with lanes flanked with tall dark green cypress trees epitomize this Tuscan landscape. In Lajatico, Andrea Bocelli, the famous tenor, has his Teatro del Silenzio (the Theatre of Silence) which draws some of the biggest names in music and opera when he hosts a spectacular summer festival in July. There is so much to discover in Tuscany. Pisa airport in 30-40 mins.

Distances: Chianni on the doorstep, Lari 4 km, Casciana Terme 10 km, Pontedera (trains, supermarkets) 10 km, Palaia 25 km, Beaches 30 km, Castelfalfi (Golf and Spa Resort) 30 km, Livorno 30 km, Volterra 30 km, San Gimignano 45 km, Pisa (airport) 40 km, Lucca 75 km, Siena 85 km, Florence 90 km.

Tuscany, Pisa, Chianni, Italy

NEAREST AIRPORTS

Distances are straight line measurements
  • Galileo(International)
    17.8 miles
  • Florence(International)
    35.8 miles
  • Marina di Campo(International)
    53.8 miles
  • Borgo Panigale(International)
    79.7 miles

Advice on buying Italian property

Learn everything you need to know to successfully find and buy a property in Italy.

About L'Architrave Immobiliare, Licciana Nardi

Via Montebello 20, Licciana Nardi, 54016, Tuscany, Italy.

“L’Architrave, licensed and qualified Italian estate agents founded in 1987, are specialists in property sales and restoration in Lunigiana, Northern Tuscany and the surrounding areas. Our multinational team combines local Italian and English staff that will escort you around both the area and properties and their considerable knowledge and experience is at your disposal.

We can guide you through every stage of the purchase from arrival on your first viewing trip to the handing over of the keys. We offer a comprehensive, professional and relaxed service and will give you all the advice and assistance we can but you will not be subjected to high pressure selling techniques, the decision to buy remains yours.

We will ask for your particular requirements and price range and prepare a viewing schedule also based on the time you have available. On your arrival at our office we will discuss the viewing schedule and any additional properties with you to ensure you are happy with the itinerary before setting out to view the properties.

Although we endeavour to keep our brochure and website up to date, properties may be sold on arrival. Our brochure and web site, show a selection of the properties that we have on our books at any one time. We usually have a diverse range of over 500 so let us have your specifications and we will be able to suggest a number of other properties that meet your requirements. “

Notes

These notes are private, only you can see them.

This is a property advertisement provided and maintained by L'Architrave Immobiliare, Licciana Nardi (reference 17297ilpino2403) and does not constitute property particulars. Whilst we require advertisers to act with best practice and provide accurate information, we can only publish advertisements in good faith and have not verified any claims or statements or inspected any of the properties, locations or opportunities promoted. Rightmove does not own or control and is not responsible for the properties, opportunities, website content, products or services provided or promoted by third parties and makes no warranties or representations as to the accuracy, completeness, legality, performance or suitability of any of the foregoing. We therefore accept no liability arising from any reliance made by any reader or person to whom this information is made available to. You must perform your own research and seek independent professional advice before making any decision to purchase or invest in overseas property.

Email agent

Email agent