
4 bedroom detached house for sale
Victoria Road, Knaphill, Woking, Surrey, GU21

- PROPERTY TYPE
Detached
- BEDROOMS
4
- BATHROOMS
2
- SIZE
1,460 sq ft
136 sq m
- TENUREDescribes how you own a property. There are different types of tenure - freehold, leasehold, and commonhold.Read more about tenure in our glossary page.
Freehold
Key features
- Walking Distance to Knaphill Village
- Self Contained One Bedroom Annex
- Open Plan Kitchen/Dining Room
- Off Street Parking For 2/3 Cars
- Downstairs Cloakroom
- Close to Bus Links Offering Easy Access to Woking Town Centre
- Spacious Lounge
- Dining Room
Description
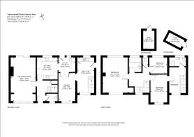
The property is presented to market in excellent condition, having been well maintained by the current owners, and presents an excellent opportunity for flexible living arrangements.
The main house enjoys the use of three bedrooms, two of which are spacious doubles. These share the use of a modern family bathroom fitted with white sanitary ware that includes a wash hand basin with vanity unit, providing useful storage space and panel enclosed bath with a wall mounted shower. The w/c is separate.
Downstairs is spacious front to back lounge with a feature fireplace and sliding doors giving access to the garden. In addition, there is a well-appointed kitchen fitted with a range of base and eye level units with an adjoining utility area and double doors leading into a dining room. |A downstairs cloakroom completes the accommodation on offer.
The annexe is accessible via the main house or its own entrance that leads you into an open plan living space that includes the lounge and kitchen. Stairs lead you from here, up to a bedroom with an en suite shower.
Outside is a well-maintained garden that comes mainly laid to lawn with a decking area providing space to sit or entertain. The clever design enables to gardens to be separated if required, so the main house and annexe have their own private outside space
Location
Knaphill village has a vibrant range of shops, pubs, restaurants and a Post Office. For more comprehensive shopping, Sainsbury's superstore is approximately quarter of a mile away. For commuting, Brookwood station provides a regular service direct to London Waterloo, Woking and Guildford. For those who enjoy the outdoors, there is Brookwood Country Park close by which is ideal for dog walking or a family stroll.
- COUNCIL TAXA payment made to your local authority in order to pay for local services like schools, libraries, and refuse collection. The amount you pay depends on the value of the property.Read more about council Tax in our glossary page.
- Band: E
- PARKINGDetails of how and where vehicles can be parked, and any associated costs.Read more about parking in our glossary page.
- Yes
- GARDENA property has access to an outdoor space, which could be private or shared.
- Yes
- ACCESSIBILITYHow a property has been adapted to meet the needs of vulnerable or disabled individuals.Read more about accessibility in our glossary page.
- Ask agent
Victoria Road, Knaphill, Woking, Surrey, GU21
Add an important place to see how long it'd take to get there from our property listings.
__mins driving to your place
Get an instant, personalised result:
- Show sellers you’re serious
- Secure viewings faster with agents
- No impact on your credit score
Your mortgage
Notes
Staying secure when looking for property
Ensure you're up to date with our latest advice on how to avoid fraud or scams when looking for property online.
Visit our security centre to find out moreDisclaimer - Property reference KNA140100. The information displayed about this property comprises a property advertisement. Rightmove.co.uk makes no warranty as to the accuracy or completeness of the advertisement or any linked or associated information, and Rightmove has no control over the content. This property advertisement does not constitute property particulars. The information is provided and maintained by Seymours Estate Agents, Knaphill. Please contact the selling agent or developer directly to obtain any information which may be available under the terms of The Energy Performance of Buildings (Certificates and Inspections) (England and Wales) Regulations 2007 or the Home Report if in relation to a residential property in Scotland.
*This is the average speed from the provider with the fastest broadband package available at this postcode. The average speed displayed is based on the download speeds of at least 50% of customers at peak time (8pm to 10pm). Fibre/cable services at the postcode are subject to availability and may differ between properties within a postcode. Speeds can be affected by a range of technical and environmental factors. The speed at the property may be lower than that listed above. You can check the estimated speed and confirm availability to a property prior to purchasing on the broadband provider's website. Providers may increase charges. The information is provided and maintained by Decision Technologies Limited. **This is indicative only and based on a 2-person household with multiple devices and simultaneous usage. Broadband performance is affected by multiple factors including number of occupants and devices, simultaneous usage, router range etc. For more information speak to your broadband provider.
Map data ©OpenStreetMap contributors.





