Quattro Raunds, Raunds, Northamptonshire, NN9 6EQ
- SIZE AVAILABLE
10,650-117,050 sq ft
989-10,874 sq m
- SECTOR
Distribution warehouse to lease
Lease details
- Lease available date:
- 01/04/2026
- Lease type:
- Long term
Key features
- Available Q4 2025
- BREEAM 'Excellent'
- Enhanced Specification
- Strong local demographics
- 8 - 12m Clear Internal Height
Description
The scheme has been designed to accommodate enhanced specifications and includes various sustainable initiatives that are of critical importance to Hillwood and their stakeholders. Units will be finished to Hillwood's highest standards and occupiers can expect best-in-class facilities.
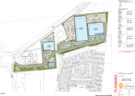
Construction is now underway on the new 4 unit scheme.
With strategic links to the A14 and M1 Motorway, connectivity across Northamptonshire as well as the East of England has never been better. Northampton, Kettering, Wellingborough and Corby are all within 20 miles, whilst Cambridge is only 38 miles away.
For viewings and further details please contact the agents.
Terms on application
Brochures
Quattro Raunds, Raunds, Northamptonshire, NN9 6EQ
NEAREST STATIONS
Distances are straight line measurements from the centre of the postcode- Wellingborough Station6.5 miles
Notes
Disclaimer - Property reference 231162-2. The information displayed about this property comprises a property advertisement. Rightmove.co.uk makes no warranty as to the accuracy or completeness of the advertisement or any linked or associated information, and Rightmove has no control over the content. This property advertisement does not constitute property particulars. The information is provided and maintained by M1 Agency LLP, London. Please contact the selling agent or developer directly to obtain any information which may be available under the terms of The Energy Performance of Buildings (Certificates and Inspections) (England and Wales) Regulations 2007 or the Home Report if in relation to a residential property in Scotland.
Map data ©OpenStreetMap contributors.





