Detached house for sale
Beira Litoral, Seixo da Beira, Portugal
- PROPERTY TYPE
Detached
- SIZE
1,615 sq ft
150 sq m
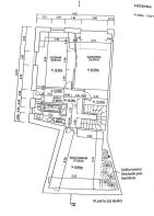
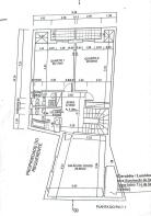
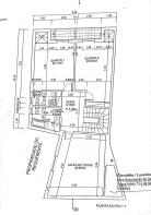
Description
Unique opportunity to acquire a fully enclosed stone property with a gate, located in the center of Seixo da Beira village. This ruin has great potential and comes with a stunning architectural project included in the sale, transforming the space into a spacious and bright home.
The project features:
Game room
Bright skylight
Large bedrooms
Spacious living room (29m²)
Interior garden
Functional kitchen
2 bathrooms
Garage
This is the perfect opportunity for those looking to restore a stone house and create a home full of charm and authenticity. The project is just an example of how this ruin can be transformed into something truly special!
Contact us for more information!
#ref: 139498
Beira Litoral, Seixo da Beira, Portugal
NEAREST AIRPORTS
Distances are straight line measurements- Porto(International)69.6 miles
Advice on buying Portuguese property
Learn everything you need to know to successfully find and buy a property in Portugal.
Notes
This is a property advertisement provided and maintained by IAD, Porto (reference 139498) and does not constitute property particulars. Whilst we require advertisers to act with best practice and provide accurate information, we can only publish advertisements in good faith and have not verified any claims or statements or inspected any of the properties, locations or opportunities promoted. Rightmove does not own or control and is not responsible for the properties, opportunities, website content, products or services provided or promoted by third parties and makes no warranties or representations as to the accuracy, completeness, legality, performance or suitability of any of the foregoing. We therefore accept no liability arising from any reliance made by any reader or person to whom this information is made available to. You must perform your own research and seek independent professional advice before making any decision to purchase or invest in overseas property.





