
6 bedroom terraced house for sale
Southport Road, Ormskirk, Lancashire, L39

- PROPERTY TYPE
Terraced
- BEDROOMS
6
- BATHROOMS
6
- SIZE
1,894 sq ft
176 sq m
- TENUREDescribes how you own a property. There are different types of tenure - freehold, leasehold, and commonhold.Read more about tenure in our glossary page.
Freehold
Key features
- Six double bedrooms, all with en-suite bathrooms
- Modern Fitted Kitchen
- Utility room
- Spacious layout across approximately 1,894 sq ft and three floors
- Sought after Location
- NO CHAIN
- Previously a successful student HMO - ideal for landlords or large families
- Fantastic investment opportunity in central Ormskirk
- Viewings Available Upon Request
Description
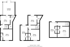
The ground floor features a generous front-facing en-suite bedroom, a modern and well-equipped kitchen with ample worktop space and storage, a convenient separate WC, and a utility room. To the rear, a spacious living room opens out to the garden, providing a welcoming communal area for tenants or a cosy family lounge if reconfigured for residential use.
On the first floor, you'll find three further double bedrooms, each with its own private en-suite. All rooms are thoughtfully designed to offer privacy and comfort, ideal for multi-occupant living. The top floor completes the accommodation with two more double bedrooms - one particularly spacious - both served by their own en-suites, maintaining the property's theme of self-contained living throughout.
The layout, generous room sizes, and high number of bathrooms make this property particularly attractive for investors seeking strong rental yields. Whether used as a student or professional let or adapted into a large family residence, the potential here is substantial.
Located on a main route into Ormskirk, the property benefits from easy access to the town's wide range of shops, restaurants, supermarkets, and bars, as well as excellent transport links including the nearby train station, offering direct routes to Liverpool and beyond. With local schools, doctors' surgeries, and strong ongoing demand for rental accommodation in this sought-after university town, this is a rare and high-yield investment opportunity.
Viewings available on request
Council Tax B
FREEHOLD
NO CHAIN
- COUNCIL TAXA payment made to your local authority in order to pay for local services like schools, libraries, and refuse collection. The amount you pay depends on the value of the property.Read more about council Tax in our glossary page.
- Ask agent
- PARKINGDetails of how and where vehicles can be parked, and any associated costs.Read more about parking in our glossary page.
- Off street,Rear
- GARDENA property has access to an outdoor space, which could be private or shared.
- Private garden,Patio,Rear garden,Back garden
- ACCESSIBILITYHow a property has been adapted to meet the needs of vulnerable or disabled individuals.Read more about accessibility in our glossary page.
- Ask agent
Energy performance certificate - ask agent
Southport Road, Ormskirk, Lancashire, L39
Add an important place to see how long it'd take to get there from our property listings.
__mins driving to your place
Get an instant, personalised result:
- Show sellers you’re serious
- Secure viewings faster with agents
- No impact on your credit score
Your mortgage
Notes
Staying secure when looking for property
Ensure you're up to date with our latest advice on how to avoid fraud or scams when looking for property online.
Visit our security centre to find out moreDisclaimer - Property reference 18SOUTHPORTROAD. The information displayed about this property comprises a property advertisement. Rightmove.co.uk makes no warranty as to the accuracy or completeness of the advertisement or any linked or associated information, and Rightmove has no control over the content. This property advertisement does not constitute property particulars. The information is provided and maintained by Churcher Estates, Ormskirk. Please contact the selling agent or developer directly to obtain any information which may be available under the terms of The Energy Performance of Buildings (Certificates and Inspections) (England and Wales) Regulations 2007 or the Home Report if in relation to a residential property in Scotland.
*This is the average speed from the provider with the fastest broadband package available at this postcode. The average speed displayed is based on the download speeds of at least 50% of customers at peak time (8pm to 10pm). Fibre/cable services at the postcode are subject to availability and may differ between properties within a postcode. Speeds can be affected by a range of technical and environmental factors. The speed at the property may be lower than that listed above. You can check the estimated speed and confirm availability to a property prior to purchasing on the broadband provider's website. Providers may increase charges. The information is provided and maintained by Decision Technologies Limited. **This is indicative only and based on a 2-person household with multiple devices and simultaneous usage. Broadband performance is affected by multiple factors including number of occupants and devices, simultaneous usage, router range etc. For more information speak to your broadband provider.
Map data ©OpenStreetMap contributors.






