Church Street, Hemswell, Gainsborough, DN21 5UQ
- PROPERTY TYPE
Land
- SIZE
Ask agent
Key features
- Planning permission number 146370 via West Lindsey Council
- Select gated development set back from Church Street.
- Potential for an additional 5th plot ( subject to planning)
- Only circa 15 miles from the City of Lincoln
- Planning consent for 4 substantial executive detached houses
- Beautiful rural location and position.
- Fantastic select development site
- Estimated GDV in excess of 3 million pounds
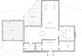
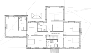
- 1440 sq mtrs/15,500 sq ft of potential living space.
Description
Reference RF0897 - A very well priced and fantastic opportunity to purchase this impressive and select rural development site, sold with planning in place to erect 4 substantial executive detached homes in the beautiful Lincolnshire village of Hemswell. The properties offer architect designed family homes which couple with substantial living space in what will be a highly desirable and exclusive gated development, making this a great prospect for developers and investment companies. Planning passed with West Lindsey District Council under planning reference 146370. The site currently houses former poultry buildings. Enquiries via the selling agent. Site visits arranged via appointment.
Church Street, Hemswell, Gainsborough, DN21 5UQ
NEAREST STATIONS
Distances are straight line measurements from the centre of the postcode- Kirton Lindsey Station5.4 miles
Notes
Disclaimer - Property reference S1255602. The information displayed about this property comprises a property advertisement. Rightmove.co.uk makes no warranty as to the accuracy or completeness of the advertisement or any linked or associated information, and Rightmove has no control over the content. This property advertisement does not constitute property particulars. The information is provided and maintained by eXp UK, East Midlands. Please contact the selling agent or developer directly to obtain any information which may be available under the terms of The Energy Performance of Buildings (Certificates and Inspections) (England and Wales) Regulations 2007 or the Home Report if in relation to a residential property in Scotland.
Map data ©OpenStreetMap contributors.






