
Chideock, Bridport

- PROPERTY TYPE
Semi-Detached
- BEDROOMS
2
- BATHROOMS
1
- SIZE
Ask agent
- TENUREDescribes how you own a property. There are different types of tenure - freehold, leasehold, and commonhold.Read more about tenure in our glossary page.
Freehold
Key features
- Short walk to local beach
- Two parking spaces
- Additional loft room
- No onward chain
Description
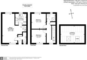
The Dwelling - A well-presented thatched cottage boasting a central village location with a pretty enclosed garden and off-street parking for two cars.
Accommodation - The accommodation is well presented throughout and offers the best of both worlds, being a modern property but with character features. Upon entering the property there is a useful lobby area with a tiled floor, radiator and space for coats and shoes. To the right hand side is a downstairs cloakroom and to the left is a door leading through to the sitting room.
The sitting room has a dual aspect allowing for plenty of natural light. A stone fireplace with a tiled hearth and a log effect gas stove creates a focal point for the room. The room is currently arranged with a sitting area to one end and a dining area to the other. From the sitting room stairs rise to the first floor.
The kitchen has a variety of cream floor and wall mounted units. Integrated appliances include a gas hob, electric oven, microwave and fridge/freezer. There is space and plumbing for a washing machine.
Upstairs there are two comfortable double bedrooms and a bathroom with a white suite comprising a shower, W/C, hand wash basin and heated towel rail. Off the landing is a good-sized airing cupboard and loft hatch with ladder. The loft is fully boarded with a Velux window, power and light and used as an occasional bedroom.
Outside - The garden is found immediately in front of the property and is currently arranged with ease of maintenance in mind. It is laid to paving with raised bed borders with plenty of attractive flowers and plants. Trellis provides privacy and an archway frames the garden gate. There is ample space for a table and chairs. Just beyond the garden are two off road parking spaces.
Situation - A short walk to the sea and forming part of the popular coastal village of Chideock. Chideock is a popular West Dorset village, being just under a mile from Seatown and the renowned Jurassic coastline and Lyme Bay. Bridport is three miles away and is a bustling and vibrant market town with a history of rope-making. It has a variety of shops, public houses and restaurants catering for a range of tastes and is conveniently placed for Dorchester and Weymouth to the east and Axminster to the west. Walking, golfing, water sports and riding opportunities are plentiful in the area. The region is well known for both its public and privately funded schooling. Communication links are good with road links along the A35 and mainline stations at Dorchester, Axminster and Crewkerne.
Directions - What3words///eager.stung.steep
Services - Mains water, electric and drainage. Gas heating.
Broadband - Super fast speed is available
Mobile - Indoor coverage is good and outdoors is very good.
Council Tax Band: C (Dorset Council )
EPC: C
Brochures
Brochure- COUNCIL TAXA payment made to your local authority in order to pay for local services like schools, libraries, and refuse collection. The amount you pay depends on the value of the property.Read more about council Tax in our glossary page.
- Band: C
- PARKINGDetails of how and where vehicles can be parked, and any associated costs.Read more about parking in our glossary page.
- Yes
- GARDENA property has access to an outdoor space, which could be private or shared.
- Yes
- ACCESSIBILITYHow a property has been adapted to meet the needs of vulnerable or disabled individuals.Read more about accessibility in our glossary page.
- Ask agent
Chideock, Bridport
Add an important place to see how long it'd take to get there from our property listings.
__mins driving to your place
Get an instant, personalised result:
- Show sellers you’re serious
- Secure viewings faster with agents
- No impact on your credit score
Your mortgage
Notes
Staying secure when looking for property
Ensure you're up to date with our latest advice on how to avoid fraud or scams when looking for property online.
Visit our security centre to find out moreDisclaimer - Property reference 33769648. The information displayed about this property comprises a property advertisement. Rightmove.co.uk makes no warranty as to the accuracy or completeness of the advertisement or any linked or associated information, and Rightmove has no control over the content. This property advertisement does not constitute property particulars. The information is provided and maintained by Symonds & Sampson, Bridport. Please contact the selling agent or developer directly to obtain any information which may be available under the terms of The Energy Performance of Buildings (Certificates and Inspections) (England and Wales) Regulations 2007 or the Home Report if in relation to a residential property in Scotland.
*This is the average speed from the provider with the fastest broadband package available at this postcode. The average speed displayed is based on the download speeds of at least 50% of customers at peak time (8pm to 10pm). Fibre/cable services at the postcode are subject to availability and may differ between properties within a postcode. Speeds can be affected by a range of technical and environmental factors. The speed at the property may be lower than that listed above. You can check the estimated speed and confirm availability to a property prior to purchasing on the broadband provider's website. Providers may increase charges. The information is provided and maintained by Decision Technologies Limited. **This is indicative only and based on a 2-person household with multiple devices and simultaneous usage. Broadband performance is affected by multiple factors including number of occupants and devices, simultaneous usage, router range etc. For more information speak to your broadband provider.
Map data ©OpenStreetMap contributors.









