
WORDSLEY, Maidstone Drive

- PROPERTY TYPE
Semi-Detached
- BEDROOMS
3
- BATHROOMS
1
- SIZE
Ask agent
- TENUREDescribes how you own a property. There are different types of tenure - freehold, leasehold, and commonhold.Read more about tenure in our glossary page.
Freehold
Key features
- NO UPWARD CHAIN
- SEMI DETACHED FAMILY HOME
- THREE LARGE BEDROOMS
- LOUNGE/ DINER
- MODERN FITTED KITCHEN WITH BUILT IN APPLIANCES
- BLOCK PAVED DRIVEWAY
- GARAGE
- SUNNY REAR GARDEN
- VERY POPULAR LOCATION
- CONVENIENT FOR SHOPS AND SCHOOLS
Description
A LARGE SEMI DETACHED FAMILY HOME with DRIVEWAY, GARAGE and a VERY PLEASANT REAR GARDEN, well placed in a desirable location, convenient for schools and amenities. Available with NO UPWARD CHAIN.
The GENEROUS and WELL PROPORTIONED accommodation requires updating and provides much potential. The property includes UPVC DOUBLE GLAZING, WARM AIR HEATING and comprises: Entrance Porch, Reception Hall, Large full depth Lounge with Dining Area, fitted Kitchen with built in appliances, THREE DOUBLE BEDROOMS and Bathroom.
The property is set beyond the front garden with BLOCK PAVED DRIVEWAY, GARAGE and to the rear the garden includes patio, lawns and enjoys a sunny rear aspect.
Local shops are within walking distance and there are both primary and secondary schools nearby. There are good road networks to Kingswinford, Stourbridge and other surrounding towns. Wordsley includes the historic glass cone and very pleasant canal side walks.
Tenure: Freehold. Construction: brick with a pitched tiled roof. Services: All mains services are connected. Broadband/Mobile coverage: Visit: checker.ofcom.org.uk/en-gb/broadband-coverage. Council Tax Band C. EPC E. KINGSWINFORD OFFICE.
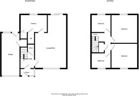
Entrance Porch -
Reception Hall -
Full Depth Lounge/ Diner - 7.01m x 3.94m (23'0" x 12'11")
Kitchen - 3.23m x 2.29m (10'7" x 7'6")
First Floor Landing
Bedroom 1 - 3.68m x 3.25m (12'1" x 10'8")
Bedroom 2 - 3.28m x 3.07m (10'9" x 10'1")
Bedroom 3 - 2.82m x 2.39m (9'3" x 7'10")
Bathroom - 2.41m x 1.65m (7'11" x 5'5")
Garage - 5.23m x 2.49m (17'2" x 8'2")
Brochures
Brochure 1- COUNCIL TAXA payment made to your local authority in order to pay for local services like schools, libraries, and refuse collection. The amount you pay depends on the value of the property.Read more about council Tax in our glossary page.
- Ask agent
- PARKINGDetails of how and where vehicles can be parked, and any associated costs.Read more about parking in our glossary page.
- Garage,Driveway
- GARDENA property has access to an outdoor space, which could be private or shared.
- Private garden
- ACCESSIBILITYHow a property has been adapted to meet the needs of vulnerable or disabled individuals.Read more about accessibility in our glossary page.
- Ask agent
WORDSLEY, Maidstone Drive
Add an important place to see how long it'd take to get there from our property listings.
__mins driving to your place
Get an instant, personalised result:
- Show sellers you’re serious
- Secure viewings faster with agents
- No impact on your credit score


Your mortgage
Notes
Staying secure when looking for property
Ensure you're up to date with our latest advice on how to avoid fraud or scams when looking for property online.
Visit our security centre to find out moreDisclaimer - Property reference S1259222. The information displayed about this property comprises a property advertisement. Rightmove.co.uk makes no warranty as to the accuracy or completeness of the advertisement or any linked or associated information, and Rightmove has no control over the content. This property advertisement does not constitute property particulars. The information is provided and maintained by Taylors Estate Agents, Kingswinford. Please contact the selling agent or developer directly to obtain any information which may be available under the terms of The Energy Performance of Buildings (Certificates and Inspections) (England and Wales) Regulations 2007 or the Home Report if in relation to a residential property in Scotland.
*This is the average speed from the provider with the fastest broadband package available at this postcode. The average speed displayed is based on the download speeds of at least 50% of customers at peak time (8pm to 10pm). Fibre/cable services at the postcode are subject to availability and may differ between properties within a postcode. Speeds can be affected by a range of technical and environmental factors. The speed at the property may be lower than that listed above. You can check the estimated speed and confirm availability to a property prior to purchasing on the broadband provider's website. Providers may increase charges. The information is provided and maintained by Decision Technologies Limited. **This is indicative only and based on a 2-person household with multiple devices and simultaneous usage. Broadband performance is affected by multiple factors including number of occupants and devices, simultaneous usage, router range etc. For more information speak to your broadband provider.
Map data ©OpenStreetMap contributors.





