
Duke Street, Colne, BB8

- PROPERTY TYPE
Terraced
- BEDROOMS
2
- BATHROOMS
2
- SIZE
Ask agent
Key features
- Stunning 2-Bedroom Home
- Total Floor Area 110 Square Metres
- New Allocated Parking Space
- Prime Colne Location
- Significant Modernisation Undertaken
- 2 Double Bedrooms
- 3Rd Attic Room
- Sensational Views
- Open Living, Kitchen And Dining Space
- Colne Amenities And Transport Links Close At Hand
Description
Meticulously Renovated 2-Bed Terrace with Loft Occasional Bedroom (En-suite) | Central Colne | Stunning Views.
Discover this meticulously renovated three-floor mid-terrace home, ideally situated in the heart of Colne town centre.
The property benefits from Lancashire County Council Residents' parking permit zone making it easier for residents to park.
Enjoying sensational views towards the Boulsworth Hills, the property offers spacious living across three floors.
It thoughtfully blends modern comforts with attractive character features.
A standout highlight is the fantastic open-plan living space, perfectly suited for contemporary lifestyles.
Accommodation includes a generous king-size master bedroom and a second single bedroom. A versatile loft room provides valuable additional space and benefits from its own en-suite.
Externally, the home features a smartly presented front garden. To the rear, there is a private, low-maintenance flagged courtyard.
The location is superb for accessing Colne's wide range of amenities; Shops, supermarkets, the Muni Theatre, restaurants, and coffee shops are all within easy walking distance.
Excellent transport links, including main bus routes and the train station, are conveniently close. Several well-regarded local schools are also nearby.
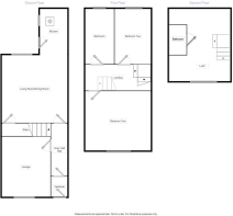
Ground Floor
· Entrance Vestibule: A practical space to remove coats and shoes before entering the main home.
· Entrance Hallway: A welcoming hallway leading to the ground floor accommodation.
· Dining Room / Reception Room: Located to the left, this versatile room currently serves as a dining area, ideal for family meals or entertaining guests.
· Open-Plan Kitchen / Living Room: The true heart of this home, this expansive area combines kitchen, dining, and living functions. The modern, fully integrated Magnet kitchen (installed Jan 2021) features high-quality appliances including an induction hob, extractor fan, built-in microwave, double oven and an XXL dishwasher, alongside excellent storage and a VELUX window. This delightful space overlooks the private rear courtyard and includes a useful under-stairs larder.
First Floor
· Master Bedroom: A particularly large bedroom offering ample space for a king-size bed and furniture, benefiting from built-in wall cabinets above the bed providing excellent storage. There is a large walk-in storage area under the stairs with built-in shelves, accessed via a secondary door within the master bedroom.
· Bedroom Two (Guest Bedroom / Office): Another generously sized bedroom, currently functioning flexibly as both a guest single bedroom and home office.
· Family Bathroom: A modern and easy-to-maintain bathroom featuring plastic panelled walls and a traditional 3-piece suite, including an XL traditional cast iron bath with an electric shower over. Ample storage space is available, along with a heated towel rail.
Second floor
· Versatile Loft Occasional Bedroom with En-suite
· Ascend to discover this superb and versatile top-floor room, offering generous dimensions – perfect as a guest suite, home office, or relaxation area.
· Private en-suite shower room (including WC and wash basin).
· Convenient kitchenette facilities featuring an under-counter fridge, kettle point and ample worktop space. Excellent built-in storage provided by eaves access and several fitted cabinets.
· Comfortable heating via a central heating radiator.
· Large windows capture those wonderful countryside views.
Outside
· Front: The property enjoys an attractive approach, set back from the street with meticulously repointed brickwork and a welcoming canopy over the composite front door. The flagged front garden area includes a dedicated water tap and is framed by custom wrought iron railings and gate from North Valley Forge.
· Rear Courtyard: A private and tranquil haven, the rear courtyard is flagged with traditional vintage Yorkstone, offering a beautiful, low-maintenance outdoor space perfect for relaxing. Enjoying pleasant views, it features boundary walls topped with coping stones, an outdoor toilet, outdoor electrical sockets, and a dedicated water tap. Cleverly designed steps also function as a built-in bench.
Tech Specification
Key Features & Recent Improvements: the property has benefited from significant investment and numerous high-quality improvements, including:
Structure & Exterior:
· A complete re-roof (felt and batten), including a new rubberised dormer roof (June 2020).
· The kitchen roof and main roof have been fully insulated.
· The front elevation was repointed (June 2020).
· All windows are double glazed throughout.
· Secure FENSA certified composite front door (July 2015) and UPVC back door (June 2016).
Electrics & Plumbing:
· A full rewire completed with a Megger Electrical Installation Certificate issued (Jan 2022).
· Gas central heating system featuring a recently serviced boiler equipped with a magnetic cleaning filter (Last serviced: 28/01/2025) and Plumbright inhibitor protection.
Interior Finishes & Comfort:
- A modern Magnet kitchen (Installed Jan 2021).
- High-quality matching internal doors fitted throughout the property.
- Bannisters installed on all staircases.
Safety & Security:
· Benefits from a fully installed property alarm system.
· A comprehensive, interconnected Aico system includes mains-wired smoke, heat, and carbon monoxide alarms throughout.
· A valid Gas Safety Certificate is in place (Expires: 21/07/2026).
· Includes a wireless doorbell system with chimes on each floor.
· Automatic external welcome light.
Connectivity:
· Excellent connectivity ensured by hard-wired ethernet network cabling running throughout the property (connecting modem location to all floors).
· Signal strength is enhanced by separate Wi-Fi repeaters (located in guest bedroom & loft).
Energy Efficiency:
· A new Energy Performance Certificate (EPC) assessment was completed on 09/04/2025.
· The property achieved a score of 61 (Band D), reflecting recent insulation improvements undertaken.
General Information
Optional Extras: Certain items may be available subject to separate negotiation. Please express interest directly to the vendor. Items potentially available include:
Appliances:
· American Fridge/Freezer
· Combined washer/dryer
Furniture:
· Low-level double bed divan with mattress and headboard (Loft)
· Custom-fit vertical blinds and curtain throughout.
Prospective buyers are advised to conduct their own thorough inspections and due diligence regarding all aspects of the property. All information provided is for general guidance and illustrative purposes only. Buyers should verify any information that is material to their decision to purchase. It is recommended that buyers seek independent professional advice, including surveys and legal counsel, to ensure they are fully satisfied with the property's condition and compliance.
Property ownership information
Ground rent review period: No review period
Service charge review period: No review period
Lease end date: 01/12/2888
Property Description Disclaimer
This is a general description of the property only, and is not intended to constitute part of an offer or contract. It has been verified by the seller(s), unless marked as 'draft'. Purplebricks conducts some valuations online and some of our customers prepare their own property descriptions, so if you decide to proceed with a viewing or an offer, please note this information may have been provided solely by the vendor, and we may not have been able to visit the property to confirm it. If you require clarification on any point then please contact us, especially if you’re traveling some distance to view. All information should be checked by your solicitor prior to exchange of contracts.
Successful buyers will be required to complete anti-money laundering and proof of funds checks. Our partner, Lifetime Legal Limited, will carry out the initial checks on our behalf. The current non-refundable cost is £80 inc. VAT per offer. You’ll need to pay this to Lifetime Legal and complete all checks before we can issue a memorandum of sale. The cost includes obtaining relevant data and any manual checks and monitoring which might be required, and includes a range of benefits. Purplebricks will receive some of the fee taken by Lifetime Legal to compensate for its role in providing these checks.
Brochures
Brochure- COUNCIL TAXA payment made to your local authority in order to pay for local services like schools, libraries, and refuse collection. The amount you pay depends on the value of the property.Read more about council Tax in our glossary page.
- Band: A
- PARKINGDetails of how and where vehicles can be parked, and any associated costs.Read more about parking in our glossary page.
- Yes
- GARDENA property has access to an outdoor space, which could be private or shared.
- Private garden
- ACCESSIBILITYHow a property has been adapted to meet the needs of vulnerable or disabled individuals.Read more about accessibility in our glossary page.
- Ask agent
Duke Street, Colne, BB8
Add an important place to see how long it'd take to get there from our property listings.
__mins driving to your place
Get an instant, personalised result:
- Show sellers you’re serious
- Secure viewings faster with agents
- No impact on your credit score
Your mortgage
Notes
Staying secure when looking for property
Ensure you're up to date with our latest advice on how to avoid fraud or scams when looking for property online.
Visit our security centre to find out moreDisclaimer - Property reference 1848321-1. The information displayed about this property comprises a property advertisement. Rightmove.co.uk makes no warranty as to the accuracy or completeness of the advertisement or any linked or associated information, and Rightmove has no control over the content. This property advertisement does not constitute property particulars. The information is provided and maintained by Purplebricks, covering Blackburn. Please contact the selling agent or developer directly to obtain any information which may be available under the terms of The Energy Performance of Buildings (Certificates and Inspections) (England and Wales) Regulations 2007 or the Home Report if in relation to a residential property in Scotland.
*This is the average speed from the provider with the fastest broadband package available at this postcode. The average speed displayed is based on the download speeds of at least 50% of customers at peak time (8pm to 10pm). Fibre/cable services at the postcode are subject to availability and may differ between properties within a postcode. Speeds can be affected by a range of technical and environmental factors. The speed at the property may be lower than that listed above. You can check the estimated speed and confirm availability to a property prior to purchasing on the broadband provider's website. Providers may increase charges. The information is provided and maintained by Decision Technologies Limited. **This is indicative only and based on a 2-person household with multiple devices and simultaneous usage. Broadband performance is affected by multiple factors including number of occupants and devices, simultaneous usage, router range etc. For more information speak to your broadband provider.
Map data ©OpenStreetMap contributors.



