
Church Lane, Wormley, Broxbourne, EN10

- PROPERTY TYPE
Detached
- BEDROOMS
4
- BATHROOMS
2
- SIZE
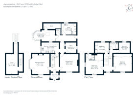
2,735 sq ft
254 sq m
- TENUREDescribes how you own a property. There are different types of tenure - freehold, leasehold, and commonhold.Read more about tenure in our glossary page.
Freehold
Key features
- Period Property
- Detached
- Four Bedrooms
- Two Reception Rooms
- Two Bathrooms
- Office
- Cloakroom
- Cellar
- Conservatory
- Utility Room
Description
Upon entry, Bury Farm House’s original front door, the charming entrance area leads to the spacious hallway. On your left, is the generous lounge, with a stunning feature fireplace and solid wood flooring. To the right of the hallway is a large dining room with the charming kitchen/dining room at the end of the hallway and through to the rear of the property there is an office ideal for working from home, conservatory, utility room and storage room. There is also the added benefit of a generous cellar on lower ground floor.
The first floor offers four good sized bedrooms, with the principle bedroom enjoying an en-suite shower room.
Outside
Externally, there is a driveway to the side of the property with exquisitely landscaped gardens to the rear and a patio, perfect for alfresco dining, surrounded by mature shrubs and trees.
Situation
Bury Farm House is perfectly placed for a wide range of amenities including both Broxbourne School and Broxbourne Station with Brookfield Farm Shopping Centre and access to the A10 and M25 just a short drive away; all whilst enjoying a quiet, semi-rural setting.
Property Ref Number:
HAM-38254Additional Information
Broxbourne Borough Council
Council Tax Band H
Brochures
Brochure- COUNCIL TAXA payment made to your local authority in order to pay for local services like schools, libraries, and refuse collection. The amount you pay depends on the value of the property.Read more about council Tax in our glossary page.
- Band: H
- PARKINGDetails of how and where vehicles can be parked, and any associated costs.Read more about parking in our glossary page.
- Off street
- GARDENA property has access to an outdoor space, which could be private or shared.
- Private garden
- ACCESSIBILITYHow a property has been adapted to meet the needs of vulnerable or disabled individuals.Read more about accessibility in our glossary page.
- Ask agent
Church Lane, Wormley, Broxbourne, EN10
Add an important place to see how long it'd take to get there from our property listings.
__mins driving to your place
Get an instant, personalised result:
- Show sellers you’re serious
- Secure viewings faster with agents
- No impact on your credit score
Your mortgage
Notes
Staying secure when looking for property
Ensure you're up to date with our latest advice on how to avoid fraud or scams when looking for property online.
Visit our security centre to find out moreDisclaimer - Property reference a1n8d000000i6C7AAI. The information displayed about this property comprises a property advertisement. Rightmove.co.uk makes no warranty as to the accuracy or completeness of the advertisement or any linked or associated information, and Rightmove has no control over the content. This property advertisement does not constitute property particulars. The information is provided and maintained by Hamptons, Hertford. Please contact the selling agent or developer directly to obtain any information which may be available under the terms of The Energy Performance of Buildings (Certificates and Inspections) (England and Wales) Regulations 2007 or the Home Report if in relation to a residential property in Scotland.
*This is the average speed from the provider with the fastest broadband package available at this postcode. The average speed displayed is based on the download speeds of at least 50% of customers at peak time (8pm to 10pm). Fibre/cable services at the postcode are subject to availability and may differ between properties within a postcode. Speeds can be affected by a range of technical and environmental factors. The speed at the property may be lower than that listed above. You can check the estimated speed and confirm availability to a property prior to purchasing on the broadband provider's website. Providers may increase charges. The information is provided and maintained by Decision Technologies Limited. **This is indicative only and based on a 2-person household with multiple devices and simultaneous usage. Broadband performance is affected by multiple factors including number of occupants and devices, simultaneous usage, router range etc. For more information speak to your broadband provider.
Map data ©OpenStreetMap contributors.







