2 bedroom detached house for sale
The Chapel, Hyssington

- PROPERTY TYPE
Detached
- BEDROOMS
2
- BATHROOMS
2
- SIZE
Ask agent
- TENUREDescribes how you own a property. There are different types of tenure - freehold, leasehold, and commonhold.Read more about tenure in our glossary page.
Freehold
Key features
- Prime Location in Shropshire Hills AONB: Situated in the picturesque conservation area of Hyssington
- Full Residential Planning to Convert into a 2-Bedroom Home - 25/0869/FULL
- Outdoor Space Included: Benefits from off-road parking for two vehicles and a substantial garden
- Investment Opportunity: Potential for a profitable holiday let business in a sought-after rural location
- A Unique 1889 Chapel Offering Significant Architectural Appeal and the Potential for a Stunning Home
Description
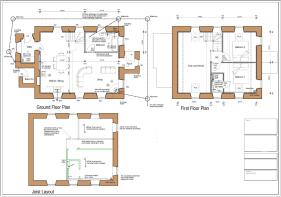
Benefiting from full residential planning 25/0869/FUL
This presents an exciting project for those looking to establish a tranquil rural retreat. Crucially, conversion work has commenced, ensuring the full planning permission for a two-bedroom dwelling is now indefinite, offering significant security and a streamlined path to completion.
The proposed downstairs layout includes a welcoming porch leading into a spacious open-plan living area that seamlessly flows into a kitchen and dining area. A practical utility room is planned off the kitchen, providing access to the rear garden, while a downstairs bathroom completes the ground floor accommodation. Upstairs, the approved plans feature two well-proportioned bedrooms, with one benefiting from an en-suite bathroom.
Externally, the property offers the convenience of off-road parking for two vehicles and a substantial garden to the side, providing ample space for outdoor relaxation and enjoyment of the surrounding countryside.
Hyssington itself is an idyllic hamlet, radiating a sense of community spirit with its village hall, playground, and church. The nearby village of Churchstoke caters to everyday needs, while the charming market towns of Bishops Castle and Montgomery, both just a short 10 to 15-minute drive away, offer a wider array of amenities, independent shops, and local attractions.
The conversion project is perfectly positioned to maximise the benefits of rural living within the Shropshire Hills area of Outstanding Natural Beauty ( AONB ). This remarkable landscape is a haven for outdoor enthusiasts and those seeking tranquillity. The AONB's diverse terrain offers endless opportunities for walking, hiking, and cycling, with routes catering to all abilities. Imagine exploring the dramatic ridges of the Stiperstones, the expansive heathlands of the Long Mynd, or the peaceful valleys surrounding Clun. The area is also rich in history and culture, with ancient hillforts, medieval castles such as Ludlow and Clun, and the fascinating industrial heritage of Ironbridge Gorge all within easy reach. The designated status of the Shropshire Hills as an AONB underscores its exceptional beauty and the commitment to preserving its natural charm, making it a highly desirable location in which to reside. The unique character of the chapel, once converted, will provide a memorable and appealing base to explore all that this stunning region has to offer.
Tenure: Freehold
Services
Mains electricity. No current water supply.
Important Notice
Our particulars have been prepared with care and are checked where possible by the vendor. They are however, intended as a guide. Measurements, areas and distances are approximate. Appliances, plumbing, heating and electrical fittings are noted, but not tested. Legal matters including Rights of Way, Covenants, Easements, Wayleaves and Planning matters have not been verified and you should take advice from your legal representatives and Surveyor.
Money Laundering
As required by the 2007 Money Laundering Regulations, Grantham’s Estates is legally obligated to verify the identity of all clients, including prospective property buyers. This verification is conducted electronically and will not impact your credit history. While the information you provide may be checked against various databases, this is not a credit check. Should your offer on a property be accepted (subject to contract), you agree to Grantham’s Estates, acting as the seller's agent, completing this verification. A non-refundable fee of £50 + VAT (£60 total) per property transaction will be payable for this service. Grantham’s Estates will retain a record of the search.
Brochures
Brochure- COUNCIL TAXA payment made to your local authority in order to pay for local services like schools, libraries, and refuse collection. The amount you pay depends on the value of the property.Read more about council Tax in our glossary page.
- Ask agent
- PARKINGDetails of how and where vehicles can be parked, and any associated costs.Read more about parking in our glossary page.
- Driveway
- GARDENA property has access to an outdoor space, which could be private or shared.
- Private garden
- ACCESSIBILITYHow a property has been adapted to meet the needs of vulnerable or disabled individuals.Read more about accessibility in our glossary page.
- Ask agent
Energy performance certificate - ask agent
The Chapel, Hyssington
Add an important place to see how long it'd take to get there from our property listings.
__mins driving to your place
Get an instant, personalised result:
- Show sellers you’re serious
- Secure viewings faster with agents
- No impact on your credit score
About Grantham's Estates Limited, Shrewsbury
Grantham's Estates Unit 3, Enterprise House, Main Road, Pontesbury, SY5 0PY


Your mortgage
Notes
Staying secure when looking for property
Ensure you're up to date with our latest advice on how to avoid fraud or scams when looking for property online.
Visit our security centre to find out moreDisclaimer - Property reference RS0185. The information displayed about this property comprises a property advertisement. Rightmove.co.uk makes no warranty as to the accuracy or completeness of the advertisement or any linked or associated information, and Rightmove has no control over the content. This property advertisement does not constitute property particulars. The information is provided and maintained by Grantham's Estates Limited, Shrewsbury. Please contact the selling agent or developer directly to obtain any information which may be available under the terms of The Energy Performance of Buildings (Certificates and Inspections) (England and Wales) Regulations 2007 or the Home Report if in relation to a residential property in Scotland.
*This is the average speed from the provider with the fastest broadband package available at this postcode. The average speed displayed is based on the download speeds of at least 50% of customers at peak time (8pm to 10pm). Fibre/cable services at the postcode are subject to availability and may differ between properties within a postcode. Speeds can be affected by a range of technical and environmental factors. The speed at the property may be lower than that listed above. You can check the estimated speed and confirm availability to a property prior to purchasing on the broadband provider's website. Providers may increase charges. The information is provided and maintained by Decision Technologies Limited. **This is indicative only and based on a 2-person household with multiple devices and simultaneous usage. Broadband performance is affected by multiple factors including number of occupants and devices, simultaneous usage, router range etc. For more information speak to your broadband provider.
Map data ©OpenStreetMap contributors.




