Plot for sale
Steamers Hill, Angarrack, Hayle, Cornwall
- PROPERTY TYPE
Plot
- SIZE
Ask agent
Key features
- Building Plot
- Village Location
- Planning reference PA22/07154
Description
.
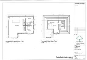
There is conditional planning permission for a detached three bedroom property that will benefit from views towards Hayle. Cornwall Council Planning reference is PA22/07154.
.
Steamers Hill is situated in the popular village of Angarrack, which is famed for its railway viaduct and Christmas lights. The neighbouring town of Hayle caters well for day to day facilities with a good range of retail outlets, schooling for all ages, glorious sandy beaches and transport links via bus and rail.
Directions
whatthreewords//acting.kickback.closed
Material Information
Local Authority - Cornwall Council. Council Tax - Band TBC. Tenure - Freehold. Services - None currently supplied to the plot. Parking- Within the boundary of the plot. Mining- Further investigation required on the mining search. Flood Risk- Very low risk of surface water flooding. very low risk of flooding from river and sea. Access - There is a restrictive covenant relating to the access of the plot and the sellers solicitors have advised an indemnity policy can be provided. Planning reference Number- PA22/07154.
Brochures
ParticularsEnergy Performance Certificates
Picture No. 13Steamers Hill, Angarrack, Hayle, Cornwall
NEAREST STATIONS
Distances are straight line measurements from the centre of the postcode- Hayle Station1.7 miles
- Lelant Station2.4 miles
- Lelant Saltings Station2.8 miles
Notes
Disclaimer - Property reference CSD230903. The information displayed about this property comprises a property advertisement. Rightmove.co.uk makes no warranty as to the accuracy or completeness of the advertisement or any linked or associated information, and Rightmove has no control over the content. This property advertisement does not constitute property particulars. The information is provided and maintained by Bradleys, Hayle. Please contact the selling agent or developer directly to obtain any information which may be available under the terms of The Energy Performance of Buildings (Certificates and Inspections) (England and Wales) Regulations 2007 or the Home Report if in relation to a residential property in Scotland.
Map data ©OpenStreetMap contributors.








