
The Arrows, Little Rissington, Gloucestershire, GL54

- PROPERTY TYPE
Detached
- BEDROOMS
4
- BATHROOMS
3
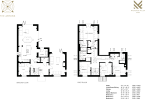
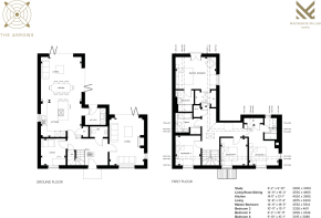
- SIZE
1,971 sq ft
183 sq m
- TENUREDescribes how you own a property. There are different types of tenure - freehold, leasehold, and commonhold.Read more about tenure in our glossary page.
Freehold
Key features
- STAMP DUTY PAID ON THIS HOME
- Open Plan Kitchen / living space with bi-folding doors to the garden
- Spacious separate sitting room
- Impressive principal bedroom suite with vaulted ceiling and Juliet balcony
- Energy efficient air-source heat pump and under floor heating
- Southerly facing rear garden
- Double car port with electric car charging facility
- Two further parking spaces
- Ideally located for nearby Bourton-on-the-Water, Stow-on-the-Wold and Burford
Description
Lily House is one of four energy-efficient properties within The Arrows by Mackenzie Miller Homes. Positioned in the centre of Little Rissington, this impressive detached home has been designed to fit seamlessly within the village, with internal layouts maximising the beautiful countryside views. Lily house features Mackenzie Miller Homes' superior specification -
? Built in traditional, locally sourced Cotswold stone
? Stunning Porcelanosa tiling to ground floor
? Bespoke shaker-style kitchen with fully integrated appliances, expansive quartz work tops and stain chrome fixtures and fittings
? Open plan kitchen / dining / living space with additional formal living room
? Bi-fold doors connect the living spaces to the wrap around paved patio
? The oversized principal bedroom offers exceptional views enjoyed through a Juliet balcony, plus built-in wardrobes and luxurious ensuite
? Bedroom two is features a beautiful ensuite and built in wardrobe
? Two additional generous double bedrooms with house bathroom complete the first floor
? Underfloor heating to ground floor with contemporary radiators to first floor
? Sanitaryware by Laufen with feature tiling by Porcelanosa to each bathroom
? Two allocated spaces in car barn to the rear, with direct garden access
? Electric car charging supply
? Attic trusses to car barn provide customisable storage
? Perfectly located for schooling options
? 10 year LABC New home warranty
? 2 year internal warranty with Mackenzie Miller Homes
*Please note the internal imagery has been virtually dressed
**Please note ? the 'stamp duty paid' incentive is based on stamp duty at the standard single property rate**
Little Rissington is a charming Cotswold village situated in the heart of the Cotswold AONB, the village lies just a short drive from Stow on the Wold, Burford and Chipping Norton, all of which offer a wide range of shopping, dining and entertainment facilities. Daylesford Organic near Kingham and Soho Farmhouse are also both within easy reach.
For the commuter, road and rail connections are well provided for with both the A429 and A40 giving access to larger centres and the national motorway network. Regular rail services run from nearby Kingham station (4 miles away) to London.
The area is well-served with schooling to suit most requirements and includes Kitebrook in Moreton-in-Marsh, Cheltenham College and Cheltenham Ladies college and a wide choice of schools in and around Oxford plus the Cotswold school in Bourton-on-the-Water and Burford school in Burford.
For the golf enthusiast there are a range of golf clubs all within easy reach, there is world renowned racing at Cheltenham where the annual festival attracts great interest and the beautiful countryside surrounding the village offers plenty of walking opportunities through an extensive network of footpaths and bridleways.
Brochures
More DetailsThe Arrows - Little- COUNCIL TAXA payment made to your local authority in order to pay for local services like schools, libraries, and refuse collection. The amount you pay depends on the value of the property.Read more about council Tax in our glossary page.
- Ask agent
- PARKINGDetails of how and where vehicles can be parked, and any associated costs.Read more about parking in our glossary page.
- Yes
- GARDENA property has access to an outdoor space, which could be private or shared.
- Yes
- ACCESSIBILITYHow a property has been adapted to meet the needs of vulnerable or disabled individuals.Read more about accessibility in our glossary page.
- Ask agent
Energy performance certificate - ask agent
The Arrows, Little Rissington, Gloucestershire, GL54
Add an important place to see how long it'd take to get there from our property listings.
__mins driving to your place
Get an instant, personalised result:
- Show sellers you’re serious
- Secure viewings faster with agents
- No impact on your credit score
Your mortgage
Notes
Staying secure when looking for property
Ensure you're up to date with our latest advice on how to avoid fraud or scams when looking for property online.
Visit our security centre to find out moreDisclaimer - Property reference SPM012371533. The information displayed about this property comprises a property advertisement. Rightmove.co.uk makes no warranty as to the accuracy or completeness of the advertisement or any linked or associated information, and Rightmove has no control over the content. This property advertisement does not constitute property particulars. The information is provided and maintained by Knight Frank - New Homes, Stratford-upon-Avon. Please contact the selling agent or developer directly to obtain any information which may be available under the terms of The Energy Performance of Buildings (Certificates and Inspections) (England and Wales) Regulations 2007 or the Home Report if in relation to a residential property in Scotland.
*This is the average speed from the provider with the fastest broadband package available at this postcode. The average speed displayed is based on the download speeds of at least 50% of customers at peak time (8pm to 10pm). Fibre/cable services at the postcode are subject to availability and may differ between properties within a postcode. Speeds can be affected by a range of technical and environmental factors. The speed at the property may be lower than that listed above. You can check the estimated speed and confirm availability to a property prior to purchasing on the broadband provider's website. Providers may increase charges. The information is provided and maintained by Decision Technologies Limited. **This is indicative only and based on a 2-person household with multiple devices and simultaneous usage. Broadband performance is affected by multiple factors including number of occupants and devices, simultaneous usage, router range etc. For more information speak to your broadband provider.
Map data ©OpenStreetMap contributors.





