Minffordd, Llanddona, Beaumaris, Sir Ynys Mon, LL58 8UL
- SIZE AVAILABLE
12,894 sq ft
1,198 sq m
- SECTOR
Land for sale
Key features
- Prime Plot in Llanddona
- Planning Permission
- Approximately 0.296 acres (1197.86sqm)
- Peaceful & Scenic Location
- Spacious & Versatile Plot
- Rare Opportunity
- House has already been demolished
- Site has been cleared and flattened
Description
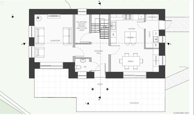
We are pleased to offer to auction this prime plot in Llanddona with planning permission for a stunning 3 bedroom detached house with separate garage.
A rare opportunity to acquire a spacious plot in the picturesque village of Llanddona, just moments from the stunning Anglesey coastline. This desirable site comes with planning permission for the construction of a brand-new, three-bedroom home, designed to maximize space, comfort, and modern living with a total floor area of 200m2.
Please note that the house has already been demolished and the site has been cleared and flattened.
Nestled in a peaceful and sought-after location, the plot offers breathtaking countryside views and easy access to Llanddona Beach but only a few minutes’ walk from the local pub. Local amenities and the historic town of Beaumaris are just a short drive away.
Don't miss this chance to build your dream home in one of Anglesey's most scenic locations. Contact us today for further details or to arrange a site visit.
Please note we have not inspected this property.
Location
Located in Minffordd, Llanddona, near Beaumaris on the Isle of Anglesey (Sir Ynys Môn), this plot offers a peaceful setting with stunning coastal and countryside views. Llanddona Beach is just a short distance away, while Beaumaris provides shops, restaurants, and local amenities. With easy access to Bangor and the A55, this is an ideal spot for a dream home.
Site Details
The subject site measures approximately 0.296 acres (1197.86sqm) with a perimeter of roughly 220.75m.
Tenure
Freehold. Title number CYM604797.
Planning
Planning ref: 11730228 - Full application for the demolition of existing house and proposed new build three bedroom house in.
We are advised that the house has already been demolished and the site has been cleared and flattened.
Please note all planning enquiries MUST go through the local council (Cyngor Sit Ynys Môn / Isle of Anglesey County Council).
Additional Information
For further information please contact our office direct on , or alternatively via e-mail on . With regards to viewing the subject property, this is to be done strictly by appointment through Keith Pattinson Commercial department. Please contact us to arrange an internal inspection, or to register your interest.
Auctioneers Additional Comments
Pattinson Auction are referred to below as The Auctioneer. This auction lot is being sold under either conditional (Modern) or unconditional (Traditional) auction terms and overseen by the auctioneer. The property is available to view strictly by appointment only via any Marketing Agent or The Auctioneer. Please be aware that any enquiry, bid or viewing of the subject property will require your details being shared between any marketing agent and The Auctioneer so that all matters can be dealt with effectively. The property is being sold via a transparent online auction. To submit a bid on any property marketed by The Auctioneer, all bidders buyers must adhere to a verification of identity process in line with Anti Money Laundering procedures. Bids can be submitted at any time and from anywhere. Our verification process is in place to ensure AML procedures are carried out in accordance with the law
Auctioneers Additional Comments
The advertised price is commonly referred to as a Starting Bid or Guide Price and is accompanied by a Reserve Price. The Reserve Price is confidential to the seller and the auctioneer and will typically be within a range above or below 10% of the Guide Price , Starting Bid. These prices are subject to change. An auction can be closed at any time with the auctioneer permitting for the property (the lot) to be sold prior to the end of the auction. A Legal Pack associated with this particular property is available to view upon request and contains details relevant to the legal documentation enabling all interested parties to make an informed decision prior to bidding. The Legal Pack will also outline the buyers obligations and sellers commitments. It is strongly advised that you seek the counsel of a solicitor prior to proceeding with any property and/or Land Title purchase.
Auctioneers Additional Comments
In order to secure the property and ensure commitment from the seller, upon exchange of contracts, the successful bidder will be expected to pay a non-refundable deposit equivalent to 5% of the purchase price. The deposit will form part of the purchase price. A non-refundable reservation fee of up to 7.2% inc VAT (Subject to a minimum fee which could be up to 7,200 inc VAT) is also payable upon agreement of sale. The Reservation Fee is in addition to the agreed purchase price, and consideration should be given by the purchaser to any Stamp Duty Land Tax liability associated with the overall purchase costs. Both the Marketing Agent and the Auctioneer may consider it necessary or beneficial to pass customer details to third-party service suppliers, from whom a referral fee may be received. There is no requirement or obligation to use any recommended suppliers or services.
Brochures
Minffordd, Llanddona, Beaumaris, Sir Ynys Mon, LL58 8UL
NEAREST STATIONS
Distances are straight line measurements from the centre of the postcode- Bangor Station5.2 miles
Notes
Disclaimer - Property reference 451854. The information displayed about this property comprises a property advertisement. Rightmove.co.uk makes no warranty as to the accuracy or completeness of the advertisement or any linked or associated information, and Rightmove has no control over the content. This property advertisement does not constitute property particulars. The information is provided and maintained by Pattinsons, Pattinsons Auction- National Auctioneer. Please contact the selling agent or developer directly to obtain any information which may be available under the terms of The Energy Performance of Buildings (Certificates and Inspections) (England and Wales) Regulations 2007 or the Home Report if in relation to a residential property in Scotland.
Auction Fees: The purchase of this property may include associated fees not listed here, as it is to be sold via auction. To find out more about the fees associated with this property please call Pattinsons, Pattinsons Auction- National Auctioneer on 0191 625 0964.
*Guide Price: An indication of a seller's minimum expectation at auction and given as a Guide Price or a range of Guide Prices. This is not necessarily the figure a property will sell for and is subject to change prior to the auction.
Reserve Price: Each auction property will be subject to a Reserve Price below which the property cannot be sold at auction. Normally the Reserve Price will be set within the range of Guide Prices or no more than 10% above a single Guide Price.
Map data ©OpenStreetMap contributors.




