Cheltenham Road, Painswick

- PROPERTY TYPE
Detached
- BEDROOMS
5
- BATHROOMS
2
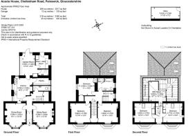
- SIZE
2,346 sq ft
218 sq m
- TENUREDescribes how you own a property. There are different types of tenure - freehold, leasehold, and commonhold.Read more about tenure in our glossary page.
Freehold
Key features
- Handsome Period House
- Central Village Location
- Two receptions
- 5 Bedrooms
- Parking
- Character Features
- High Ceilings
- Level Enclosed Garden
Description
Description - Built in 1906, Acacia House offers a spacious family home in the heart of the village. Ornate carvings over the windows and doors create an impressive facade to this handsome house which has an instantly homely and welcoming feel. The property opens to a charming hallway with Edwardian tessellated tiled floor with the two mirror image receptions with pretty bay windows leading off either side. Both receptions benefit from high ceilings and plenty of natural light. A wood burning stove adds a cosy focal point to the sitting room and the dining room offers plenty of space for entertaining with family and friends.
The kitchen is set to the rear of the house. Clearly the heart of the home, a Rayburn cooker adds homely comfort and ample kitchen units provide plentiful discreet storage. A superb pantry creates an amazing walk-in storage room for food and sundries. There is room for a kitchen table, ideal for family dining and a garden/boot room offers additional space for relaxing with a coffee. A spacious utility and a wet room are perfect for storing country paraphernalia and cleaning up after a muddy walk. A cloakroom completes the ground floor.
Five bedrooms are spread across the upper floors with three first floor bedrooms and two attic bedrooms. The two first floor front facing bedrooms benefit from pretty views across the valley. All of the bedrooms have been thoughtfully laid out to provide both comfort and ample storage. A family bathroom is also located on the first floor and a converted attic room on the second floor, which has electricity and a large skylight offering additional living space.
The walled garden is set to the rear and side of the house comprising level lawns, an area for growing vegetables and gated driveway parking for two cars. An enclosed gravel area leads directly from the garden room and is an ideal spot for alfresco entertaining.
Agents Note - The neighbouring property/garage has the benefit of permitted planning permission for the development of up to four houses. Should a purchaser have an interest in acquiring this development site, it is available by separate negotiation through Murrays Estate Agents.
Brochures
Cheltenham Road, Painswick- COUNCIL TAXA payment made to your local authority in order to pay for local services like schools, libraries, and refuse collection. The amount you pay depends on the value of the property.Read more about council Tax in our glossary page.
- Band: F
- PARKINGDetails of how and where vehicles can be parked, and any associated costs.Read more about parking in our glossary page.
- Yes
- GARDENA property has access to an outdoor space, which could be private or shared.
- Yes
- ACCESSIBILITYHow a property has been adapted to meet the needs of vulnerable or disabled individuals.Read more about accessibility in our glossary page.
- Ask agent
Cheltenham Road, Painswick
Add an important place to see how long it'd take to get there from our property listings.
__mins driving to your place
Get an instant, personalised result:
- Show sellers you’re serious
- Secure viewings faster with agents
- No impact on your credit score
Affordability
Notes
Staying secure when looking for property
Ensure you're up to date with our latest advice on how to avoid fraud or scams when looking for property online.
Visit our security centre to find out moreDisclaimer - Property reference 33791574. The information displayed about this property comprises a property advertisement. Rightmove.co.uk makes no warranty as to the accuracy or completeness of the advertisement or any linked or associated information, and Rightmove has no control over the content. This property advertisement does not constitute property particulars. The information is provided and maintained by Murrays Estate Agents, Painswick. Please contact the selling agent or developer directly to obtain any information which may be available under the terms of The Energy Performance of Buildings (Certificates and Inspections) (England and Wales) Regulations 2007 or the Home Report if in relation to a residential property in Scotland.
*This is the average speed from the provider with the fastest broadband package available at this postcode. The average speed displayed is based on the download speeds of at least 50% of customers at peak time (8pm to 10pm). Fibre/cable services at the postcode are subject to availability and may differ between properties within a postcode. Speeds can be affected by a range of technical and environmental factors. The speed at the property may be lower than that listed above. You can check the estimated speed and confirm availability to a property prior to purchasing on the broadband provider's website. Providers may increase charges. The information is provided and maintained by Decision Technologies Limited. **This is indicative only and based on a 2-person household with multiple devices and simultaneous usage. Broadband performance is affected by multiple factors including number of occupants and devices, simultaneous usage, router range etc. For more information speak to your broadband provider.
Map data ©OpenStreetMap contributors.




