
4 bedroom detached house for sale
Wakes Colne, Colchester, Essex

- PROPERTY TYPE
Detached
- BEDROOMS
4
- BATHROOMS
2
- SIZE
3,642 sq ft
338 sq m
- TENUREDescribes how you own a property. There are different types of tenure - freehold, leasehold, and commonhold.Read more about tenure in our glossary page.
Freehold
Key features
- Old Victorian Railway Tavern
- Four bedroom detached property
- Unlisted and forming a part of the Victorian Railway Complex
- Wealth of period features and high specification detailing
- Granite topped kitchen with original tavern doors
- Two storey quadruple garage block
- Detached studio
- Private gated off road parking
- Total plot size of 0.29 acres
- Located in the village of Wakes Colne
Description
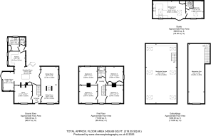
ENTRANCE HALL: (3.95m x 1.44m) With stripped timber flooring, pine staircase off, LED spotlights and stain glass panelled pine door opening to:
DINING ROOM: (3.73m x 3.55m) Set immediately adjacent to the sitting room with a UPVC framed, heritage grade sash window to front, a centrally positioned dual sided fireplace with inset wood burning stove and exposed wall panelling. Opening to:
SITTING ROOM: (3.73m x 3.55m) With UPVC framed sash window to side, stripped timber flooring and a dual sided brick fireplace with inset wood burning stove. Exposed wall panelling. Step up and original tavern doors opening to:
BREAKFAST ROOM: (5.30m x 3.66m) Arranged via a centrally positioned quartz topped island complete with an extensive range of soft close, shaker style base units, incorporating curved corner units, soft close cutlery drawers and an open fronted wine store. Tiled flooring with underfloor heating throughout, brick fireplace recess with oak bressummer beam over and extraction hood. Full height shaker style fitted unit to side, space for an American style fridge/freezer and range of LED spotlights. Double doors opening to:
KITCHEN: (3.47m x 2.91m) Fitted with a matching range of soft close, partly oak lined base units, quartz preparation surfaces over and upstands above. Glass fronted wall units are in addition to a ceramic double sink unit with mixer tap over and UPVC framed, double glazed windows to side and a range of LED spotlights. Tiled flooring with underfloor heating throughout and integrated waste/disposal unit. Further closed casement window to side.
GARDEN ROOM: (3.82m x 2.26m) Set immediately off the breakfast room and enjoying a westerly aspect with a glazed surround on one side, double doors opening to the side terrace and tiled flooring with underfloor heating throughout and LED spotlights.
REAR HALL: With tiled underfloor heating throughout, door to outside with stain glass window screen and oak door to:
UTILITY ROOM: (2.78m x 2.23m) Fitted with an extensive range of matching shaker style base and wall units, quartz preparation surfaces over and casement window to front and side. Ceramic butler sink unit with mixer tap above, space and plumbing for a washing machine. Tiled flooring with underfloor heating and hatch to the loft.
CLOAKROOM: (1.61m x 1.12m) Fitted with a traditionally styled ceramic WC, wash hand basin and frosted glass casement window to side.
STUDY: (3.63m x 3.62m) With sash window to front.
First floor
LANDING: UPVC framed sash window to front affording an unspoilt aspect towards the old station house and Victorian railway station. Hatch to loft and door to:
BEDROOM 1: (3.64m x 3.64m) With UPVC framed sash window to front affording an aspect across the Victorian railway and station buildings.
BEDROOM 2: (3.50m x 2.53m) With UPVC framed sash window to front.
BEDROOM 3: (3.65 x 3.63m) With UPVC framed window to rear affording an attractive aspect across the rear gardens.
BEDROOM 4: (3.60m x 3.30m) With UPVC framed sash window to the side and a range of full height fitted wardrobes.
FAMILY BATHROOM: (2.18m x 1.51m) Fitted with a ceramic WC, wash hand basin within a fitted base unit, fully tiled bath with a shower attachment. Wall mounted heated towel radiator and frosted glass UPVC framed sash window to side.
Outside The Old Railway Tavern is set at the foot of Station Road, immediately adjacent to Chappel and Wakes Colne railway station. A parking area with a tarmacadam driveway and space for approximately six vehicles is set behind twin hinged gate with direct access to:
QUADRUPLE GARAGE: (12.12m x 6.28m) Set behind a custom electric up and over door with a concrete hard standing, light and power connected, supporting steelwork, alarm system, workshop area to rear and staircase rising to first floor:
MEZZAINE: (12.26m x 3.25m) A mezzanine floor area with central galley, window to front, range of velux windows to side, light and power connected and currently being utilised as a home gym.
The Studio With stable door and timber door opening to:
STUDIO SPACE 1: (2.53m x 2.48m) A converted studio space with an open aspect area, complete with pine skirting, tiled flooring with underfloor heating and a kitchenette complete with a matching range of shaker style, oak lined davenport soft close base and wall units with quartz preparation services over and upstands above. Ceramic Shaws butler sink unit with casement window to side and velux window. The space is fitted with a range of integrated appliances including a Siemens oven, two ring hob with plate warmer and extraction above, a fridge, Siemens dishwasher and space and plumbing for washing machine/dryer. Further fitted waste/recycling integrated unit. Full height fitted wardrobe with attached hanging rail and oak door to:
STUDIO SPACE 2: (3.38m x 2.51m) With casement window to side, tiled flooring with underfloor heating and door to:
WET ROOM: (2.51m x 0.92m) Fitted with ceramic WC, wash hand basin and fully tiled with shower attachment and wall mounted heated towel radiator.
The outside space appointed to The Old Railway Tavern comprises a substantial terrace with west facing side aspect, substantial brick retaining wall with steps rising to an expansive lawn. The gardens are set across multiple tiers with established border planting, vegetable garden set to the rear of the garage building and enjoying unspoilt aspect with views across the enveloping aspect.
AGENTS NOTES: Planning permission has lapsed for a two-storey rear extension. Colchester City Council planning portal ( application no. 201509.
SERVICES: Mains water, drainage and electricity are connected. Oil fired heating. NOTE: None of these services have been tested by the agent
EPC RATING: Pending. A copy of the energy performance certificate is available on request.
LOCAL AUTHORITY: Colchester City Council, 33 Sheepen Road, Colchester, Essex, CO3 3WG ). BAND: E.
WHAT 3 WORDS: ///signs.sizzled.kiosk
COMMUNICATION SERVICES (source Ofcom): Broadband: Yes, Ultrafast - Speed: up to 1,000 mbps download, up to 1,000 mbps upload
Phone signal: Yes - Provider: Likely - EE, Three, O2.
NOTE: David Burr make no guarantees or representations as to the existence or quality of any services supplied by third parties. Speeds and services may vary and any information pertaining to such is indicative only and may be subject to change. Purchasers should satisfy themselves on any matters relating to internet or phone services by visiting
VIEWING: Strictly by prior appointment only through DAVID BURR.
Brochures
Brochure- COUNCIL TAXA payment made to your local authority in order to pay for local services like schools, libraries, and refuse collection. The amount you pay depends on the value of the property.Read more about council Tax in our glossary page.
- Band: E
- PARKINGDetails of how and where vehicles can be parked, and any associated costs.Read more about parking in our glossary page.
- Garage,Covered,Off street
- GARDENA property has access to an outdoor space, which could be private or shared.
- Yes
- ACCESSIBILITYHow a property has been adapted to meet the needs of vulnerable or disabled individuals.Read more about accessibility in our glossary page.
- Ask agent
Wakes Colne, Colchester, Essex
Add an important place to see how long it'd take to get there from our property listings.
__mins driving to your place
Get an instant, personalised result:
- Show sellers you’re serious
- Secure viewings faster with agents
- No impact on your credit score



Your mortgage
Notes
Staying secure when looking for property
Ensure you're up to date with our latest advice on how to avoid fraud or scams when looking for property online.
Visit our security centre to find out moreDisclaimer - Property reference 100424022048. The information displayed about this property comprises a property advertisement. Rightmove.co.uk makes no warranty as to the accuracy or completeness of the advertisement or any linked or associated information, and Rightmove has no control over the content. This property advertisement does not constitute property particulars. The information is provided and maintained by David Burr Estate Agents, Leavenheath. Please contact the selling agent or developer directly to obtain any information which may be available under the terms of The Energy Performance of Buildings (Certificates and Inspections) (England and Wales) Regulations 2007 or the Home Report if in relation to a residential property in Scotland.
*This is the average speed from the provider with the fastest broadband package available at this postcode. The average speed displayed is based on the download speeds of at least 50% of customers at peak time (8pm to 10pm). Fibre/cable services at the postcode are subject to availability and may differ between properties within a postcode. Speeds can be affected by a range of technical and environmental factors. The speed at the property may be lower than that listed above. You can check the estimated speed and confirm availability to a property prior to purchasing on the broadband provider's website. Providers may increase charges. The information is provided and maintained by Decision Technologies Limited. **This is indicative only and based on a 2-person household with multiple devices and simultaneous usage. Broadband performance is affected by multiple factors including number of occupants and devices, simultaneous usage, router range etc. For more information speak to your broadband provider.
Map data ©OpenStreetMap contributors.





