
4 bedroom semi-detached house for sale
Windsor Place, Congleton

- PROPERTY TYPE
Semi-Detached
- BEDROOMS
4
- BATHROOMS
2
- SIZE
Ask agent
- TENUREDescribes how you own a property. There are different types of tenure - freehold, leasehold, and commonhold.Read more about tenure in our glossary page.
Freehold
Key features
- Walking Distance To The Town Centre & Train Station
- Beautifully Presented Semi Detached Home
- Only 5 Years Old
- Exclusive Development Of 12 Homes
- Four Good Sized Bedrooms
- Private Rear Garden
- Modern Open Plan Living
- Allocated Parking & Guest Parking
Description
These high specification, uniquely designed properties are positioned within the Park Lane Conservation Area, only a short walk away from Congleton train station, great for anyone needing to commute, and also within walking distance of Congleton Town Centre providing all local amenities and eateries for your day to day needs, excellent schools at primary and secondary level are also within the catchment area.
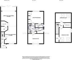
Internally you are firstly welcomed into the entrance hall with floor to ceiling window to the front, providing an abundance of light, which provides access to the first floor and into the contemporary open plan living, dining, kitchen area, the real star of the show with modern fitted kitchen with island and many built in appliances, underfloor heating and glass aspect to the rear providing ample natural light overlooking the garden. There is also a utility room and WC.
The first floor accommodates the first and third bedroom, the master with high quality, beautifully designed wardrobes and en suite, and the family bathroom, from the landing their is an additional set of stairs leading up to the second floor, presenting the second and fourth bedroom and a shower room. All bathroom, shower room and ensuite are fitted to a high standard with Villeroy & Boch suites.
Externally, to the front of the property is allocated parking for two cars and additional guest parking. There is also a laid to lawn front garden and Indian stone paving leading to the front door. To the rear is an enclosed garden mainly laid to lawn with Indian stone patio and range of mature shrubs and bushes.
An early viewing is highly advised to appreciate what this fantastic property has to offer!
Entrance Hall - 3.58m x 1.07m (11'8" x 3'6") -
Open Plan Living Dining Kitchen - 12.17m x 3.25m widening to 4.57m (39'11" x 10'7" w -
Landing -
Master Bedroom - 3.88m x 3.65m to wardrobe (12'8" x 11'11" to wardr -
En Suite - 2.13m x 1.22m (6'11" x 4'0") -
Bedroom Three - 3.91m x 2.79m (12'9" x 9'1") -
Bathroom - 2.34m x 2.18m (7'8" x 7'1") -
Bedroom Two - 4.16m x 3.43m (13'7" x 11'3") -
Bedroom Four - 4.57m x 2.84m (14'11" x 9'3") -
Shower Room - 2.36m x 1.29m (7'8" x 4'2") -
Tenure - We understand from the vendor that the property is freehold. We would however recommend that your solicitor check the tenure prior to exchange of contracts.
Need To Sell? - For a FREE valuation please call or e-mail and we will be happy to assist.
Brochures
Windsor Place, CongletonBrochure- COUNCIL TAXA payment made to your local authority in order to pay for local services like schools, libraries, and refuse collection. The amount you pay depends on the value of the property.Read more about council Tax in our glossary page.
- Band: B
- PARKINGDetails of how and where vehicles can be parked, and any associated costs.Read more about parking in our glossary page.
- Yes
- GARDENA property has access to an outdoor space, which could be private or shared.
- Yes
- ACCESSIBILITYHow a property has been adapted to meet the needs of vulnerable or disabled individuals.Read more about accessibility in our glossary page.
- Ask agent
Windsor Place, Congleton
Add an important place to see how long it'd take to get there from our property listings.
__mins driving to your place
Get an instant, personalised result:
- Show sellers you’re serious
- Secure viewings faster with agents
- No impact on your credit score
Your mortgage
Notes
Staying secure when looking for property
Ensure you're up to date with our latest advice on how to avoid fraud or scams when looking for property online.
Visit our security centre to find out moreDisclaimer - Property reference 33797499. The information displayed about this property comprises a property advertisement. Rightmove.co.uk makes no warranty as to the accuracy or completeness of the advertisement or any linked or associated information, and Rightmove has no control over the content. This property advertisement does not constitute property particulars. The information is provided and maintained by Stephenson Browne, Congleton. Please contact the selling agent or developer directly to obtain any information which may be available under the terms of The Energy Performance of Buildings (Certificates and Inspections) (England and Wales) Regulations 2007 or the Home Report if in relation to a residential property in Scotland.
*This is the average speed from the provider with the fastest broadband package available at this postcode. The average speed displayed is based on the download speeds of at least 50% of customers at peak time (8pm to 10pm). Fibre/cable services at the postcode are subject to availability and may differ between properties within a postcode. Speeds can be affected by a range of technical and environmental factors. The speed at the property may be lower than that listed above. You can check the estimated speed and confirm availability to a property prior to purchasing on the broadband provider's website. Providers may increase charges. The information is provided and maintained by Decision Technologies Limited. **This is indicative only and based on a 2-person household with multiple devices and simultaneous usage. Broadband performance is affected by multiple factors including number of occupants and devices, simultaneous usage, router range etc. For more information speak to your broadband provider.
Map data ©OpenStreetMap contributors.





