
Eggbuckland, Plymouth

- PROPERTY TYPE
Terraced
- BEDROOMS
2
- BATHROOMS
1
- SIZE
Ask agent
- TENUREDescribes how you own a property. There are different types of tenure - freehold, leasehold, and commonhold.Read more about tenure in our glossary page.
Freehold
Key features
- Mid-terrace property
- Lounge
- Kitchen/diner
- 2 bedrooms
- Study/dressing room
- Family bathroom
- uPVC double-glazing & gas central heating
- Front garden
- South facing enclosed rear garden
- Viewing recommended
Description
Greystoke Avenue, Eggbuckland, Plymouth, Pl6 5Ul -
Accommodation - Entrance via a uPVC obscured double-glazed door with obscured glazed windows either side opens up into the entrance hall.
Entrance Hall - 2.42 x 1.19 (7'11" x 3'10") - Wood effect laminate flooring. Staircase rising to the first floor landing. Doorway to the lounge. Wooden door with obscured glazed panels opens up into the kitchen/diner.
Lounge - 4.85 x 3.23 (15'10" x 10'7") - A dual aspect room with uPVC double-glazed window to the front & a uPVC double-glazed bay window to the rear overlooking the garden. Ceiling spotlights.
Kitchen/Diner - 4.79 narrowing to 1.6 x 4.22 narrowing to 3.18 (15 - Attractive matching base & wall mounted units to include integrated oven, space for an upright fridge/freezer, space for a washing machine & a dishwasher. Roll edge laminate work surfaces have inset 4 ring gas hob with a filter hood over. Wall mounted Glow-worm combination boiler concealed in unit. Tiled splash-back. Dual aspect with a uPVC double-glazed window to the front & one to rear. Tiled floor. Door to under-stairs storage cupboard. uPVC double-glazed French doors open up out to the garden.
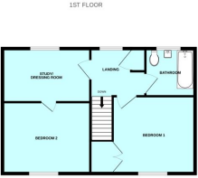
First Floor Landing - 1.92 x 1.66 (6'3" x 5'5") - Access hatch to roof void. uPVC double-glazed window to the rear overlooking the garden. Door to a shelved cupboard, bedroom, study/dressing room & bathroom.
Bedroom One - 3.22 x 3.01 (10'6" x 9'10") - uPVC double-glazed window to the front. Ceiling spotlights. Decorative cladding to feature wall. Wardrobe with hanging rail & shelving.
Study/Dressing Room - 3.24 x 2.2 (10'7" x 7'2") - uPVC double-glazed window to the rear overlooking the garden. Ceiling spotlights. Doorway opens up to the bedroom.
Bedroom Two - 2.56 x 3.26 (8'4" x 10'8") - Ceiling spotlights. uPVC double-glazed window to the front.
Outside - The property is approached via a wrought iron gate which gives access to a path leading down to the front door which is bordered on both sides by terraces of garden laid to stone chippings & mulch with inset shrubs & plants. A hardstand bin area.
Garden - To the rear a south-facing garden which has a large decked seating area with outside tap, section of mulch chippings to one side. Steps lead down to a patio seating area where currently stands a garden shed. A couple steps then lead down to the main garden laid to lawn.
Council Tax - Plymouth City Council
Council Tax Band: A
Services - The property is connected to all the mains services: gas, electricity, water and drainage.
Brochures
Eggbuckland, PlymouthBrochure- COUNCIL TAXA payment made to your local authority in order to pay for local services like schools, libraries, and refuse collection. The amount you pay depends on the value of the property.Read more about council Tax in our glossary page.
- Band: A
- PARKINGDetails of how and where vehicles can be parked, and any associated costs.Read more about parking in our glossary page.
- Ask agent
- GARDENA property has access to an outdoor space, which could be private or shared.
- Yes
- ACCESSIBILITYHow a property has been adapted to meet the needs of vulnerable or disabled individuals.Read more about accessibility in our glossary page.
- Ask agent
Eggbuckland, Plymouth
Add an important place to see how long it'd take to get there from our property listings.
__mins driving to your place
Get an instant, personalised result:
- Show sellers you’re serious
- Secure viewings faster with agents
- No impact on your credit score
Your mortgage
Notes
Staying secure when looking for property
Ensure you're up to date with our latest advice on how to avoid fraud or scams when looking for property online.
Visit our security centre to find out moreDisclaimer - Property reference 33800251. The information displayed about this property comprises a property advertisement. Rightmove.co.uk makes no warranty as to the accuracy or completeness of the advertisement or any linked or associated information, and Rightmove has no control over the content. This property advertisement does not constitute property particulars. The information is provided and maintained by Julian Marks, Plymouth. Please contact the selling agent or developer directly to obtain any information which may be available under the terms of The Energy Performance of Buildings (Certificates and Inspections) (England and Wales) Regulations 2007 or the Home Report if in relation to a residential property in Scotland.
*This is the average speed from the provider with the fastest broadband package available at this postcode. The average speed displayed is based on the download speeds of at least 50% of customers at peak time (8pm to 10pm). Fibre/cable services at the postcode are subject to availability and may differ between properties within a postcode. Speeds can be affected by a range of technical and environmental factors. The speed at the property may be lower than that listed above. You can check the estimated speed and confirm availability to a property prior to purchasing on the broadband provider's website. Providers may increase charges. The information is provided and maintained by Decision Technologies Limited. **This is indicative only and based on a 2-person household with multiple devices and simultaneous usage. Broadband performance is affected by multiple factors including number of occupants and devices, simultaneous usage, router range etc. For more information speak to your broadband provider.
Map data ©OpenStreetMap contributors.






