Minho, Ponte de Lima, Portugal
- PROPERTY TYPE
Detached
- BEDROOMS
2
- BATHROOMS
2
- SIZE
1,884 sq ft
175 sq m
Description
If you're looking for a place where the tranquillity of nature meets the potential of tourism, this is the property for you !
Located in Labruja - Ponte de Lima, in the heart of the Alto Minho and in the middle of the Portuguese Way to Santiago de Compostela, this property offers a serene environment, surrounded by stunning scenery and ideal for own housing or tourist investment.
Property features :
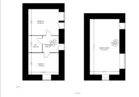
* Restored 2-bedroom detached house (70 m²) with ground floor and 1st floor:
- Open-plan with furnished and equipped kitchen
- Fireplace and electric heating
- 2 comfortable bedrooms
- Bathroom with bathtub
- Independent annex with laundry room (32 m²)
* Ruin for restoration with 80 m² of gross construction area - ideal for extending or creating a new residential or tourist space.
* Terraced land of 730 m², with panoramic views of the mountains and the surrounding countryside.
Equipment and Extras :
- Automatic gate
- Videophone
- Car park for up to 4 cars
- VMC (controlled mechanical ventilation)
- Aluminium frames with double glazing
Excellent sun exposure
Strategic location :
- Just 11 km from the centre of Ponte de Lima
- 12.6 km from the private hospital
- 13 km from the golf course
- 15 km from the public hospital
- 16 km from schools
- 59 km from Porto Airport
Why choose Labruja?
Labruja is a picturesque parish known for its natural charm and tranquillity, integrated into the Portuguese Way to Santiago, which makes it perfect for rural tourism projects, local accommodation or simply for those looking for an inspiring retreat in contact with nature.
Invest in an authentic lifestyle in a place where time slows down and beauty is constant.
Contact us to book your visit and discover the potential of this magnificent property for yourself!
#ref: 139924
Minho, Ponte de Lima, Portugal
NEAREST AIRPORTS
Distances are straight line measurements- Porto(International)37.1 miles
Advice on buying Portuguese property
Learn everything you need to know to successfully find and buy a property in Portugal.
Notes
This is a property advertisement provided and maintained by IAD, Porto (reference 139924) and does not constitute property particulars. Whilst we require advertisers to act with best practice and provide accurate information, we can only publish advertisements in good faith and have not verified any claims or statements or inspected any of the properties, locations or opportunities promoted. Rightmove does not own or control and is not responsible for the properties, opportunities, website content, products or services provided or promoted by third parties and makes no warranties or representations as to the accuracy, completeness, legality, performance or suitability of any of the foregoing. We therefore accept no liability arising from any reliance made by any reader or person to whom this information is made available to. You must perform your own research and seek independent professional advice before making any decision to purchase or invest in overseas property.




