
Fairview Chase, Stanford-le-Hope
- PROPERTY TYPE
Land
- SIZE
Ask agent
Key features
- A fantastic opportunity to acquire this plot of land with two separate planning applications granted
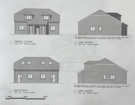
- Planning permission granted for block of three one-bedroom apartments and block of two one-bedroom apartments
- Total of five one-bedroom apartments
- Close proximity to Stanford-le-Hope train station and town centre
- Allocated parking facilities
- Includes a potential ransom strip for future developments
- The design of two individual blocks allows work to be completed on one block to raise and free up capital for the development of the other
Description
Investor alert! Fairview Chase plot with planning for five one-bed apartments, parking, and potential ransom strip. Prime location near Stanford-le-Hope station—build, profit, repeat. Your development canvas awaits!
Nestled in the desirable area of Fairview Chase, Stanford-le-Hope, this exceptional plot of land presents a remarkable opportunity for both investors and developers. With planning permission already granted for two sets of apartments, this site is primed for development, allowing you to bring your vision to life.
The approved plans include a block of three one-bedroom apartments and a separate block of two one-bedroom apartments, culminating in a total of five one-bedroom apartments. This thoughtful design caters to the growing demand for quality housing in the area, making it an attractive prospect for potential tenants or buyers and is also located within close proximity of Stanford-le-Hope train station.
In addition to the residential potential, the plot benefits from allocated parking facilities, ensuring convenience for future residents. Furthermore, the inclusion of a potential ransom strip for future development enhances the value of this investment.
The design of two individual blocks allows work to be completed on one block to raise and free up capital for the development of the other.
This land is not just a plot; it is a canvas for your aspirations in a thriving community. With its strategic location and planning permission already granted for development, this opportunity is not to be missed. Whether you are looking to expand your property portfolio or embark on a new project, this land in Fairview Chase is a promising choice.
THE SMALL PRINT:
We’ve done our homework, but we aren’t fortune tellers. We haven’t poked the boiler, flicked the switches, or tested every light bulb. Nothing here counts as a contract or statement of fact—get your solicitor to check all the serious stuff, like tenure, parking, planning permission, building regs, and all that jazz!
Measurements? Guides only. Floorplans? Handy, but not perfectly to scale. Travelling far? Call first—clarification is free, petrol is not.
We may receive a referral fee if you choose to use third-party services we recommend, such as conveyancers, mortgage advisers, or EPC providers, but you are under no obligation to do so.
AML Checks - Law says we must run one. £80 + VAT per buyer. Tiny toll, big compliance.
Buyer Reservation Fee - Offer accepted? Pay a reservation fee (min £1,000) to lock it in. VIP pass to the property, protects against gazumping. Complete the sale? Fee refunded. Things go sideways? Sometimes non-refundable. Head to our website for full details – or skip the scrolling and just call.
Brochures
Fairview Chase, Stanford-le-HopeFull Property DetailsSuper Sized ImagesFairview Chase, Stanford-le-Hope
NEAREST STATIONS
Distances are straight line measurements from the centre of the postcode- Stanford-le-Hope Station0.2 miles
- East Tilbury Station1.9 miles
- Laindon Station3.9 miles


Notes
Disclaimer - Property reference 33803462. The information displayed about this property comprises a property advertisement. Rightmove.co.uk makes no warranty as to the accuracy or completeness of the advertisement or any linked or associated information, and Rightmove has no control over the content. This property advertisement does not constitute property particulars. The information is provided and maintained by Colubrid, Thurrock & Basildon. Please contact the selling agent or developer directly to obtain any information which may be available under the terms of The Energy Performance of Buildings (Certificates and Inspections) (England and Wales) Regulations 2007 or the Home Report if in relation to a residential property in Scotland.
Map data ©OpenStreetMap contributors.





