
Hadham Road, Bishop's Stortford, Hertfordshire, CM23

- PROPERTY TYPE
Retirement Property
- BEDROOMS
1
- BATHROOMS
1
- SIZE
Ask agent
Key features
- Park Lane Property Agents are delighted to offer a One-bedroom ground floor apartment in the town center with everything on your doorstep
- For the over 55's - Ground floor apartment
- Nicely tucked away in a private courtyard setting with views over the town.
- Open plan living & dining room
- Good sized fitted kitchen
- Double bedroom & bathroom
- Parking
- Lease 62 years remaining NO ground rent Service charge only £1416 pa
- The property is superbly located in the town center and hidden within this private courtyard setting.
- So much potential & open to offers
Description
Front
The property is superbly located in the town center and hidden within this private courtyard setting. Parking to the front and security system front door leading through to the communal hallway leading to the front entrance door to the apartment.
Entrance Hall
Light and bright hallway with wall mounted entry phone. Built in cupboard and walk through to the living room & doors off top all other rooms
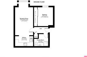
Open Plan Living / Dining Room 15' 9" x 10' 11" (4.80m x 3.07m)
The living room is a lovely airy room nice size and shape with bay fronted window to the front aspect with views towards the town. The living room has plenty of space for furniture & dining table and chairs. Walk through to the kitchen.
Kitchen 10' 1" x 5' 7" (3.1m x 2.27m)
The kitchen is a lovely size and fitted with a range of wall and base units with an array of storage options and complimentary work surface over. Inset sink with mixer taps and drainer. Inset Hob and cooker hood over & integrated oven under. Space for the fridge freezer and space for washing machine.
Master Double Bedroom 10' 8" x 8' 7" (3.25m x 2.62m)
A large spacious double bedroom with window to the front aspect with views towards the town center. The bedroom is fitted with wall-to-wall wardrobes. Plenty of space for bedroom furniture
Bathroom / WC
Well-presented bathroom consisting of: Large Walk-in shower with wall mounted shower over. Low-level wc & pedestal wash hand basin. Part tiled walls and complimentary tiled flooring.
To the front there is the parking area with path leads to the front communal door with security entrance system, Short stroll to the Town Centre and short walk to the Main Line Rail with links to London Liverpool Street and Cambridge.
Lease 62 years remaining
NO ground rent
Service charge only £1416 pa
- COUNCIL TAXA payment made to your local authority in order to pay for local services like schools, libraries, and refuse collection. The amount you pay depends on the value of the property.Read more about council Tax in our glossary page.
- Ask agent
- PARKINGDetails of how and where vehicles can be parked, and any associated costs.Read more about parking in our glossary page.
- Yes
- GARDENA property has access to an outdoor space, which could be private or shared.
- Ask agent
- ACCESSIBILITYHow a property has been adapted to meet the needs of vulnerable or disabled individuals.Read more about accessibility in our glossary page.
- Ask agent
Energy performance certificate - ask agent
Hadham Road, Bishop's Stortford, Hertfordshire, CM23
Add an important place to see how long it'd take to get there from our property listings.
__mins driving to your place
Notes
Staying secure when looking for property
Ensure you're up to date with our latest advice on how to avoid fraud or scams when looking for property online.
Visit our security centre to find out moreDisclaimer - Property reference Parklane2B3567283746. The information displayed about this property comprises a property advertisement. Rightmove.co.uk makes no warranty as to the accuracy or completeness of the advertisement or any linked or associated information, and Rightmove has no control over the content. This property advertisement does not constitute property particulars. The information is provided and maintained by Park Lane Property Agents, Bishops Stortford. Please contact the selling agent or developer directly to obtain any information which may be available under the terms of The Energy Performance of Buildings (Certificates and Inspections) (England and Wales) Regulations 2007 or the Home Report if in relation to a residential property in Scotland.
*This is the average speed from the provider with the fastest broadband package available at this postcode. The average speed displayed is based on the download speeds of at least 50% of customers at peak time (8pm to 10pm). Fibre/cable services at the postcode are subject to availability and may differ between properties within a postcode. Speeds can be affected by a range of technical and environmental factors. The speed at the property may be lower than that listed above. You can check the estimated speed and confirm availability to a property prior to purchasing on the broadband provider's website. Providers may increase charges. The information is provided and maintained by Decision Technologies Limited. **This is indicative only and based on a 2-person household with multiple devices and simultaneous usage. Broadband performance is affected by multiple factors including number of occupants and devices, simultaneous usage, router range etc. For more information speak to your broadband provider.
Map data ©OpenStreetMap contributors.





