Main Street, Wetwang

- PROPERTY TYPE
Terraced
- BEDROOMS
4
- BATHROOMS
1
- SIZE
Ask agent
- TENUREDescribes how you own a property. There are different types of tenure - freehold, leasehold, and commonhold.Read more about tenure in our glossary page.
Freehold
Key features
- Double fronted house
- Extensive accommodation
- Four bedrooms
- Three reception rooms
- Off-street parking
- Garage
- Outbuilding with huge scope
- Popular village setting
Description
An all-round home which will certainly allow room for the growing family with three substantial ground floor reception rooms, conservatory and four bedrooms on the first floor. In addition, there is a separate utility room leading from a characterful kitchen, ground floor WC and house bathroom.
Externally, the property benefits from vehicle access from Southfield Road and this leads to hard standing car parking suitable for vehicles of all types. There is also a single garage.
The gardens are extensive with a large patio immediately to the rear of the house and this gives way to a good-sized area of garden together with planted borders and mature shrubs. There is also space for chickens!
In addition to both, there is also a good-sized outhouse which offers scope to develop within the property itself or convert into a workshop/office or even small annexe.
WETWANG
Wetwang is a traditional East Yorkshire linear village spanning the A166, which links Driffield to York and beyond. Features of the village include the charming village pond and Norman church of St. Nicholas, which dates back to the 13th Century. The village school was erected by Sir Tatton Sykes Bart AD1845. "Enlarged AD1866 according to the plaque on the school wall."
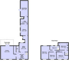
ENTRANCE INTO:
RECEPTION HALL/DINING ROOM 16' 6" x 10' 0" (5.03m x 3.05m) With feature spiral staircase leading off the first floor, this really is a dramatic entrance and is currently used as a dedicated dining room. Front facing window, coved ceiling and radiator. Large built-in storage cupboard. Laminate flooring.
LOUNGE 21' 4" x 18' 9" (6.51m x 5.74m) Again, a substantial room with twin front facing windows, coved ceiling and fireplace with electric fire in situ. Radiator.
There are double doors which give way to:
CONSERVATORY 17' 10" x 8' 7" (5.44m x 2.62m) With ceramic tiled floor and views across the garden.
SITTING ROOM 12' 10" x 12' 3" (3.93m x 3.74m) With feature fireplace having provision for an open fire. Coved ceiling and double panelled radiator.
KITCHEN 16' 5" x 10' 5" (5.01m x 3.2m) A distinctive fitted kitchen that incorporates space for a breakfast area and features a good range of kitchen units including base and wall mounted cupboards along with integrated worktops. Electric oven and hob with extractor over. Fitted Belfast sink and base cupboard beneath. Windows to the side leading into:
UTILITY 10' 1" x 9' 10" (3.08m x 3m) Comprising stainless steel sink and base cupboard beneath. Door leading out to the rear. Radiator.
Door leading into the outbuilding.
FIRST FLOOR
LANDING With small internal window into Bedroom 2. Radiator.
BEDROOM 1 18' 11" x 10' 2" (5.78m x 3.12m) Front and rear facing windows. Radiator.
BEDROOM 2 10' 0" x 9' 1" (3.07m x 2.79m) Rear facing window and built-in wardrobes. Radiator.
BEDROOM 3 10' 1" x 16' 6" (3.08m x 5.03m) With front facing windows and built in wardrobes. Radiator.
BEDROOM 4 10' 5" x 9' 10" (3.2m x 3m) With front facing window. Radiator.
BATHROOM Comprising corner bath having a shower over, wash hand basin and WC. Radiator and dual windows.
OUTSIDE The property is built flush to the pavement.
To the rear of the property is a large expanse of garden with a paved patio been situated immediately adjacent to the house with raised planted side beds. This gives way to an area of garden which is predominantly lawned with various planted areas.
There is a vehicle access off Southfield Road and this leads to a gated access onto the property There is a substantial concrete hardstanding area suitable for multiple vehicles of varying types. There is a concrete sectional garage plus gravelled area immediately adjacent.
OUTBUILDING 10' 7" x 22' 4" (3.23m x 6.82m) This adjoins the house and is currently used as storage but offers huge scope for conversion, either within the house itself, a dedicated office or working space or even annexe/holiday accommodation.
FLOOR AREA From the Energy Performance Certificate the floor area for the property is stipulated as (to be confirmed) square metres.
CENTRAL HEATING The property benefits from gas (LPG) fired central heating to radiators. The boiler also provides domestic hot water.
DOUBLE GLAZING The property benefits from partial sealed unit double glazing throughout.
TENURE We understand that the property is freehold and is offered with vacant possession upon completion.
SERVICES The property benefits from water, electricity and drainage.
COUNCIL TAX BAND Band C.
ENERGY PERFORMANCE CERTIFICATE Rating F.
NOTE Heating systems and other services have not been checked.
All measurements are provided for guidance only.
None of the statements contained in these particulars as to this property are to be relied upon as statements or representations of fact. In the event of a property being extended or altered from its original form, buyers must satisfy themselves that any planning regulation was adhered to as this information is seldom available to the agent.
Floor plans are for illustrative purposes only.
VIEWING Strictly by appointment with Ullyotts.
Regulated by RICS
Brochures
Brochure- COUNCIL TAXA payment made to your local authority in order to pay for local services like schools, libraries, and refuse collection. The amount you pay depends on the value of the property.Read more about council Tax in our glossary page.
- Ask agent
- PARKINGDetails of how and where vehicles can be parked, and any associated costs.Read more about parking in our glossary page.
- Garage,Off street
- GARDENA property has access to an outdoor space, which could be private or shared.
- Yes
- ACCESSIBILITYHow a property has been adapted to meet the needs of vulnerable or disabled individuals.Read more about accessibility in our glossary page.
- Ask agent
Main Street, Wetwang
Add an important place to see how long it'd take to get there from our property listings.
__mins driving to your place
Get an instant, personalised result:
- Show sellers you’re serious
- Secure viewings faster with agents
- No impact on your credit score
Your mortgage
Notes
Staying secure when looking for property
Ensure you're up to date with our latest advice on how to avoid fraud or scams when looking for property online.
Visit our security centre to find out moreDisclaimer - Property reference 103066013818. The information displayed about this property comprises a property advertisement. Rightmove.co.uk makes no warranty as to the accuracy or completeness of the advertisement or any linked or associated information, and Rightmove has no control over the content. This property advertisement does not constitute property particulars. The information is provided and maintained by Ullyotts, Driffield. Please contact the selling agent or developer directly to obtain any information which may be available under the terms of The Energy Performance of Buildings (Certificates and Inspections) (England and Wales) Regulations 2007 or the Home Report if in relation to a residential property in Scotland.
*This is the average speed from the provider with the fastest broadband package available at this postcode. The average speed displayed is based on the download speeds of at least 50% of customers at peak time (8pm to 10pm). Fibre/cable services at the postcode are subject to availability and may differ between properties within a postcode. Speeds can be affected by a range of technical and environmental factors. The speed at the property may be lower than that listed above. You can check the estimated speed and confirm availability to a property prior to purchasing on the broadband provider's website. Providers may increase charges. The information is provided and maintained by Decision Technologies Limited. **This is indicative only and based on a 2-person household with multiple devices and simultaneous usage. Broadband performance is affected by multiple factors including number of occupants and devices, simultaneous usage, router range etc. For more information speak to your broadband provider.
Map data ©OpenStreetMap contributors.








