Alto Alentejo, Évora, Portugal
- PROPERTY TYPE
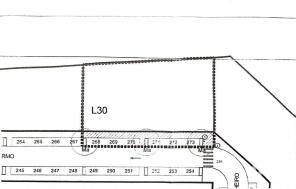
Land
- SIZE
8,493 sq ft
789 sq m
Description
We present this fantastic urban plot of land with 789 m², located in the quiet and well-located area of Évora. With excellent sun exposure and located in a quality residential environment, this land allows the construction of 4 floors and 8 houses.
Main advantages:
Great location – Close to hospitals, veterinary hospital, colleges, schools and sports courts.
Excellent access – Easy connection to main roads.
Quiet residential environment – Perfect for those seeking quality of life, without giving up proximity to the city center.
Don't miss this unique opportunity! For more information or to schedule a visit, please contact me.
#ref: 135936
Alto Alentejo, Évora, Portugal
NEAREST AIRPORTS
Distances are straight line measurements- Lisbon(International)67.9 miles
Advice on buying Portuguese property
Learn everything you need to know to successfully find and buy a property in Portugal.
Notes
This is a property advertisement provided and maintained by IAD, Porto (reference 135936) and does not constitute property particulars. Whilst we require advertisers to act with best practice and provide accurate information, we can only publish advertisements in good faith and have not verified any claims or statements or inspected any of the properties, locations or opportunities promoted. Rightmove does not own or control and is not responsible for the properties, opportunities, website content, products or services provided or promoted by third parties and makes no warranties or representations as to the accuracy, completeness, legality, performance or suitability of any of the foregoing. We therefore accept no liability arising from any reliance made by any reader or person to whom this information is made available to. You must perform your own research and seek independent professional advice before making any decision to purchase or invest in overseas property.



