Plot for sale
Radstock Way, Redhill
- PROPERTY TYPE
Plot
- BEDROOMS
3
- BATHROOMS
1
- SIZE
Ask agent
Key features
- RARE BUILDING OPPORTNITY
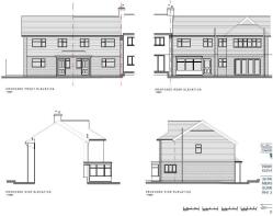
- PLANS ALREADY APPROVED TO BUILD A 4 BED END OF TERRACED HOUSE TO THE SIDE OF EXISTING
- CURRENT HOUSE IS RENTED ON AST PRODUCING AN INCOME OF £1700 PCM
- OFF ROAD PARKING CAN BE PROVIDED FOR BOTH PROPERTIES WITHIN THE EXISTING PERMISSION
- FURTHER INFORMATION AND PLANS AVAILABLE ON REQUEST.
Description
All the associated planning documents are held with Reigate & Banstead Council Planning Department. Planning reference number 22/01207/F(Alternatively please contact Valley Homes and we will be happy to supply you with the link and further information)
The current property is let out on an Assured Shorthold Tenancy agreement to tenants that are fully aware that building works will commence to the side at some point. The tenancy commenced in July 23 and the tenants are currently paying £1700pcm ( equating to £20,400 annually). Within the tenancy agreement it has been agreed that this rent will reduce by £250 per month once the building works commence. Whether this property is retained as a rental or sold once the project is complete the benefit is that it is producing an income in the meantime.
Once the building work is completed the existing property will become a mid terraced property with the permission including the provision to provide off street parking for this property as well as providing parking for the new property.
The existing house provides good sized family accommodation with a large living room opening up onto an additional conservatory, a modern well equipped kitchen, modern family bathroom and 3 good sized bedrooms. The property will lose its downstairs cloakroom but will still retain a decent sized garden.
The New Build property has plans approved to provide a large Kitchen Family room to the rear with separate Lounge to the front and a downstairs cloakroom on the ground floor. On the first floor there are 3 bedrooms with two being doubles and one benefitting from en-suite shower room, with the family bathroom also located on this floor and then on the second floor a further double bedroom and en-suite are also provided.
Any additional information and plans can be provided on request.
COUNCIL TAX for existing property is BAND C
EPC for existing property is BAND D
FREEHOLD
Photos are for guidance purposes only and internal shots are from previous occupier.
Brochures
Full DetailsRadstock Way, Redhill
NEAREST STATIONS
Distances are straight line measurements from the centre of the postcode- Merstham Station0.3 miles
- Redhill Station1.9 miles
- Nutfield Station2.6 miles
Notes
Disclaimer - Property reference 11834480. The information displayed about this property comprises a property advertisement. Rightmove.co.uk makes no warranty as to the accuracy or completeness of the advertisement or any linked or associated information, and Rightmove has no control over the content. This property advertisement does not constitute property particulars. The information is provided and maintained by Valley Homes, Coulsdon. Please contact the selling agent or developer directly to obtain any information which may be available under the terms of The Energy Performance of Buildings (Certificates and Inspections) (England and Wales) Regulations 2007 or the Home Report if in relation to a residential property in Scotland.
Map data ©OpenStreetMap contributors.






