4 bedroom detached house for sale
Willow Gardens, Sutton-in-Ashfield, NG17

- PROPERTY TYPE
Detached
- BEDROOMS
4
- BATHROOMS
2
- SIZE
Ask agent
- TENUREDescribes how you own a property. There are different types of tenure - freehold, leasehold, and commonhold.Read more about tenure in our glossary page.
Freehold
Key features
- Detached Family Home
- Excellent Links to M1
- Driveway & Garage
- Enclosed side & rear Gardens
- Lounge & Separate Dining Room
- Kitchen & Utility Room
- FOUR Bedrooms
- Two Bathrooms
- Prime Location
Description
Your Move are delighted to bring to the market this wonderful detached house, Well presented throughout and situated in a highly sought after location. With excellent public transport links, proximity to local schools, amenities, parks and walking routes, this property is ideally suited for first-time buyers and families.
The property boasts four bedrooms, two bathrooms and two inviting reception rooms. The master bedroom is a spacious double, accompanied by an en-suite bathroom complete with a double shower and part-tiled walls. The remaining bedrooms consist of two additional double rooms and a large single, all offering ample space for relaxation and rest.
The home offers a well placed kitchen, with matching wall & base units, an integrated double electric oven, a gas hob and an extractor, ensuring all your culinary needs are met & an archway leading to the utility room & access to the garden.
The two reception rooms provide the perfect setting for entertaining and unwinding. The dining room is accessible through double doors from the hallway, creating an open and welcoming space. The second reception room provides a stunning view of the garden that can be accessed through French doors. It serves as a comfortable lounge with a window to the front, a log burner and direct access to the garden.
Additional features include an entrance hall, a ground floor W/C, a driveway leading to a single garage and an enclosed walled garden. Council tax for this property falls within band D.
IMPORTANT NOTE TO POTENTIAL PURCHASERS & TENANTS:
We endeavour to make our particulars accurate and reliable, however, they do not constitute or form part of an offer or any contract and none is to be relied upon as statements of representation or fact. The services, systems and appliances listed in this specification have not been tested by us and no guarantee as to their operating ability or efficiency is given. All photographs and measurements have been taken as a guide only and are not precise. Floor plans where included are not to scale and accuracy is not guaranteed. If you require clarification or further information on any points, please contact us, especially if you are traveling some distance to view. POTENTIAL PURCHASERS: Fixtures and fittings other than those mentioned are to be agreed with the seller. POTENTIAL TENANTS: All properties are available for a minimum length of time, with the exception of short term accommodation. Please contact the branch for details. A security deposit of at least one month’s rent is required. Rent is to be paid one month in advance. It is the tenant’s responsibility to insure any personal possessions. Payment of all utilities including water rates or metered supply and Council Tax is the responsibility of the tenant in most cases.
KIA250272/2
Description
Your Move are delighted to bring to the market this wonderful detached house, Well presented throughout and situated in a highly sought after location. With excellent public transport links, proximity to local schools, amenities, parks and walking routes, this property is ideally suited for first-time buyers and families. The property boasts four bedrooms, two bathrooms and two inviting reception rooms. The master bedroom is a spacious double, accompanied by an en-suite bathroom complete with a double shower and part-tiled walls. The remaining bedrooms consist of two additional double rooms and a large single, all offering ample space for relaxation and rest. The home offers a well placed kitchen, with matching wall & base units, an integrated double electric oven, a gas hob and an extractor, ensuring all your culinary needs are met & an archway leading to the utility room & access to the garden. The two reception rooms provide the perfect setting for entertaining and (truncated)
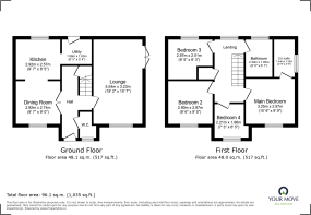
Entrance Hall
Having a upvc double glazed door to the front, stairs off.= & double doors opening to the dining room.
W/C
Having a low flush W/C, wash hand basin & a upvc double glazed window to the front elevation.
Dining Room
2.87m x 10 - With double doors opening to the hallway & a upvc double glazed window to the front elevation.
Lounge
3.1m x 5.54m
A spacious & welcoming room with French doors leading to the garden & a upvc double glazed window to the front elevation, plenty of room for furniture & a feature log burner.
Kitchen
2.44m x 3.02m
offering matching wall & base units with work surfaces over incorporating gas hob with electric double oven below & extractor over, spaces for further appliances, a upvc double glazed window to the rear elevation & an archway to the utility room.
Utility Room
1.22m x 1.52m
Having a upvc double glazed door to the rear elevation, plumbing for a washing machine & a concealed gas boiler.
First Floor Landing
A galleried landing with a upvc double glazed window to the rear elevation & the loft hatch giving access to the available roof space.
Bedroom 1
3.25m x 2.97m
A good sized double room with a upvc double glazed window to the front elevation.
En-Suite
0.91m x 2.13m
Having a double shower cubical, low flush W/C, wash hand basin, part tiled walls & a upvc double glazed window to the front elevation.
Bedroom 2
2.87m x 2.51m
Another double room with a upvc double glazed window to the front elevation & a storage cupboard.
Bedroom 3
2.87m x 2.51m
A double room with a upvc double glazed window to the rear elevation & a fitted wardrobe
Bedroom 4
2.44m x 2.13m
A good sized single room wih a feature arched window to the front elevation & currently used as an office.
Bathroom
2.44m x 2.1m
Having a white three piece suite comprising of a panelled bath, low flush W/C, wash hand basin, part tiled walls & a upvc double glazed window to the rear elevation.
Frontage
To the front of the property is a small garden area, a driveway to the side allowing for plenty of off road parking leading to the garage & gated access to the rear garden.
Garage
2.44m x 4.88m
A single garage with an up & over door power & light, there is a side door leading to the rear garden.
Rear Garden
the rear garden is laid to lawn with fence surround & opens to the side garden which is predominately laid to lawn with a walled boundary, a feature decked area & a backdrop of trees.
Brochures
Web DetailsFull Brochure PDF- COUNCIL TAXA payment made to your local authority in order to pay for local services like schools, libraries, and refuse collection. The amount you pay depends on the value of the property.Read more about council Tax in our glossary page.
- Band: D
- PARKINGDetails of how and where vehicles can be parked, and any associated costs.Read more about parking in our glossary page.
- Yes
- GARDENA property has access to an outdoor space, which could be private or shared.
- Yes
- ACCESSIBILITYHow a property has been adapted to meet the needs of vulnerable or disabled individuals.Read more about accessibility in our glossary page.
- Ask agent
Willow Gardens, Sutton-in-Ashfield, NG17
Add an important place to see how long it'd take to get there from our property listings.
__mins driving to your place
Get an instant, personalised result:
- Show sellers you’re serious
- Secure viewings faster with agents
- No impact on your credit score



Your mortgage
Notes
Staying secure when looking for property
Ensure you're up to date with our latest advice on how to avoid fraud or scams when looking for property online.
Visit our security centre to find out moreDisclaimer - Property reference KIA250272. The information displayed about this property comprises a property advertisement. Rightmove.co.uk makes no warranty as to the accuracy or completeness of the advertisement or any linked or associated information, and Rightmove has no control over the content. This property advertisement does not constitute property particulars. The information is provided and maintained by Your Move, Kirkby-In-Ashfield. Please contact the selling agent or developer directly to obtain any information which may be available under the terms of The Energy Performance of Buildings (Certificates and Inspections) (England and Wales) Regulations 2007 or the Home Report if in relation to a residential property in Scotland.
*This is the average speed from the provider with the fastest broadband package available at this postcode. The average speed displayed is based on the download speeds of at least 50% of customers at peak time (8pm to 10pm). Fibre/cable services at the postcode are subject to availability and may differ between properties within a postcode. Speeds can be affected by a range of technical and environmental factors. The speed at the property may be lower than that listed above. You can check the estimated speed and confirm availability to a property prior to purchasing on the broadband provider's website. Providers may increase charges. The information is provided and maintained by Decision Technologies Limited. **This is indicative only and based on a 2-person household with multiple devices and simultaneous usage. Broadband performance is affected by multiple factors including number of occupants and devices, simultaneous usage, router range etc. For more information speak to your broadband provider.
Map data ©OpenStreetMap contributors.




