Land Rear Of John Street South, Meadowfield, DH7
- PROPERTY TYPE
Land
- SIZE
Ask agent
Description
Bradley Hall are delighted to offer an opportunity to purchase f 6 exclusive development plots that all benefit from being fully serviced.
LOCATION & DESCRIPTION
The subject site is located to the south east of John Street South, Meadowfield, Durham. The surrounding land uses comprise a mixture of residential properties and a church to the north. To the north east, east and south east lies commercial uses including offices.
The site equates to an area of approximately 0.32 hectares (0.79 acres) and is generally level with no significant slopes or retaining structures.
Any purchaser would be required to apply to the planning authority for a variation to the existing planning consent in order to obtain the relevant permission for their dream home. Our in house planning team would be more than happy to assist with this process.
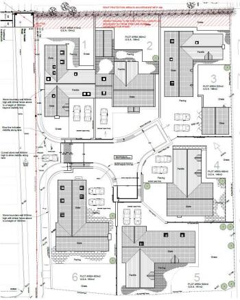
PLOT SIZES
The below shows the approximate sizes of each plot and Gross Internal Area of the houses:
Plot Plot Size Gross Internal Area
1 415 m2 (4,467 sq ft) (2,594 sq ft)
2 392 m2 (4,219 sq ft) (2,067 sq ft)
3 523 m2 (5,630 sq ft) (2,885 sq ft)
4 400 m2 (4,306 sq ft) (2,454 sq ft)
5 520 m2 (5,597 sq ft) (3,014 sq ft)
6 455 m2 (4,898 sq ft) (2,691 sq ft)
PLANNING & DEVELOPMENT OPPORTUNITIES
The site benefits from planning permission for the erection of 6 residential dwellings with associated appearance and landscaping.
Full planning information can be found using the reference: DM/17/02778/RM via Durham County Council planning portal. Further information is available on request.
TENURE
The site is sold freehold with vacant possession.
TERMS
We are seeking the following for each plot if sold induvidually:
Plot 1 - £100,000
Plot 2 - £145,000
Plot 3 - £150,000
Plot 4 - £145,000
Plot 5 - £145,000
Plot 6 - £100,000
All offers are to be made to Bradley Hall exclusive of VAT and, where silent, offers will be deemed net of VAT. Each party is to bear their own legal costs involved in the transaction.
VIEWING & FURTHER INFORMATION
For all enquiries and viewing arrangements please contact our Durham Office
Land Rear Of John Street South, Meadowfield, DH7
NEAREST STATIONS
Distances are straight line measurements from the centre of the postcode- Durham Station2.4 miles
Notes
Disclaimer - Property reference DRH210122. The information displayed about this property comprises a property advertisement. Rightmove.co.uk makes no warranty as to the accuracy or completeness of the advertisement or any linked or associated information, and Rightmove has no control over the content. This property advertisement does not constitute property particulars. The information is provided and maintained by Bradley Hall, Durham. Please contact the selling agent or developer directly to obtain any information which may be available under the terms of The Energy Performance of Buildings (Certificates and Inspections) (England and Wales) Regulations 2007 or the Home Report if in relation to a residential property in Scotland.
Map data ©OpenStreetMap contributors.






