Vale View, Blackwood, Caerphilly (County of), NP12

- PROPERTY TYPE
Semi-Detached
- BEDROOMS
4
- BATHROOMS
2
- SIZE
Ask agent
- TENUREDescribes how you own a property. There are different types of tenure - freehold, leasehold, and commonhold.Read more about tenure in our glossary page.
Freehold
Key features
- FOUR BEDROOMS PLUS A NURSERY
Description
Found in a popular residential development it enjoys good access to the local park, schools, amenities, and the town of Blackwood.
The garden centre and local pub are a stroll away. Travel links are on hand too.
Found in an end plot it enjoys a large organic garden that has been lovingly landscaped to include areas of lawn, an array of colourful floral borders, an abundance of fruit plants and trees providing apples, plumbs, quince shrub, raspberries, gooseberries, blackcurrants, and grapes. How wonderful!
Inside is super light, bright, and airy with colourful décor and ethnic furnishings.
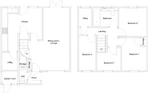
The extension is a double storey to accommodate four bedrooms and a nursery on the first floor and oodles of space on the ground floor.
The entrance porch welcomes you with an incredibly handy downstairs cloak room to one side housing the WC and wash basin.
The lounge/dining area (6.66m max x 5.36m max) is an incredible space for the family to enjoy.
It has laminate flooring, and cosy décor, with a stunning multi fuel burner set into an attractive suite ensures a cosy ambience.
The open staircase is to one side, along with fitted storage.
The dining area is open from the lounge with French doors and windows to the garden. It has tiled flooring and ample room for a dining suite.
The kitchen area (4.72m max x 4.54m max) along with the open plan diner is truly the heart of the home, designed for entertaining and family time.
It has windows and a door to the garden, tiled flooring, fitted storage, and is furnished with a range of modern wall and base cabinets having a five burner hob, an oven, a hood, a sunken wash basin, and space for a dishwasher and an American style fridge freezer.
The splash backs are beautiful. Beneath the sink is a reverse Osmosis system which we have been advised purifies water conditions with a balanced mix of healthy minerals including magnesium.
To the far end you find the utility room that is tiled, and behind this is the storage room to be accessed via the garden.
The first floor mirrors the ground for space with a landing area, four bedrooms, a nursery/office, and a family bathroom.
Bedroom one (3.33m x 2.78m) has a rear window, laminate and moder décor.
Bedroom two (3.79m max x 3.33m max) has a front window, laminate flooring, and modern décor.
Bedroom three (2.90m x 2.57m) has a front window, laminate, and modern décor.
Bedroom four (3.90m x 1.72m) has a front window, laminate, and modern décor.
Nursery/office (1.93m x 1.37m) has a rear window, vinyl flooring and modern décor.
The bathroom (2.63m x 1.90m) has a rear window, elegant tiling, a WC, and a wash basin set into vanity storage, and a bath with a shower overhead.
Submit Your Interest
- COUNCIL TAXA payment made to your local authority in order to pay for local services like schools, libraries, and refuse collection. The amount you pay depends on the value of the property.Read more about council Tax in our glossary page.
- Ask agent
- PARKINGDetails of how and where vehicles can be parked, and any associated costs.Read more about parking in our glossary page.
- Yes
- GARDENA property has access to an outdoor space, which could be private or shared.
- Yes
- ACCESSIBILITYHow a property has been adapted to meet the needs of vulnerable or disabled individuals.Read more about accessibility in our glossary page.
- Ask agent
Vale View, Blackwood, Caerphilly (County of), NP12
Add an important place to see how long it'd take to get there from our property listings.
__mins driving to your place
Get an instant, personalised result:
- Show sellers you’re serious
- Secure viewings faster with agents
- No impact on your credit score
Your mortgage
Notes
Staying secure when looking for property
Ensure you're up to date with our latest advice on how to avoid fraud or scams when looking for property online.
Visit our security centre to find out moreDisclaimer - Property reference VALEVIEW. The information displayed about this property comprises a property advertisement. Rightmove.co.uk makes no warranty as to the accuracy or completeness of the advertisement or any linked or associated information, and Rightmove has no control over the content. This property advertisement does not constitute property particulars. The information is provided and maintained by Cariad Property, Newbridge. Please contact the selling agent or developer directly to obtain any information which may be available under the terms of The Energy Performance of Buildings (Certificates and Inspections) (England and Wales) Regulations 2007 or the Home Report if in relation to a residential property in Scotland.
*This is the average speed from the provider with the fastest broadband package available at this postcode. The average speed displayed is based on the download speeds of at least 50% of customers at peak time (8pm to 10pm). Fibre/cable services at the postcode are subject to availability and may differ between properties within a postcode. Speeds can be affected by a range of technical and environmental factors. The speed at the property may be lower than that listed above. You can check the estimated speed and confirm availability to a property prior to purchasing on the broadband provider's website. Providers may increase charges. The information is provided and maintained by Decision Technologies Limited. **This is indicative only and based on a 2-person household with multiple devices and simultaneous usage. Broadband performance is affected by multiple factors including number of occupants and devices, simultaneous usage, router range etc. For more information speak to your broadband provider.
Map data ©OpenStreetMap contributors.





