
Trood's Cottage, Clayhidon, Cullompton, Devon, EX15

- PROPERTY TYPE
Detached
- SIZE
Ask agent
- TENUREDescribes how you own a property. There are different types of tenure - freehold, leasehold, and commonhold.Read more about tenure in our glossary page.
Freehold
Description
A residential development opportunity comprising a former stone cottage with planning permission for restoration and extension set within a paddock in the Blackdown Hills National Landscape.
In all extending to 0.56 of an acre.
For sale by private treaty.
Location
The property is situated close to the Somerset/Devon border in a particularly attractive part of the Blackdown Hills.
Hemyock, which is about two miles to the west, offers a range of shops and services including a school, medical centre, church, post office and traditional pub.
Wellington, Honiton, and Taunton are also all within easy reach, all of which offer a wide range of shopping, social and scholastic facilities.
There is an excellent range of good schools nearby both in the independent and state sectors including Uffculme School, Wellington School, and Queens and Kings Colleges and Taunton School.
The M5 motorway can be joined at Wellington (J26) and Taunton offers a regular intercity service to London Paddington. The A30 can be joined at Honiton, which also offers a regular intercity service to London Waterloo.
The Property
Trood’s Cottage comprises a residential development opportunity comprising a former stone cottage with planning permission for restoration and extension set within a paddock in the Blackdown Hills National Landscape.
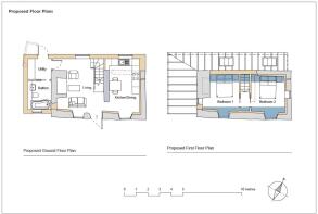
Planning permission has been granted to restore and add a ground floor extension. The restored property will provide accommodation comprising, on the ground floor, kitchen and dining room, sitting room, bathroom, utility room. On the first floor, there will be two double bedrooms. The plans set out that two parking spaces will be installed to the east of the property adjoining the road, together with a garden store to be erected to the south west of the cottage.
Method of Sale
The property is offered for sale by private treaty with a guide price of £175,000.
Tenure & Possession
The freehold of the property is offered for sale with vacant possession available upon completion.
Planning
Planning permission was granted by Mid Devon District Council in September 2023 for the restoration and erection of an extension to Trood’s Cottage and erection of garden shed under application reference 23/01058/FULL.
Services
The property is not connected to any services. The successful purchaser will therefore need to establish new service connections for the property.
Health & Safety
Due to the dilapidated condition of the property, potential purchasers are requested to take particular care when viewing. Potential purchasers should not enter the property due to the potentially unstable nature of the elevations and roof.
Local Authorities
Mid Devon Council
Viewings
Potential purchasers may view the property during reasonable daylight hours after informing the vendor’s agents, on , and with a set of these sales particulars in hand. The rear elevation of the property appears to be unstable and should only therefore be viewed from the roadside and not within the boundary of the property. Potential purchasers should not attempt to enter the building due to its apparent unstable condition. Please note the health and safety notice above.
Directions
From the village of Hemyock, follow signs from Hemyock Methodist Church to Clayhidon, Churchstanton and Churchinford. Take Culmbridge Road, passing Hemyock Post Office on the right-hand side. Continue up and out of the village passing Brookridge Timber on the right-hand side. After about 1½ to 2 miles on this road you will reach a signpost labelled ‘Shackles’. Turn right, signed to Bolham Water. Follow this road and turn left at the right-hand bend, signed ‘Middleton’. Follow this road down the hill into the valley bottom and up the other side. As the road begins to level out, continue straight on (passing the left turn) and the property will be found shortly thereafter on the right-hand side with reference to the boundary plan.
What Three Words
/// safety.editor.marzipan
Brochures
Particulars- COUNCIL TAXA payment made to your local authority in order to pay for local services like schools, libraries, and refuse collection. The amount you pay depends on the value of the property.Read more about council Tax in our glossary page.
- Band: TBC
- PARKINGDetails of how and where vehicles can be parked, and any associated costs.Read more about parking in our glossary page.
- Yes
- GARDENA property has access to an outdoor space, which could be private or shared.
- Yes
- ACCESSIBILITYHow a property has been adapted to meet the needs of vulnerable or disabled individuals.Read more about accessibility in our glossary page.
- Ask agent
Energy performance certificate - ask agent
Trood's Cottage, Clayhidon, Cullompton, Devon, EX15
Add an important place to see how long it'd take to get there from our property listings.
__mins driving to your place
Get an instant, personalised result:
- Show sellers you’re serious
- Secure viewings faster with agents
- No impact on your credit score
Your mortgage
Notes
Staying secure when looking for property
Ensure you're up to date with our latest advice on how to avoid fraud or scams when looking for property online.
Visit our security centre to find out moreDisclaimer - Property reference TAU250042. The information displayed about this property comprises a property advertisement. Rightmove.co.uk makes no warranty as to the accuracy or completeness of the advertisement or any linked or associated information, and Rightmove has no control over the content. This property advertisement does not constitute property particulars. The information is provided and maintained by Carter Jonas Rural, Taunton. Please contact the selling agent or developer directly to obtain any information which may be available under the terms of The Energy Performance of Buildings (Certificates and Inspections) (England and Wales) Regulations 2007 or the Home Report if in relation to a residential property in Scotland.
*This is the average speed from the provider with the fastest broadband package available at this postcode. The average speed displayed is based on the download speeds of at least 50% of customers at peak time (8pm to 10pm). Fibre/cable services at the postcode are subject to availability and may differ between properties within a postcode. Speeds can be affected by a range of technical and environmental factors. The speed at the property may be lower than that listed above. You can check the estimated speed and confirm availability to a property prior to purchasing on the broadband provider's website. Providers may increase charges. The information is provided and maintained by Decision Technologies Limited. **This is indicative only and based on a 2-person household with multiple devices and simultaneous usage. Broadband performance is affected by multiple factors including number of occupants and devices, simultaneous usage, router range etc. For more information speak to your broadband provider.
Map data ©OpenStreetMap contributors.






