
Wigan Lane, Coppull, Chorley

- PROPERTY TYPE
Terraced
- BEDROOMS
2
- BATHROOMS
1
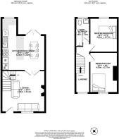
- SIZE
710 sq ft
66 sq m
- TENUREDescribes how you own a property. There are different types of tenure - freehold, leasehold, and commonhold.Read more about tenure in our glossary page.
Freehold
Key features
- Two Bedroom
- Mid Terrace
- Character Filled
- Semi Rural Location
- Excellent Travel Links
- Must Be Viewed
- EPC Rating D
- Approx 710 SQ FT
Description
Upon entering the property, you're welcomed into a spacious lounge featuring a striking traditional brick fireplace with a cosy log-burning fire, perfect for relaxing evenings. The room is flooded with natural light through a front-facing window, while elegant French doors lead seamlessly into the adjoining space. An open staircase adds to the character and flow of the layout, enhancing the sense of openness.
Continuing through to the rear of the property, you'll find a beautifully designed modern kitchen and dining area. Recently fitted within the last 12 months, the kitchen boasts a generous array of wall and base units, integrated hob and oven, and ample space for additional freestanding appliances. The open-plan design creates an ideal setting for entertaining, with plenty of room for a large family dining table and patio doors that open out onto the rear garden, inviting in even more natural light and offering easy access to outdoor dining.
Upstairs, the home features two generously sized double bedrooms, along with a spacious landing that leads to a stylish three-piece family bathroom, complete with an over-the-bath shower. The rear-facing rooms enjoy uninterrupted, picturesque views of the surrounding countryside, adding a real sense of peace and privacy.
Outside, the rear garden is of a good size and is thoughtfully arranged with a combination of flagging, mature trees and shrubs. The garden is not overlooked, providing a private and tranquil space, complemented by a handy garden shed for storage. Throughout, this delightful cottage blends traditional features with modern finishes, offering spacious interiors full of character and charm in an idyllic location.
Brochures
Wigan Lane, Coppull, Chorley- COUNCIL TAXA payment made to your local authority in order to pay for local services like schools, libraries, and refuse collection. The amount you pay depends on the value of the property.Read more about council Tax in our glossary page.
- Ask agent
- PARKINGDetails of how and where vehicles can be parked, and any associated costs.Read more about parking in our glossary page.
- Ask agent
- GARDENA property has access to an outdoor space, which could be private or shared.
- Yes
- ACCESSIBILITYHow a property has been adapted to meet the needs of vulnerable or disabled individuals.Read more about accessibility in our glossary page.
- Ask agent
Wigan Lane, Coppull, Chorley
Add an important place to see how long it'd take to get there from our property listings.
__mins driving to your place
Get an instant, personalised result:
- Show sellers you’re serious
- Secure viewings faster with agents
- No impact on your credit score
Your mortgage
Notes
Staying secure when looking for property
Ensure you're up to date with our latest advice on how to avoid fraud or scams when looking for property online.
Visit our security centre to find out moreDisclaimer - Property reference 33826969. The information displayed about this property comprises a property advertisement. Rightmove.co.uk makes no warranty as to the accuracy or completeness of the advertisement or any linked or associated information, and Rightmove has no control over the content. This property advertisement does not constitute property particulars. The information is provided and maintained by Ben Rose, Chorley. Please contact the selling agent or developer directly to obtain any information which may be available under the terms of The Energy Performance of Buildings (Certificates and Inspections) (England and Wales) Regulations 2007 or the Home Report if in relation to a residential property in Scotland.
*This is the average speed from the provider with the fastest broadband package available at this postcode. The average speed displayed is based on the download speeds of at least 50% of customers at peak time (8pm to 10pm). Fibre/cable services at the postcode are subject to availability and may differ between properties within a postcode. Speeds can be affected by a range of technical and environmental factors. The speed at the property may be lower than that listed above. You can check the estimated speed and confirm availability to a property prior to purchasing on the broadband provider's website. Providers may increase charges. The information is provided and maintained by Decision Technologies Limited. **This is indicative only and based on a 2-person household with multiple devices and simultaneous usage. Broadband performance is affected by multiple factors including number of occupants and devices, simultaneous usage, router range etc. For more information speak to your broadband provider.
Map data ©OpenStreetMap contributors.





