3 bedroom semi-detached house for sale
Dolcoath Road, Camborne, TR14

- PROPERTY TYPE
Semi-Detached
- BEDROOMS
3
- BATHROOMS
2
- SIZE
Ask agent
- TENUREDescribes how you own a property. There are different types of tenure - freehold, leasehold, and commonhold.Read more about tenure in our glossary page.
Freehold
Key features
- THREE DOUBLE BEDROOMS
- TWO RECEPTION ROOMS
- WEALTH OF CHARACTER
- GARAGE & PARKING
- GAS CENTRAL HEATING
- EPC: TBA COUNCIL TAX B
- WELL PROPORTIONED ACCOMMODATION
- BATHROOM & SHOWER ROOM
Description
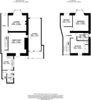
Approached via a tarmac driveway with steps up to a UPVC door opening to:-
ENTRANCE HALL: A wide entrance hall with period mosaic tiled floor, decorative coving and mouldings, doors to the Lounge, Dining room and Kitchen, stairs rising to the first floor with storage area below, radiator and telephone point.
LOUNGE: 17'1" into bay x 14'8" (5.21m x 4.47m), A spacious lounge with a double glazed bay window to the front, decorative period ceiling rose and coving, and feature period fireplace. TV aerial point.
DINING ROOM: 17'5" x 14'3" max (5.31m x 4.34m), A well-proportioned room with a coved and textured ceiling, double glazed patio doors to the rear, radiator and TV aerial point.
KICTEH/BREAKFAST ROOM: 16'2" x 9'4" (4.93m x 2.84m), A good sized kitchen comprising of a range of eye-level and base units with work surface over, tiled splash-backs, inset single bowl asterite sink with side drainer, space for an electric cooker with extractor over, radiator, double glazed window overlooking the rear garden, ample space for a dining table and opens to:-
REAR HALL: There is a UPVC door opening to the rear garden and doors to the Utility Room and Shower Room/WC
UTILITY ROOM: 6'10" x 3'8" (2.08m x 1.12m), A useful room with space for an upright fridge/freezer, plumbing for a washing machine, floor mounted gas central heating boiler and a double glazed window to the rear.
SHOWER ROOM/WC: 7'1" x 4'11" (2.16m x 1.50m), A modern suite comprising of a shower cubicle with glass enclosure and thermostatic shower over, close coupled WC, Bidet, pedestal mounted wash hand basin, fully tiled walls, radiator and a double glazed window to the side.
FIRST FLOOR
LANDING: A spacious landing with doors to all bedroom and the Bathroom/WC, loft access hatch and a double glazed window to the side.
BEDROOM ONE: 17'1" into bay x 12'9" (5.21m x 3.89m), A well-proportioned master bedroom with a double glazed bay window to the front and a radiator.
BEDROOM TWO: 12'7" x 11'10" (3.84m x 3.61m), A good sized second double bedroom with built in wardrobes to one wall, a double glazed window to the rear and a radiator.
BEDROOM THREE: 9'8" x 9'1" (2.95m x 2.77m), A useful third double bedroom with a double glazed window to the front and a radiator.
BATHROOM/WC: 9'5" x 7'4" (2.87m x 2.24m), A coloured suite comprising of a corner bath, close coupled WC, pedestal mounted wash hand basin, separate shower cubicle with glass enclosure and a thermostatic shower over, double glazed window to the side and a radiator.
OUTSIDE
REAR GARDEN: Enclosed by walling and laid to paving for ease of maintenance.
SUN ROOM: 12'3" x 5'6" (3.73m x 1.68m), There is a sliding patio type door and power and light with door to:-
GARAGE: 26'1" x 10'5" (7.95m x 3.18m), A tandem style garage with single up and over door, rear pedestrian access, window to the rear, eaves storage, power and light.
OFF ROAD PARKING
FRONT GARDEN: Bounded by hedging and walling with a small lawned area.
AGENTS NOTE: The property has been rated as Council Tax Band B.
The property is of majority stone construction.
All mains services are connected to the property.
Mobile coverage is expected from all networks (Source Ofcom).
Broadband Speeds up to 14Mbps Standard and 1800Mbps Ultra-Fast (Source Ofcom).
ENERGY EFFICIENCY RATING: This property has been rated as: D (56) with a potential rating of C (79).
Brochures
Particulars- COUNCIL TAXA payment made to your local authority in order to pay for local services like schools, libraries, and refuse collection. The amount you pay depends on the value of the property.Read more about council Tax in our glossary page.
- Ask agent
- PARKINGDetails of how and where vehicles can be parked, and any associated costs.Read more about parking in our glossary page.
- Yes
- GARDENA property has access to an outdoor space, which could be private or shared.
- Yes
- ACCESSIBILITYHow a property has been adapted to meet the needs of vulnerable or disabled individuals.Read more about accessibility in our glossary page.
- Ask agent
Energy performance certificate - ask agent
Dolcoath Road, Camborne, TR14
Add an important place to see how long it'd take to get there from our property listings.
__mins driving to your place
Get an instant, personalised result:
- Show sellers you’re serious
- Secure viewings faster with agents
- No impact on your credit score

Your mortgage
Notes
Staying secure when looking for property
Ensure you're up to date with our latest advice on how to avoid fraud or scams when looking for property online.
Visit our security centre to find out moreDisclaimer - Property reference EZYM_002135. The information displayed about this property comprises a property advertisement. Rightmove.co.uk makes no warranty as to the accuracy or completeness of the advertisement or any linked or associated information, and Rightmove has no control over the content. This property advertisement does not constitute property particulars. The information is provided and maintained by Ferguson Young Estate Agents, Redruth. Please contact the selling agent or developer directly to obtain any information which may be available under the terms of The Energy Performance of Buildings (Certificates and Inspections) (England and Wales) Regulations 2007 or the Home Report if in relation to a residential property in Scotland.
*This is the average speed from the provider with the fastest broadband package available at this postcode. The average speed displayed is based on the download speeds of at least 50% of customers at peak time (8pm to 10pm). Fibre/cable services at the postcode are subject to availability and may differ between properties within a postcode. Speeds can be affected by a range of technical and environmental factors. The speed at the property may be lower than that listed above. You can check the estimated speed and confirm availability to a property prior to purchasing on the broadband provider's website. Providers may increase charges. The information is provided and maintained by Decision Technologies Limited. **This is indicative only and based on a 2-person household with multiple devices and simultaneous usage. Broadband performance is affected by multiple factors including number of occupants and devices, simultaneous usage, router range etc. For more information speak to your broadband provider.
Map data ©OpenStreetMap contributors.




