
Plot for sale
Millom Road, Millom
- PROPERTY TYPE
Plot
- SIZE
Ask agent
Key features
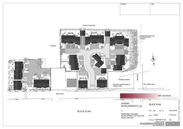
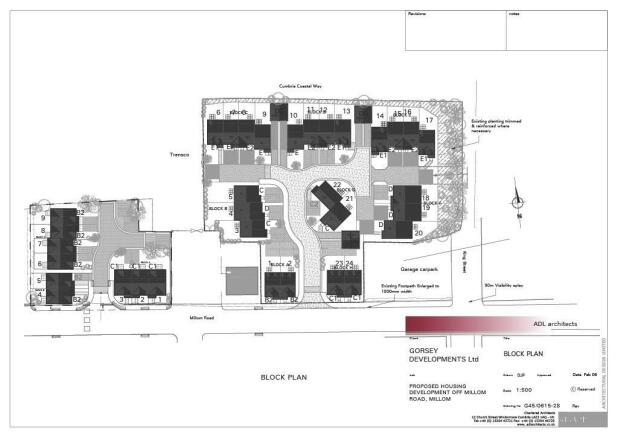
- Planning for 33 Units
- Great location
- 2,3, & 4 bed houses
- Extended planning permission
- Views over the Estuary
- Planning 24 houses (ref 4/06/2178/0)
- Planning 9 houses (ref 4/08/2388/0)
Description
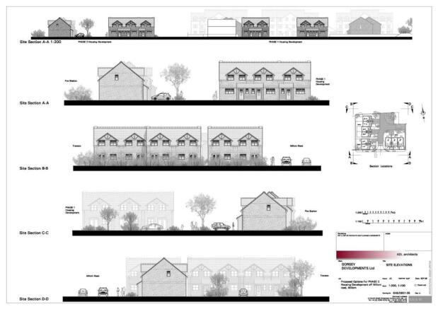
Central Location – Planning Approved for 33 Units
An outstanding opportunity to acquire a centrally located residential development site with approved planning consents for a total of 33 units.
Consent granted for:
24 units & 9 additional units
Proposed scheme includes a mix of 2, 3 & 4-bedroom homes
Extended planning consent in place, offering flexibility and development confidence
Ideal for residential developers seeking a well-positioned and ready-to-go site in a desirable location.
All enquiries strictly through the sole agents:
Corrie and Co, Millom
??
Brochures
Millom Road, MillomMillom Road, Millom
NEAREST STATIONS
Distances are straight line measurements from the centre of the postcode- Millom Station0.3 miles
- Green Road Station2.4 miles
- Askam Station2.9 miles
Notes
Disclaimer - Property reference 33835305. The information displayed about this property comprises a property advertisement. Rightmove.co.uk makes no warranty as to the accuracy or completeness of the advertisement or any linked or associated information, and Rightmove has no control over the content. This property advertisement does not constitute property particulars. The information is provided and maintained by Corrie and Co Ltd, Millom. Please contact the selling agent or developer directly to obtain any information which may be available under the terms of The Energy Performance of Buildings (Certificates and Inspections) (England and Wales) Regulations 2007 or the Home Report if in relation to a residential property in Scotland.
Map data ©OpenStreetMap contributors.





