
Thoroughfare, Woodbridge, Suffolk, IP12

- PROPERTY TYPE
Apartment
- BEDROOMS
3
- BATHROOMS
3
- SIZE
Ask agent
- TENUREDescribes how you own a property. There are different types of tenure - freehold, leasehold, and commonhold.Read more about tenure in our glossary page.
Freehold
Key features
- Large duplex apartment and tenanted tea room premises
- Freehold For Sale
- Guide Price £795,000
- Commercial Rental Income £24,600 per annum
Description
The property comprises a Grade II* Listed building, the principal accommodation arranged upon two floors together with attic room and basement.
The ground floor comprises a self contained tea room, trading as Maeve's Tea Room. The premises are arranged on either side of a central entrance, the accommodation extending to the rear and overlooking an enclosed courtyard garden which provides further seating. The premises include a fully fitted commercial kitchen and basement storage.
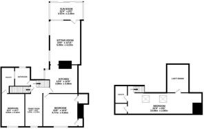
The duplex apartment is accessed via stairs off the central entrance and has been restored to a very high standard, retaining many period features and offering generous accommodation, including three bedrooms, spacious sitting room, sun room, dining room and kitchen. The apartment benefits from excellent views over Elmhurst Park towards Tranmer House at Sutton Hoo and includes a small private walled courtyard garden. Double gates to the side of the building provide access to an area currently shared with the tea room for bin storage, although offering potential for parking in the future.
Location
Woodbridge is a thriving Suffolk market town located on the River Deben, approximately 9 miles north east of the county town of Ipswich. The town's railway station links with Ipswich providing a connecting service to London, Norwich and Cambridge.
Directions
Please use the postcode IP12 1AL as point of reference to the property.
Important Information
It is understood that the property is connected to mains electricity, gas, water and foul drainage. The entire property is served by gas fired central heating, the boiler being located within the tea room premises.
We have not tested any of the services and all interested parties should rely upon their own enquiries with the relevant utility companies in connection with the availability and capacity of all those serving the property including IT and telecommunication links.
Tenancy
The tea room premises are let on an effectively full repairing and insuring business lease for a term of 5 years from 15th August 2023. The tenant is Maeve's Tea Room Limited and a rent deposit in the sum of £6,150 is held by the landlord for the term of the lease. The passing rent is £24,600 per annum and the lease provides for an open market, upwards only rent review, together with a mutual break clause on 15th February 2025. The lease is contracted out of the security of tenure provisions of the 1954 Landlord & Tenant Act.
Planning
The property is late 17th Century/early 18th Century and is Grade II* Listed.
Planning permission and Listed Building Consent were granted in November 2014 to allow the change of use of the ground floor to a tea room and patisseries with various associated alterations (ref. DC/14/2963/FUL and DC/14/2964/LBC).
The property has the following business rates assessments:
Tea Room
Unit 1 (left hand ground floor) Rateable Value £4,800
Unit 2 (right hand ground floor) Rateable Value £7,100
EPC
The property benefits from the following energy performance certificates:
Tea Room - Unit 1 C(74) valid until 9th July 2033
Tea Room - Unit 2 C(61) valid until 9th July 2033
Apartment E(46) valid until 12th July 2033
Business Rates
Apartment
Beresford House Rateable Value £2,500
Brochures
Particulars- COUNCIL TAXA payment made to your local authority in order to pay for local services like schools, libraries, and refuse collection. The amount you pay depends on the value of the property.Read more about council Tax in our glossary page.
- Ask agent
- PARKINGDetails of how and where vehicles can be parked, and any associated costs.Read more about parking in our glossary page.
- Yes
- GARDENA property has access to an outdoor space, which could be private or shared.
- Yes
- ACCESSIBILITYHow a property has been adapted to meet the needs of vulnerable or disabled individuals.Read more about accessibility in our glossary page.
- Ask agent
Energy performance certificate - ask agent
Thoroughfare, Woodbridge, Suffolk, IP12
Add an important place to see how long it'd take to get there from our property listings.
__mins driving to your place
Get an instant, personalised result:
- Show sellers you’re serious
- Secure viewings faster with agents
- No impact on your credit score
Your mortgage
Notes
Staying secure when looking for property
Ensure you're up to date with our latest advice on how to avoid fraud or scams when looking for property online.
Visit our security centre to find out moreDisclaimer - Property reference WOO240112. The information displayed about this property comprises a property advertisement. Rightmove.co.uk makes no warranty as to the accuracy or completeness of the advertisement or any linked or associated information, and Rightmove has no control over the content. This property advertisement does not constitute property particulars. The information is provided and maintained by Fenn Wright, Woodbridge. Please contact the selling agent or developer directly to obtain any information which may be available under the terms of The Energy Performance of Buildings (Certificates and Inspections) (England and Wales) Regulations 2007 or the Home Report if in relation to a residential property in Scotland.
*This is the average speed from the provider with the fastest broadband package available at this postcode. The average speed displayed is based on the download speeds of at least 50% of customers at peak time (8pm to 10pm). Fibre/cable services at the postcode are subject to availability and may differ between properties within a postcode. Speeds can be affected by a range of technical and environmental factors. The speed at the property may be lower than that listed above. You can check the estimated speed and confirm availability to a property prior to purchasing on the broadband provider's website. Providers may increase charges. The information is provided and maintained by Decision Technologies Limited. **This is indicative only and based on a 2-person household with multiple devices and simultaneous usage. Broadband performance is affected by multiple factors including number of occupants and devices, simultaneous usage, router range etc. For more information speak to your broadband provider.
Map data ©OpenStreetMap contributors.







